Symbiose aus zwei Welten: Fenix Lofts von Mei Architects in Rotterdam
Foto: Marc Goodwin
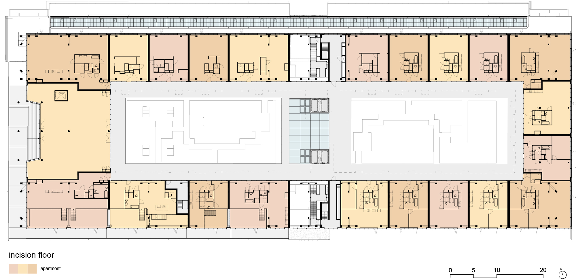
Die Fenix-Hallen an der Rotterdamer Rijnhavenbrug, ein ehemaliges Lagergebäude der Holland-Amerika-Linie von 1922, waren wie geschaffen für eine hochwertige Umnutzung: Nur einen Steinwurf vom Viertel Kop van Zuid entfernt liegen sie und bieten ihren neuen Bewohnern einen unverbaubaren Blick über die Nieuwe Maas Richtung Stadtzentrum. Mei Architects haben das 140 m lange und 40 m tiefe Bauwerk saniert und mit einem neuen Aufbau aus insgesamt 212 Wohnungen zwischen 40 und 300 m2 versehen.
Rund zwei Drittel davon sind Eigentum mit individuell zugeschnittenen Grundrissen – ein planerischer Kraftakt angesichts der Tatsache, dass die Obergeschosse, wie in den Niederlanden üblich, aus Stahlbeton in Schottenbauweise mit Tunnelschalung erstellt wurden. Mit ihrer Höhenstaffelung folgt die Aufstockung den Gegebenheiten des urbanen Kontexts: Im Norden, an der Wasserseite, sind es acht Wohngeschosse, in Richtung des Wohnquartiers Katendrecht im Süden dagegen nur vier.
Ein begrünter Innenhof, der von der Passage im Erdgeschoss des Lagerhauses über vier Glasaufzüge erreichbar ist, bildet das ruhige Zentrum der Wohnanlage. Der Betonbau ruht auf einem gigantischen Tischbauwerk aus 1000 Tonnen Stahl, das komplett von der Betonstruktur der Lagerhalle gelöst und auf eigene Fundamente gestellt wurde. In der zweigeschossigen Halle ist nach der Sanierung ein bunter Mix aus weiteren Wohnungen, Büros, Gastronomie, einem B&B-Hotel, einem Parkhaus und zahlreichen kulturellen Nutzungen untergebracht. Das zurückgesetzte Zwischengeschoss zwischen Halle und Oberbau beherbergt ebenfalls Wohnungen mit bis zu 6 m hohen Räumen, deren Charakter von dem hier sehr präsenten Stahltragwerk geprägt wird.
Weitere Informationen:
Bauunternehmen: Heijmans Woningbouw
Bauphysik, Brandschutz: LBP | Sight
TGA-Planung: Techniplan adviseurs
Kulturhistorische Beratung: Suzanne Fischer


























