31.07.2020 Edina Obermoser

Unter Dach und Fach: Innovationszentrum für Möbelhersteller Brunner

Foto: HGEsch

Die neue Innovation Factory schließt am Südrand des Areals von Brunner an. Henn Architekten entwerfen den Baukörper als schlichten Quader, dessen Fassaden sich, abhängig von den Funktionen im Inneren unterschiedlich präsentieren. Während die nordwestliche Längsseite komplett verglast Transparenz und Offenheit vermittelt, sind die übrigen Ansichten in matte Metallpaneele gehüllt und lassen nur über vereinzelte raumhohe Fensterbänder Einblicke zu. Ein enormes Holztragwerk überspannt das gesamte Gebäude. Die modulare Gitterstruktur verkörpert den Nachhaltigkeitsgedanken und harmoniert perfekt mit der auf Funktionalität, Qualität und Design bedachten Möbelmanufaktur.

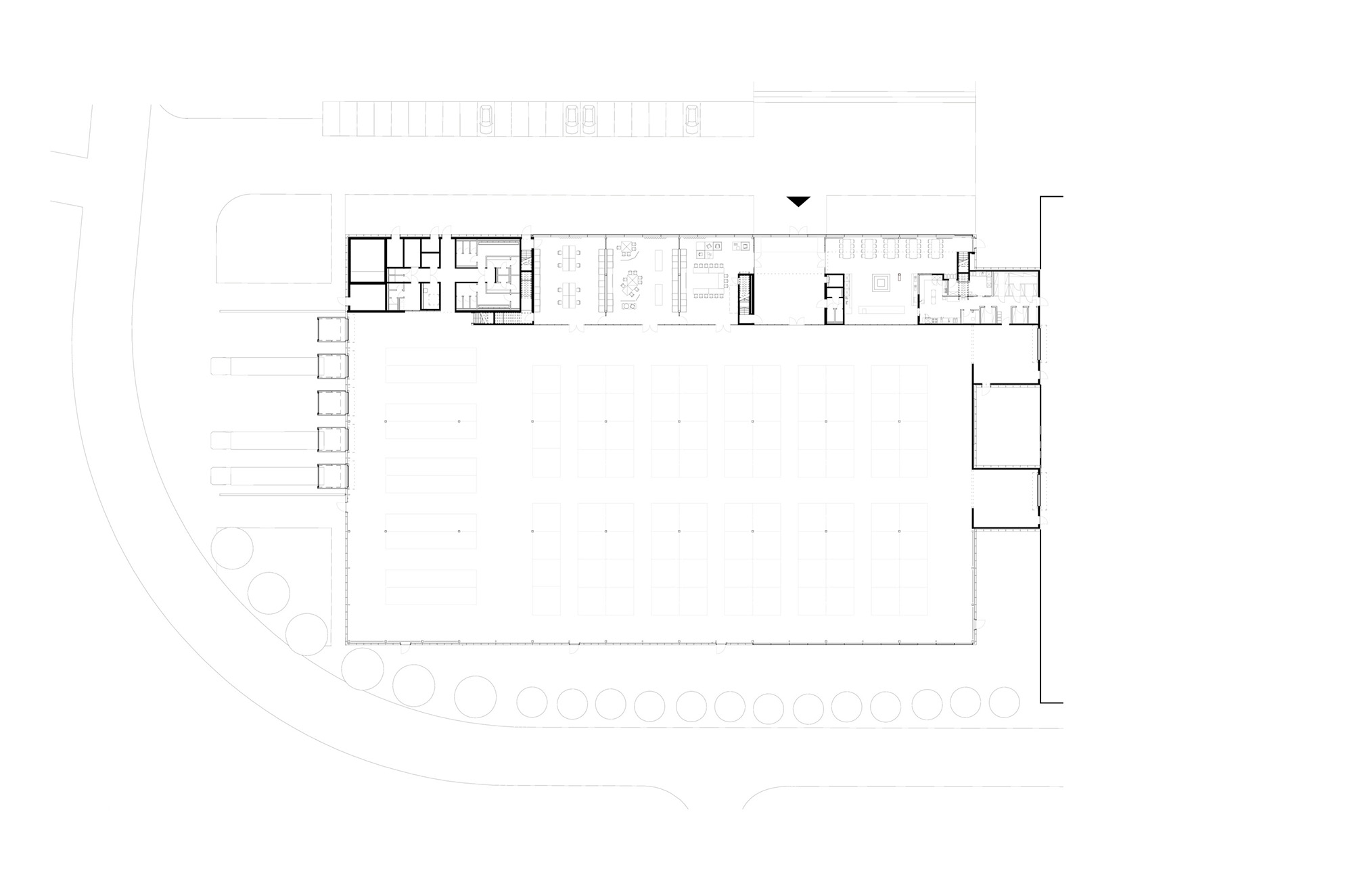
Der rechteckige Grundriss des Innovationszentrums teilt sich in zwei unterschiedliche Bereiche auf. Entlang der verglasten Nordwestfassade sind mit Büros und Besprechungsräumen die vielfältigen Arbeitszonen sowie Kantine und Showrooms angeordnet. Im Obergeschoss öffnet sich der Gebäudeteil mit einer Galerie zur großen Halle hin, die den multifunktionalen Bau komplettiert. In ihr finden sämtliche Produktionsschritte von Design und Entwicklung über Prototyping bis hin zu Montage statt.

Die Dualität und das Zusammenwirken der einzelnen Komponenten des Möbelunternehmens heben die Architekten auch im Inneren besonders hervor. In Kooperation mit dem Designbüro Ippolito Fleitz wird das hybride Gebäude mit Glastrennwänden, leichten Vorhängen und abwechslungsreichen Materialien offen und luftig gestaltet. Durch die zahlreichen Fenster fällt viel Tageslicht in die Innovation Factory und schafft sowohl in den ruhigeren Arbeitsbereichen als auch in der Produktionshalle ein freundliches Arbeitsklima.

Foto: HGEsch

Foto: HGEsch

Foto: HGEsch

Foto: HGEsch

Foto: HGEsch

Foto: HGEsch

Foto: HGEsch

Foto: HGEsch

Foto: HGEsch

Foto: HGEsch

Foto: HGEsch

Foto: HGEsch

Foto: HGEsch

Foto: HGEsch

Foto: HGEsch

Foto: HGEsch

Grundriss, Grafik: Henn

Grundriss, Grafik: Henn

Schnitt, Grafik: Henn

Schnitt, Grafik: Henn

https://detail-cdn.s3.eu-central-1.amazonaws.com/media/catalog/product/0/0/00-Brunner-Innovation-Factory-HENN-HGEsch-T735.jpg?width=437&height=582&store=de_de&image-type=image https://detail-cdn.s3.eu-central-1.amazonaws.com/media/catalog/product/0/0/00-Brunner-Innovation-Factory-HENN-HGEsch.jpg?width=437&height=582&store=de_de&image-type=image https://detail-cdn.s3.eu-central-1.amazonaws.com/media/catalog/product/0/1/01-Brunner-Innovation-Factory-HENN-HGEsch.jpg?width=437&height=582&store=de_de&image-type=image https://detail-cdn.s3.eu-central-1.amazonaws.com/media/catalog/product/0/2/02-Brunner-Innovation-Factory-HENN-HGEsch.jpg?width=437&height=582&store=de_de&image-type=image https://detail-cdn.s3.eu-central-1.amazonaws.com/media/catalog/product/0/3/03-Brunner-Innovation-Factory-HENN-HGEsch.jpg?width=437&height=582&store=de_de&image-type=image https://detail-cdn.s3.eu-central-1.amazonaws.com/media/catalog/product/0/4/04-Brunner-Innovation-Factory-HENN-HGEsch.jpg?width=437&height=582&store=de_de&image-type=image https://detail-cdn.s3.eu-central-1.amazonaws.com/media/catalog/product/0/5/05-Brunner-Innovation-Factory-HENN-HGEsch.jpg?width=437&height=582&store=de_de&image-type=image https://detail-cdn.s3.eu-central-1.amazonaws.com/media/catalog/product/0/6/06-Brunner-Innovation-Factory-HENN-HGEsch.jpg?width=437&height=582&store=de_de&image-type=image https://detail-cdn.s3.eu-central-1.amazonaws.com/media/catalog/product/0/7/07-Brunner-Innovation-Factory-HENN-HGEsch.jpg?width=437&height=582&store=de_de&image-type=image https://detail-cdn.s3.eu-central-1.amazonaws.com/media/catalog/product/0/8/08-Brunner-Innovation-Factory-HENN-HGEsch.jpg?width=437&height=582&store=de_de&image-type=image https://detail-cdn.s3.eu-central-1.amazonaws.com/media/catalog/product/0/9/09-Brunner-Innovation-Factory-HENN-HGEsch.jpg?width=437&height=582&store=de_de&image-type=image https://detail-cdn.s3.eu-central-1.amazonaws.com/media/catalog/product/1/0/10-Brunner-Innovation-Factory-HENN-HGEsch.jpg?width=437&height=582&store=de_de&image-type=image https://detail-cdn.s3.eu-central-1.amazonaws.com/media/catalog/product/1/1/11-Brunner-Innovation-Factory-HENN-HGEsch.jpg?width=437&height=582&store=de_de&image-type=image https://detail-cdn.s3.eu-central-1.amazonaws.com/media/catalog/product/1/2/12-Brunner-Innovation-Factory-HENN-HGEsch.jpg?width=437&height=582&store=de_de&image-type=image https://detail-cdn.s3.eu-central-1.amazonaws.com/media/catalog/product/1/3/13-Brunner-Innovation-Factory-HENN-HGEsch.jpg?width=437&height=582&store=de_de&image-type=image https://detail-cdn.s3.eu-central-1.amazonaws.com/media/catalog/product/1/4/14-Brunner-Innovation-Factory-HENN-HGEsch.jpg?width=437&height=582&store=de_de&image-type=image https://detail-cdn.s3.eu-central-1.amazonaws.com/media/catalog/product/1/5/15-Brunner-Innovation-Factory-HENN-HGEsch.jpg?width=437&height=582&store=de_de&image-type=image https://detail-cdn.s3.eu-central-1.amazonaws.com/media/catalog/product/1/6/16-Brunner-Innovation-Factory-HENN-HGEsch.jpg?width=437&height=582&store=de_de&image-type=image https://detail-cdn.s3.eu-central-1.amazonaws.com/media/catalog/product/1/7/17-Brunner-Innovation-Factory-HENN-Grundriss-EG.jpg?width=437&height=582&store=de_de&image-type=image https://detail-cdn.s3.eu-central-1.amazonaws.com/media/catalog/product/1/8/18-Brunner-Innovation-Factory-HENN-OG.jpg?width=437&height=582&store=de_de&image-type=image https://detail-cdn.s3.eu-central-1.amazonaws.com/media/catalog/product/1/9/19-Brunner-Innovation-Factory-HENN-Schnitt-Laengs.jpg?width=437&height=582&store=de_de&image-type=image https://detail-cdn.s3.eu-central-1.amazonaws.com/media/catalog/product/2/0/20-Brunner-Innovation-Factory-HENN-Schnitt-Quer.jpg?width=437&height=582&store=de_de&image-type=image
Copyright © 2024 DETAIL. Alle Rechte vorbehalten.