Sheddach mit Ausblick
Schafbergbahn am Wolfgangssee von Dunkelschwarz
Mit einer Glasfront und einer großen Freiterrasse öffnet sich die Talstation in Richtung Wolfgangssee. © Albrecht Immanuel Schnabel
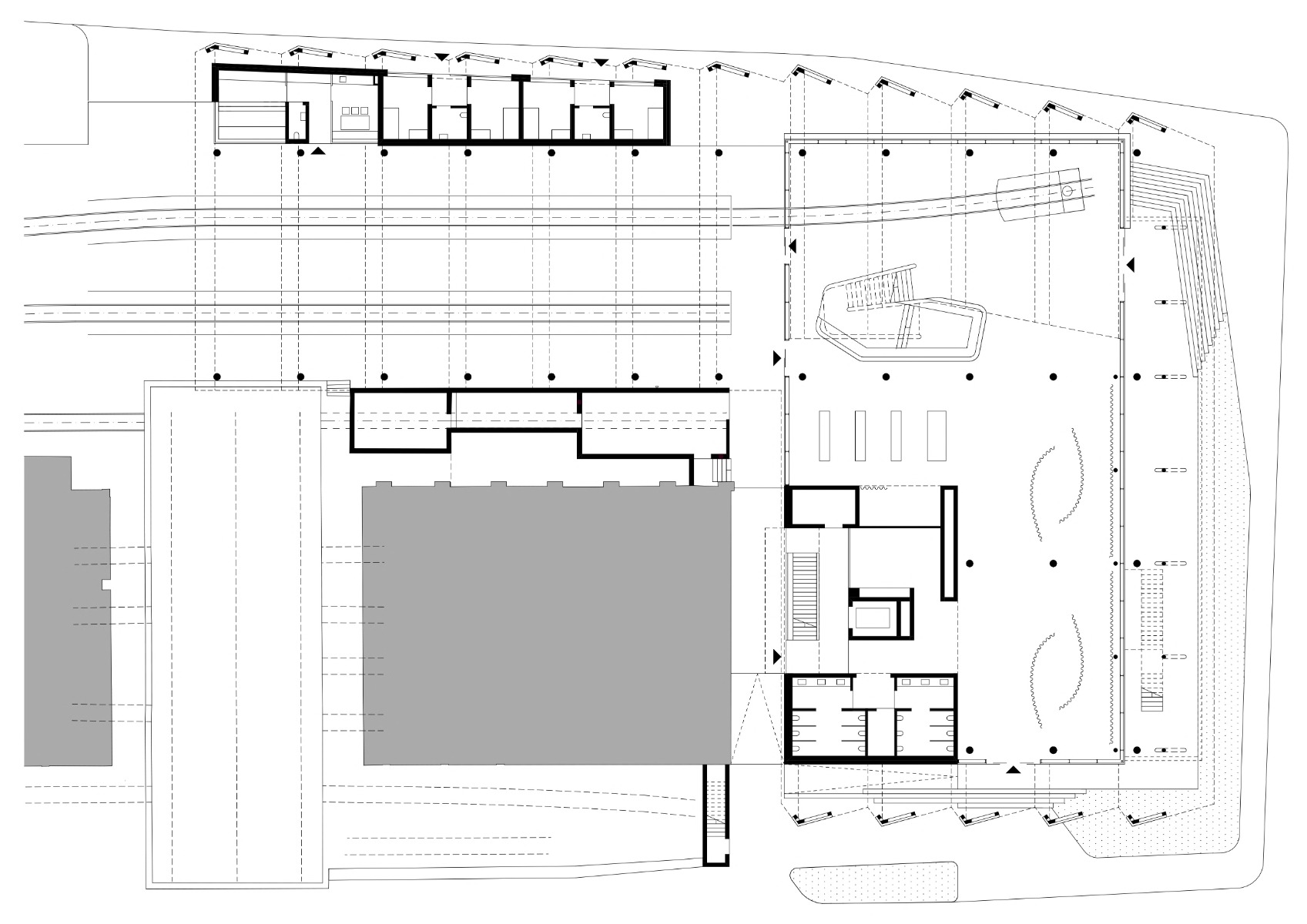
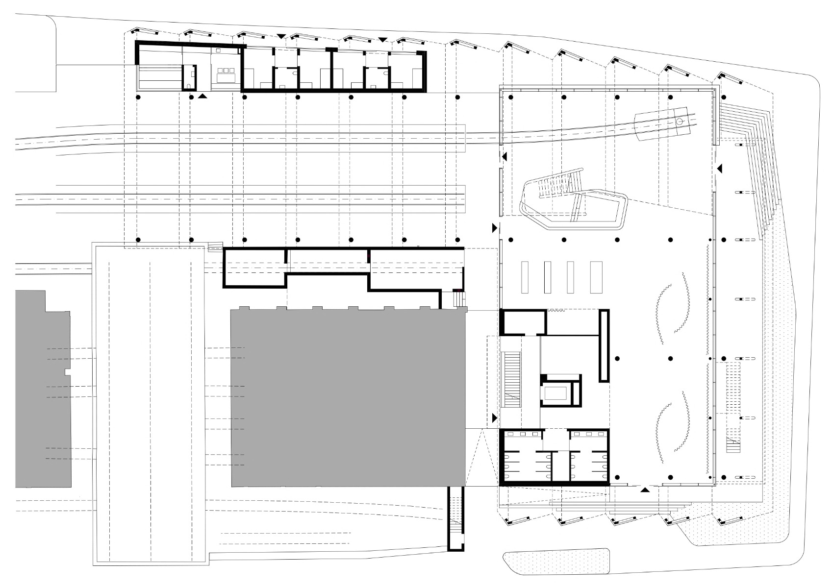
Die neue Talstation der Schafbergbahn im Salzkammergut vermittelt zwischen Berg und See, Landschaft und Dorfstruktur. Wesentlich hierfür ist die gefaltete Dach- und Fassadenkonstruktion aus Holz und Stahl.


Die gefaltete Dach- und Fassadenstruktur gliedert das große Gebäudevolumen in das Ortsbild von St. Wolfgang ein. © Albrecht Immanuel Schnabel
Die 6 km lange Zahnradbahn zwischen St. Wolfgang am gleichnamigen See und der Schafbergspitze gibt es schon seit 1893. Um ihre in die Jahre gekommene Talstation ersetzen zu lassen, war 2019 ein EU-weit offenes Wettbewerbsverfahren ausgeschrieben worden. Der daraus hervorgegangene Neubau des Büros Dunkelschwarz umfasst nicht nur die Einrichtungen, die für den Bahnbetrieb nötig sind, sondern auch Ladenflächen, einen Ausstellungs- und Veranstaltungsbereich, ein Restaurant und Verwaltungsbüros.
Bewegte Dachlandschaft
Nur eine Straße trennt die Talstation vom Seeufer samt Dampferanleger, und auch das Ortszentrum des Ferienorts St. Wolfgang ist nicht weit entfernt. Diese Schnittstellenposition zwischen See und Berg, Landschaft und kleinteiligen Nachbargebäuden bestimmte den Entwurf maßgeblich. Dach und Fassaden erhielten eine sägezahnartige Faltstruktur. Im Grundriss L-förmig umgibt der Neubau ein bestehendes Werkstattgebäude. Neben der offenen Bahnsteighalle überspannt das große Dach zwei geschlossene, aber teils großzügig verglaste Raumvolumen: das zweigeschossige Hauptgebäude an der Straße und ein eingeschossiges Nebengebäude längs der Gleise.


Unter dem Sheddach aus Holz und Stahl startet die Zahnradbahn in Richtung Schafbergspitze. © Albrecht Immanuel Schnabel
In der Konstruktion des Hallendachs ergänzen sich die Vorzüge dreier Materialien: Auf Stahlbetonstützen liegen sägezahnartige Längsträger aus Stahl auf, die die Form des Sheddachs vorzeichnen. Diese wiederum tragen gewaltige Fachwerkträger aus Holz, welche die Halle quer überspannen. Zugdiagonalen aus Stahl steifen die Fachwerkträger aus. Alle Materialien blieben unverkleidet und die Architekten achteten darauf, das Dach möglichst frei von Technikeinbauten und Durchdringungen zu halten.


Große Glasfassaden und das Sheddach holen Licht in die Eingangshalle und bieten Ausblicke Richtung See und Berge. © Albrecht Immanuel Schnabel
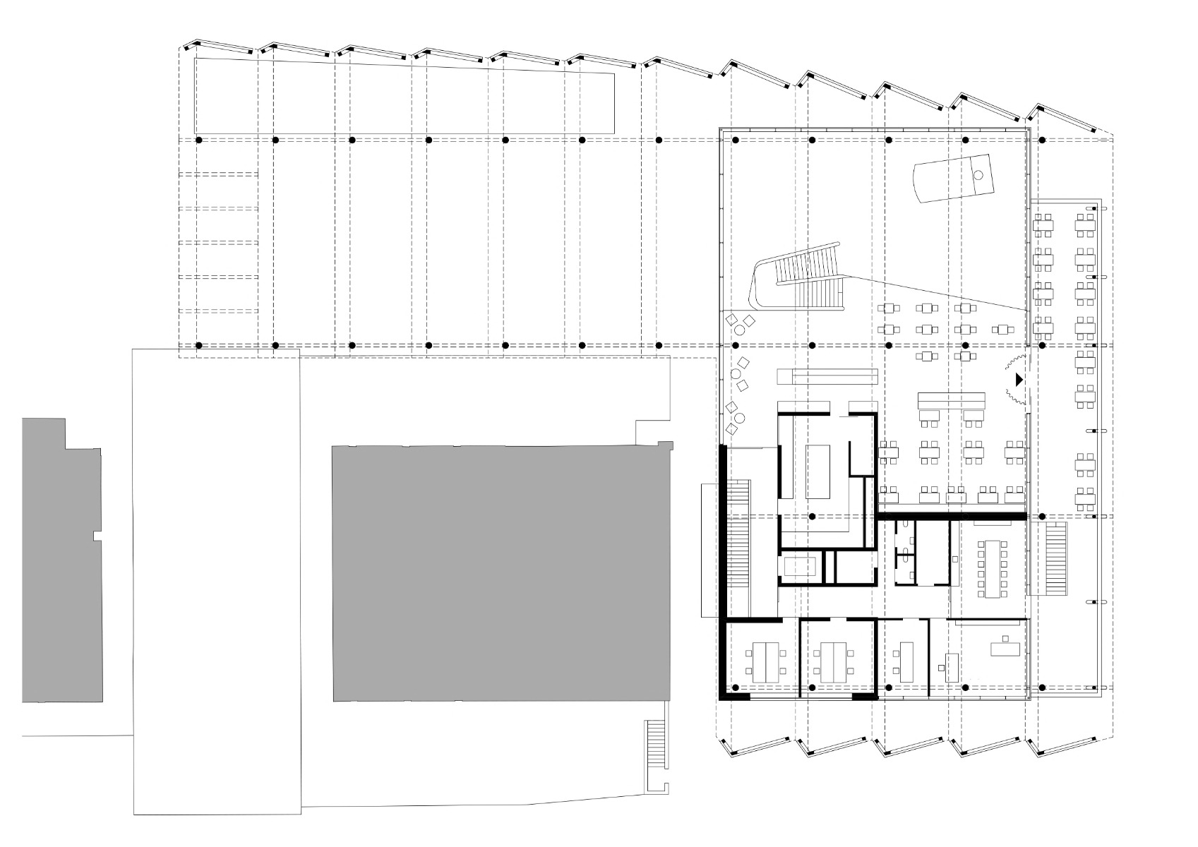
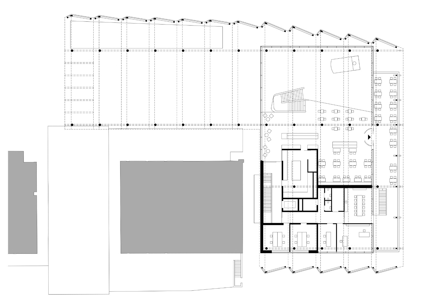
Läden, Restaurant und Büros
Die Eingangshalle ist an beiden Stirnseiten verglast und auch das Sheddach erhielt nach Nordosten weisende Oberlichter. Sie sind nicht nur für die Belichtung wichtig, sondern holen auch das Bergpanorama ins Haus. Im Erdgeschoss der Halle sind Ticket- und Informationsschalter, Sanitäranlagen und ein Ausstellungsbereich untergebracht. Eine Etage höher liegen ein Restaurant und die Büroräume.


Im Obergeschoss liegen das Restaurant und Verwaltungsbüros. © Albrecht Immanuel Schnabel
Auf der Seeseite öffnet sich das Restaurant im Obergeschoss zu einer Außenterrasse. Das Sheddach ist übrigens nicht nur Lichtfänger, sondern auch Energielieferant: Auf den geschlossenen Dachflächen ist eine Photovoltaikanlage aus rein schwarzen Full-Black-Modulen installiert. Unter der Bodenplatte des Neubaus wurden Erdkollektoren aus Soleleitungen verlegt, die in Kombination mit einer Wärmepumpenanlage die Wärme- und Kälteversorgung der Talstation sicherstellen.
Architektur: dunkelschwarz
Bauherr: Salzburg AG Tourismus
Standort: Markt 35, 5360 St. Wolfgang im Salzkammergut (AT)
Tragwerksplanung: Bauingenieure | Lackner | Egger
Brandschutz: IBS – Institut für Brandschutztechnik und Sicherheitsforschung
Bauphysik: Bauphysik-Team, Zwittlinger & Staffl Engineering
HLS-Planung: Karres Technisches Büro
Elektroplanung: Pürcher Planung
Bauunternehmen: BSU Bauservice Unterberger
Obermayer Holzkonstruktionen























