Kleines Refugium auf steilem Grundstück
Tiny House bei San Francisco von Mork-Ulnes Architects
Mit seiner schlichten Kubatur greift das kleine Gästehaus die steil geneigte Topografie des Grundstücks auf. © Bruce Damonte
In den Hügeln von San Anselmo nördlich von San Francisco steht das Wohnhaus, das Mork-Ulnes Architects um ein kleines Nebengebäude ergänzt haben. Nutzbar ist der Neubau als Gästehaus oder als separate Mieteinheit. Das steile Hanggrundstück war eine Herausforderung. Ein Glück, dass etwas unterhalb des Haupthauses bereits eine Garage stand. Deren eingeebneten Bauplatz konnten die Architekten für das Nebengebäude nutzen.
Dach und Fassaden aus Faserzement
Der Topografie entsprechend bestehen die erdberührenden Teile des Hauses aus Stahlbeton, der oberirdische Teil wurde in Holzrahmenbauweise errichtet. Auch die stark abgewinkelte Dachlinie des Gebäudes spiegelt die Neigung des Geländes wider. Sie ermöglichte es, ein hohes Oberlicht über der Schrankwand einzufügen. Am südlichen Ende schließt das Pultdach mit einer großen Gaube ab, die den einzigen zweigeschossigen Bereich des Hauses bekrönt. Dach und Fassaden sind mit Faserzementplatten verkleidet, um auf dem bewaldeten Grundstück den notwendigen Brandschutz sicherzustellen und die Wartung zu erleichtern.


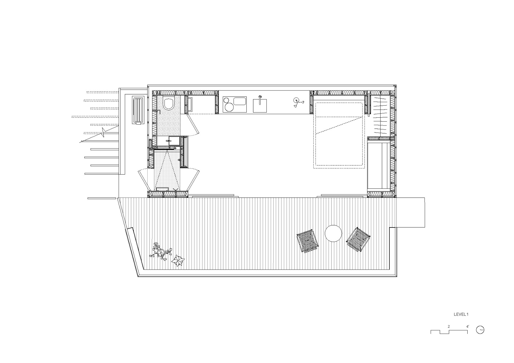
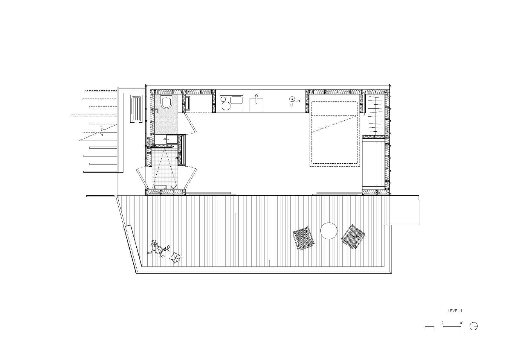
Das Erdgeschoss ist ein einziger Raum zum Wohnen, Schlafen und Essen. Er lässt sich fast völlig zum Talpanorama hin öffnen. © Bruce Damonte
Flexible Inneneinrichtung
Auf der Talseite fügten die Architekten dem Haus eine neue Terrasse an, die seine Nutzfläche effektiv verdoppelt. Im Inneren achteten Mork-Ulnes darauf, die vorhandenen 38 m² möglichst effektiv auszunutzen. Die Kücheninsel steht auf Rollen und lässt sich sogar nach draußen fahren, wenn das Wetter dies erlaubt. Ein Schrankbett kann tagsüber, wenn es nicht benötigt wird, weggeklappt werden, und der Raum im Obergeschoss ist lediglich über eine steile Leiter erreichbar. Das Badezimmer ist in zwei kleinere Räume aufgeteilt – eine Toilette mit Waschbecken und ein waldgrün gefliestes Duschbad mit einer Glastür zum baumbewachsenen Hang hin.
Architektur: Mork-Ulnes Architects
Bauherr: privat
Standort: San Anselmo, Marin County, California (US)
Tragwerksplanung: David Strandberg, Adobe Associates
Bauunternehmen: Damner Construction, Axelson Builders














