// Check if the article Layout ?>
Losgelöst: Einfamilienhaus bei Stuttgart
Foto: Brigida González
Das Einfamilienhaus fügt sich am südlichen Ende eines Wohngebiets in die vorhandene Bebauung ein. Geprägt von Beschränkungen aus den 80er-Jahren, die auch sonst ihre Spuren durch die Siedlung ziehen, entsteht ein rechteckiger Bau mit einem Satteldach.
Der zweigeschossige Bau ist am Nordrand des Grundstücks positioniert. Von der Straße leicht zurückversetzt und durch ein direkt vor dem Haus liegendes Carport schafft man eine gewisse Privatheit. Im Süden gibt es genügend Platz für einen großzügigen Garten und Ausblick in die umliegende Natur.
Bedingt durch eine leichte Hanglage betritt man das Haus auf der oberen Etage. Das darunterliegende Geschoss geht direkt in den Garten über. Den Wunsch einer schlichten Architektur mit maximalem Bezug nach draußen kann man schon an den Außenansichten ablesen. So gibt es in südlicher Richtung fast nur Glas, während die Nordseite etwas verschlossener in Erscheinung tritt. Die Fassaden sind in sägeraue, lasierte Holzbretter gekleidet. Horizontal ausgerichtet betonen sie den durchgängigen Charakter des Baus und sorgen, gemeinsam mit Sichtbeton und Holzdielen, für eine bodenständige Optik.
Die Konstruktion beruht auf einem Stahlbetonskelett. Dieses ermöglicht auch die architektonische Besonderheit im Obergeschoss, die den Bau hervorhebt: eine verglaste Fuge zwischen dem Baukörper und dem abschließenden Satteldach. Auf den Betrachter wirkt es nahezu so, als würde das Dach schweben, im Inneren ermöglicht es lichtdurchflutete Räume.
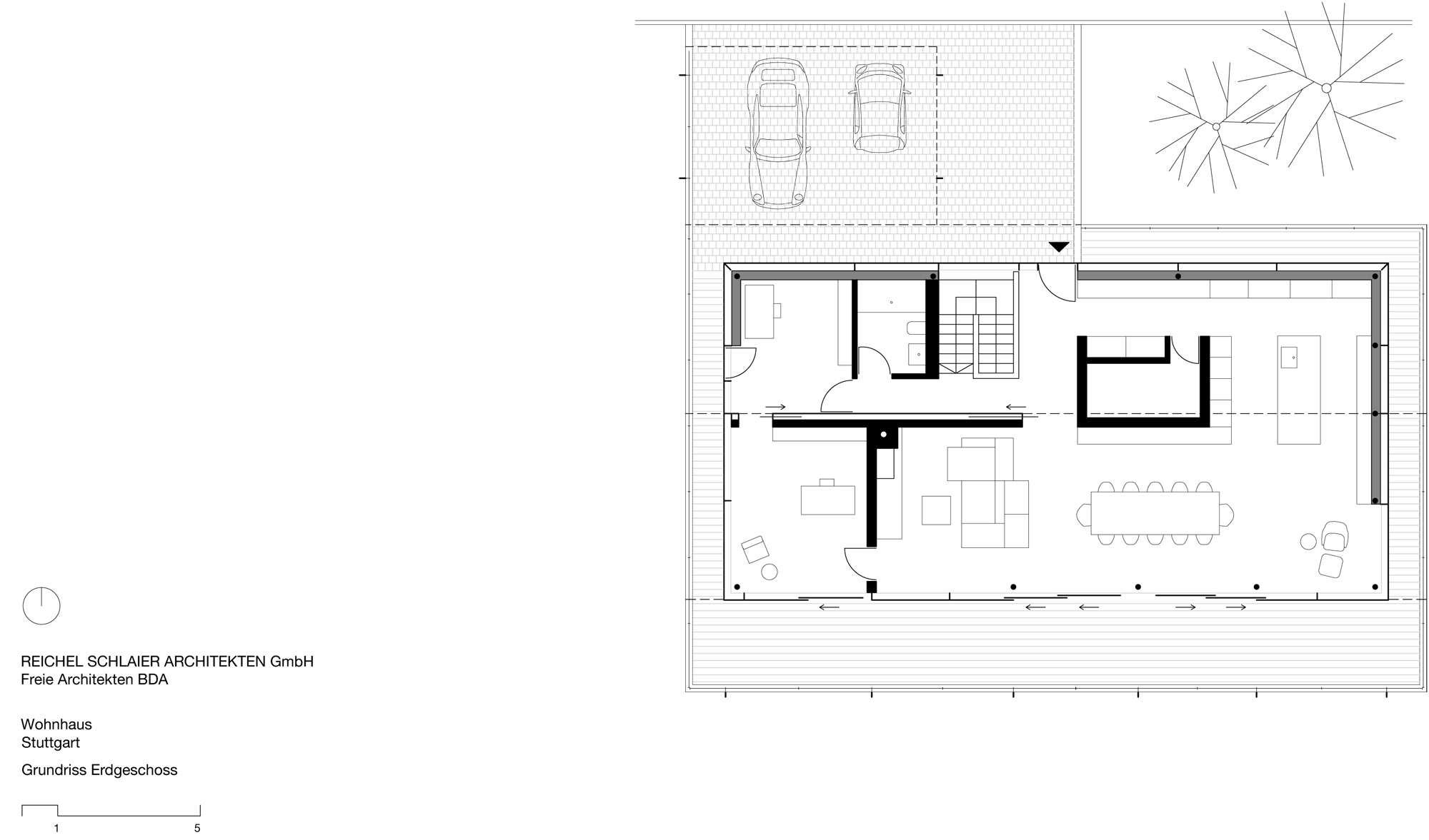
Bei der Aufteilung der Innenräume dreht sich alles um die Interaktion mit der umgebenden Landschaft. Das spürt man auch in der Grundrissgestaltung. Auf beiden Niveaus gibt es umlaufende Balkone, die das zentrale Entwurfselement darstellen. Im Obergeschoss sind die Gemeinschaftsbereiche, wie Küche, Wohn- und Esszimmer untergebracht. Die dem Garten zugewandte Glasfront lässt sich komplett aufschieben und holt so die Natur ins Haus. Gleichzeitig ergibt sich ein vor Witterung und Sonne geschützter Außenraum, da das Dach die Balkone überragt. Das Satteldach bringt außerdem zusätzliche Höhe und bekräftigt das offene Raumprogramm. Das untere Level widmet sich den privateren Räumen. Neben zwei Bädern gibt es vier abgetrennte Zimmer, die alle nach Süden orientiert sind und über einen Zugang nach draußen verfügen.
Dank der vielen Fensterflächen sind sämtliche Bereiche lichtdurchflutet, die Grenzen zwischen Innen und Außen scheinen tatsächlich zu verschwinden. Das Design der Innenräume folgt einer klaren, modernen Linie. Helle Holzböden in Kombination mit viel Weiß und einzelnen Farbakzenten laden zum Bewohnen und Entspannen ein.

























