// Check if the article Layout ?>
Modular konzipiert: Vier Grundschulen in München
Foto: Brigida Gonzáles
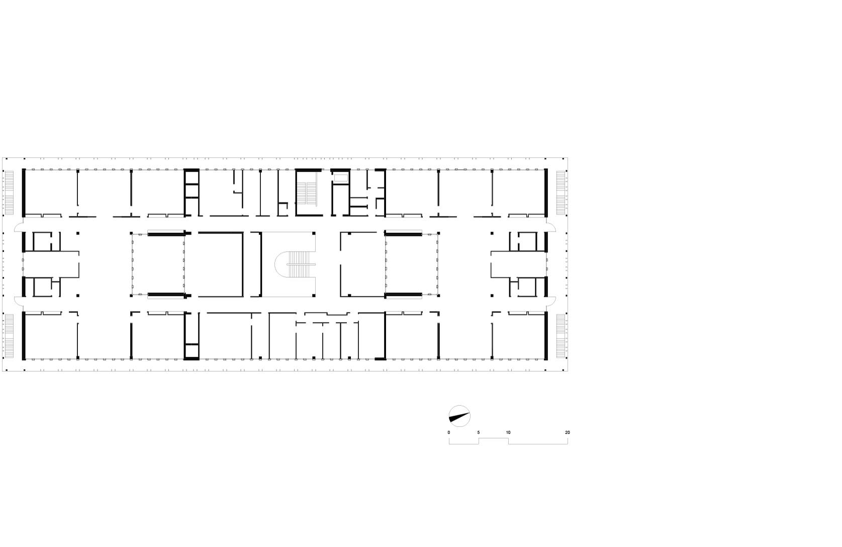
Zentraler Bestandteil des Wettbewerbs war das sogenannte Münchner Lernhauskonzept, das seit dem Jahr 2014 die Grundlage für alle Schulneubauten und -sanierungen in München bildet. Kern des Konzepts ist die dezentrale Gliederung in modulare, überschaubare Einheiten: Jeweils vier Klassenzimmer für 24 bis 28 Schüler, zwei Räume für die Ganztagsbetreuung, ein Arbeitsraum für Lehrkräfte und Betreuer sowie Nebenräume und ein gemeinsamer Pausenbereich sind in dem so genannten Lernhaus zusammengefasst. Zuschaltbare Räume, flexible und transparente Wände ermöglichen verschiedene Unterrichts- und Betreuungsformen, die auch den Anforderungen von Ganztagsschulen gerecht werden.
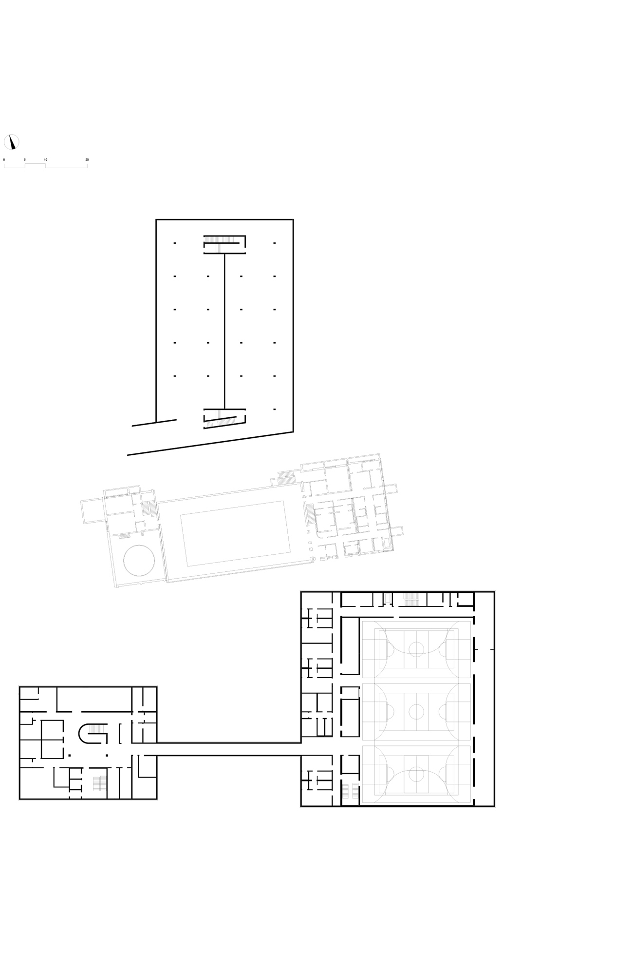
Mit ihrem modularen Entwurf gingen wulf architekten aus Stuttgart bei dem 2013 ausgelobten Wettbewerb als klarer Sieger hervor. Das Grundrissmodul des Lernhauses basiert auf einem Raster von 10,5 × 9 m und lässt sich bis zu drei Geschosse hoch stapeln. Auch kann es auf andere Funktionen wie Sporthalle oder Kindertagesstätte aufgesetzt werden. Ein integriertes Atrium stellt die Belichtung der innenliegenden Bereiche sicher. Übergeordnete Funktionen wie Haupteingang, Foyer, Haupttreppe, Mensa, Verwaltungs- und Fachräume sind in einem Sondermodul untergebracht, das an die Gegebenheiten der einzelnen Schule angepasst werden kann. Auf diese Weise können je nach städtebaulicher Situation unterschiedliche, zwei- bis dreigeschossige Baukörper entstehen.
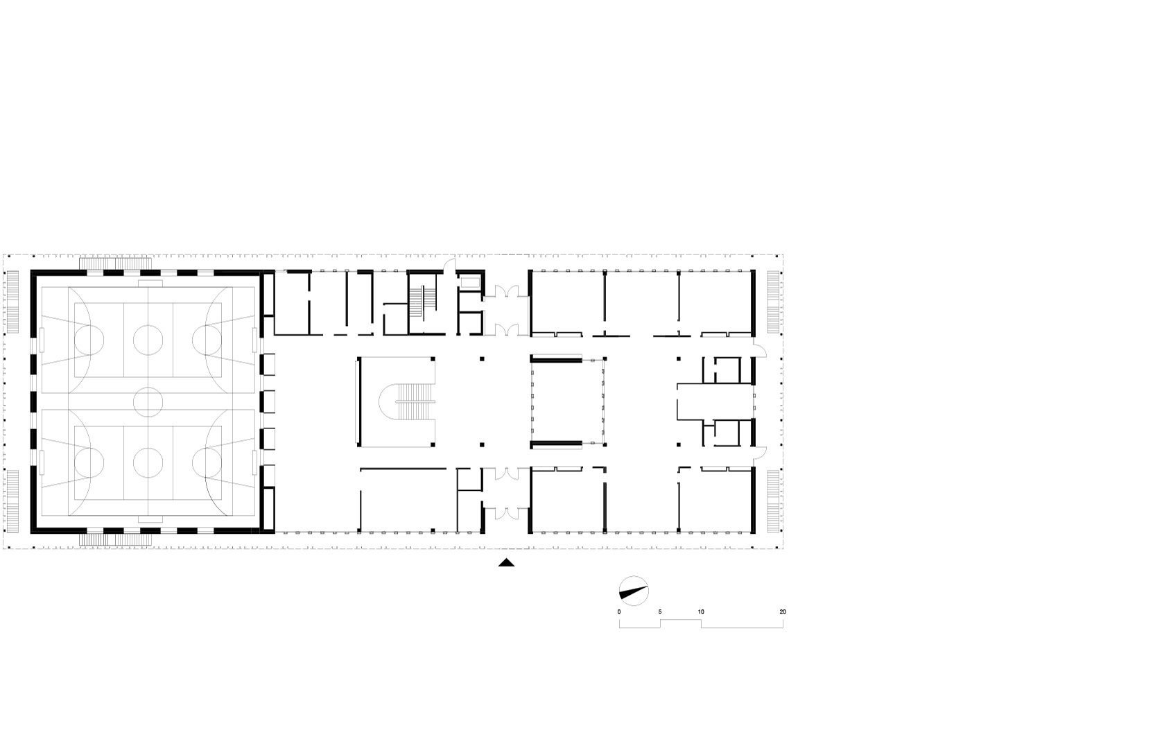
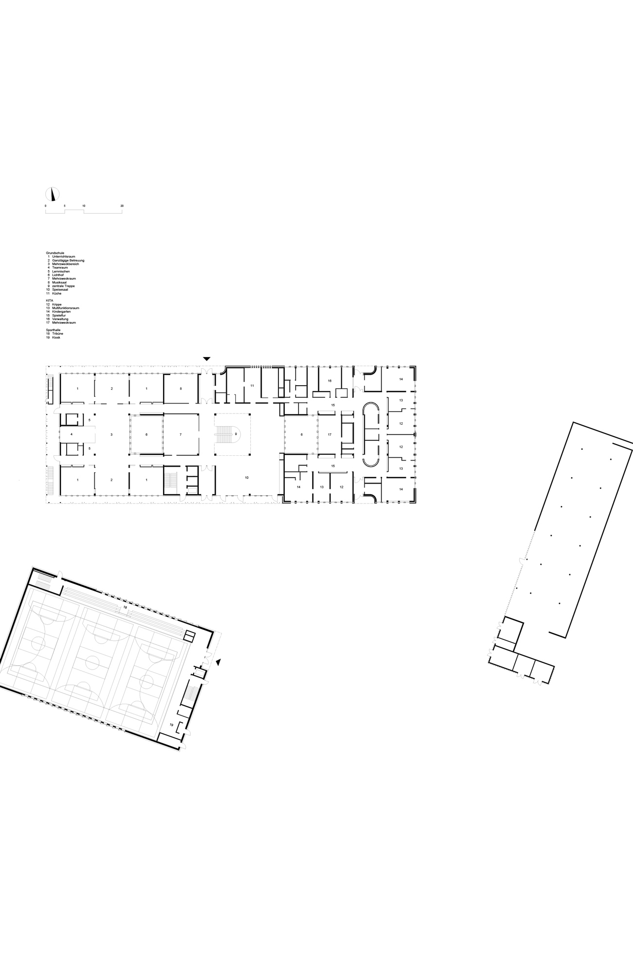
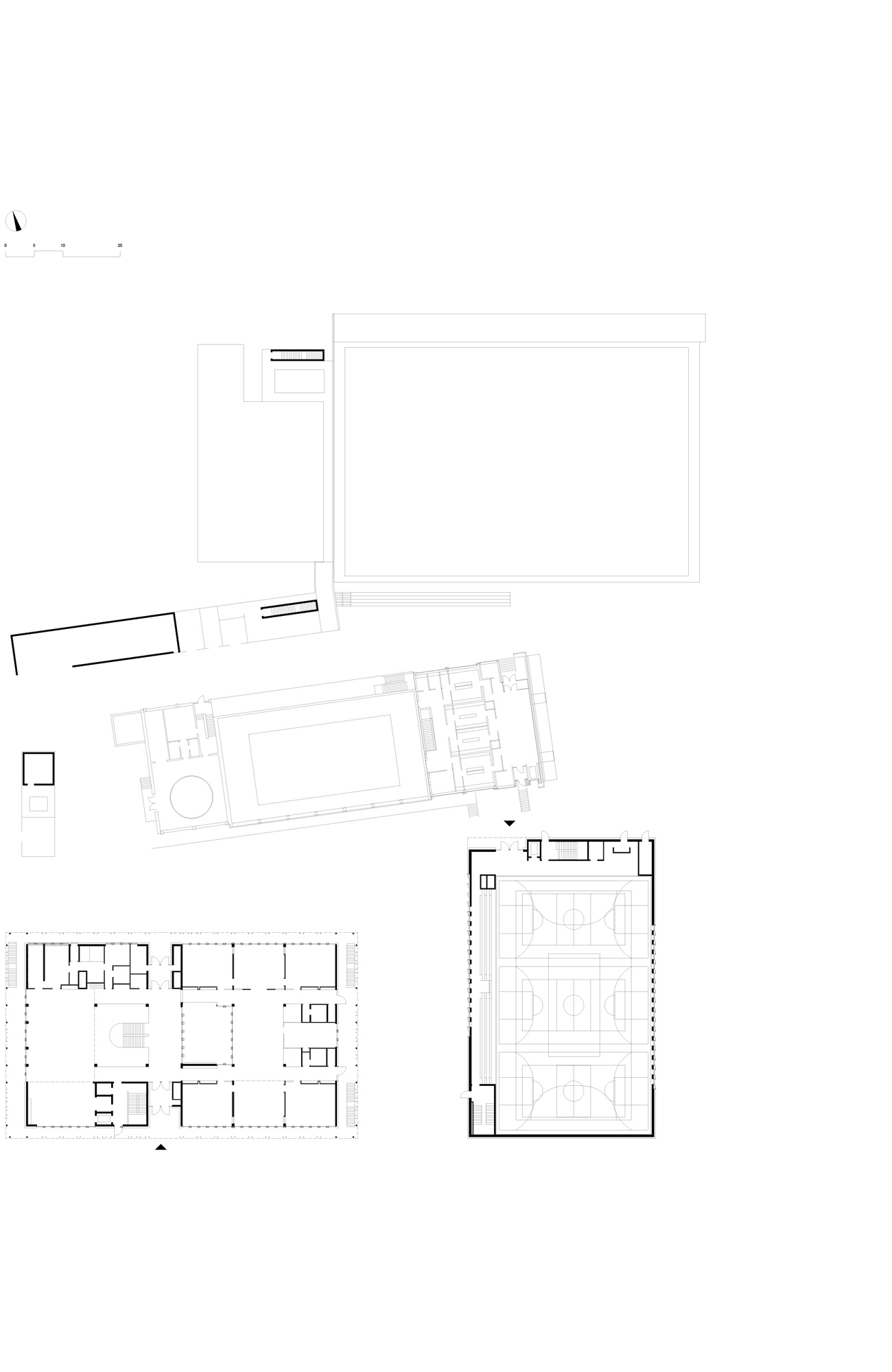
In Ergänzung zu unserem Artikel in DETAIL 9/2018 publizieren wir an dieser Stelle die ausführlichen Nutzerstimmen und weitere Fotos zur Grundschule Gustl-Bayrhammer-Straße. Darüber hinaus zeigen wir exemplarisch Grundrisse und Schnitte der anderen drei Grundschulen.
»An den Lernhäusern schätze ich vor allem die flexiblen Räume zwischen den Klassenzimmern. Dort können Schüler und Lehrer zum Beispiel unkompliziert ein gemeinsames Frühstück veranstalten oder ein Elterncafé. Auch für Ausstellungen, Bastelaktionen und Filmvorführungen sind die Flächen hervorragend geeignet. Nur die gleichzeitige Nutzung durch den Hort ist nicht ideal, da sich Lehrer und Betreuer über die Belegung und auch die Möblierung abstimmen müssen. Der Hort möchte z.B. einen Kickertisch anschaffen; dieser kann aber unmöglich in solch einem flexibel nutzbaren Raum stehen. Daher überlegen wir, ob der Hort künftig ein komplettes Lernhaus im Erdgeschoss bekommt. Schließlich sind Hort und Schule auch organisatorisch komplett getrennt.
Grundsätzlich wäre es schön gewesen, wenn wir als Lehrer mit in die Planung einbezogen worden wären. Leider war dies überhaupt nicht der Fall. Lediglich einige Details bei der Möblierung durften wir am Schluss mitbestimmen. Schade finde ich auch, dass die Fluchtbalkone im normalen Schulbetrieb nicht genutzt werden können. Aber ich möchte nicht zu viel Negatives sagen. Atmosphärisch ist das Schulgebäude wirklich gelungen – alles ist sehr großzügig und hell.« – Gertrud Füchsle, Rektorin
»Ich finde die Lernhäuser gut, weil sie nach Jahrgängen aufgeteilt sind. Außerdem mag ich den Fußballplatz auf dem Schulhof und das neue Klettergerüst.« – Sami, 9
»Mir gefällt an der neuen Schule nicht so gut, dass die Klassenzimmer kleiner sind als vorher.« – Hannah, 10
»Der offene Bereich in der Mitte ist cool! Wenn es in der Pause regnet, können wir dort toben und spielen oder in der Kuschelecke ein Buch lesen. Früher konnten wir dann nur im Klassenzimmer sitzen und unser Pausenbrot essen.«– Lina, 10
»Besonders gut gefallen mir die neuen Tafeln, weil man damit viel machen kann.« – Emma, 10
»Ich finde gut, dass es in den Lernhäusern so viel Platz gibt. Wenn jemand eine Probe nachschreiben muss, kann er in den Nebenraum gehen und wird dort nicht gestört.« – Nicolas, 9
Mit ihrem modularen Entwurf gingen wulf architekten aus Stuttgart bei dem 2013 ausgelobten Wettbewerb als klarer Sieger hervor. Das Grundrissmodul des Lernhauses basiert auf einem Raster von 10,5 × 9 m und lässt sich bis zu drei Geschosse hoch stapeln. Auch kann es auf andere Funktionen wie Sporthalle oder Kindertagesstätte aufgesetzt werden. Ein integriertes Atrium stellt die Belichtung der innenliegenden Bereiche sicher. Übergeordnete Funktionen wie Haupteingang, Foyer, Haupttreppe, Mensa, Verwaltungs- und Fachräume sind in einem Sondermodul untergebracht, das an die Gegebenheiten der einzelnen Schule angepasst werden kann. Auf diese Weise können je nach städtebaulicher Situation unterschiedliche, zwei- bis dreigeschossige Baukörper entstehen.
In Ergänzung zu unserem Artikel in DETAIL 9/2018 publizieren wir an dieser Stelle die ausführlichen Nutzerstimmen und weitere Fotos zur Grundschule Gustl-Bayrhammer-Straße. Darüber hinaus zeigen wir exemplarisch Grundrisse und Schnitte der anderen drei Grundschulen.
»An den Lernhäusern schätze ich vor allem die flexiblen Räume zwischen den Klassenzimmern. Dort können Schüler und Lehrer zum Beispiel unkompliziert ein gemeinsames Frühstück veranstalten oder ein Elterncafé. Auch für Ausstellungen, Bastelaktionen und Filmvorführungen sind die Flächen hervorragend geeignet. Nur die gleichzeitige Nutzung durch den Hort ist nicht ideal, da sich Lehrer und Betreuer über die Belegung und auch die Möblierung abstimmen müssen. Der Hort möchte z.B. einen Kickertisch anschaffen; dieser kann aber unmöglich in solch einem flexibel nutzbaren Raum stehen. Daher überlegen wir, ob der Hort künftig ein komplettes Lernhaus im Erdgeschoss bekommt. Schließlich sind Hort und Schule auch organisatorisch komplett getrennt.
Grundsätzlich wäre es schön gewesen, wenn wir als Lehrer mit in die Planung einbezogen worden wären. Leider war dies überhaupt nicht der Fall. Lediglich einige Details bei der Möblierung durften wir am Schluss mitbestimmen. Schade finde ich auch, dass die Fluchtbalkone im normalen Schulbetrieb nicht genutzt werden können. Aber ich möchte nicht zu viel Negatives sagen. Atmosphärisch ist das Schulgebäude wirklich gelungen – alles ist sehr großzügig und hell.« – Gertrud Füchsle, Rektorin
»Ich finde die Lernhäuser gut, weil sie nach Jahrgängen aufgeteilt sind. Außerdem mag ich den Fußballplatz auf dem Schulhof und das neue Klettergerüst.« – Sami, 9
»Mir gefällt an der neuen Schule nicht so gut, dass die Klassenzimmer kleiner sind als vorher.« – Hannah, 10
»Der offene Bereich in der Mitte ist cool! Wenn es in der Pause regnet, können wir dort toben und spielen oder in der Kuschelecke ein Buch lesen. Früher konnten wir dann nur im Klassenzimmer sitzen und unser Pausenbrot essen.«– Lina, 10
»Besonders gut gefallen mir die neuen Tafeln, weil man damit viel machen kann.« – Emma, 10
»Ich finde gut, dass es in den Lernhäusern so viel Platz gibt. Wenn jemand eine Probe nachschreiben muss, kann er in den Nebenraum gehen und wird dort nicht gestört.« – Nicolas, 9




















