// Check if the article Layout ?>
Mehr Raum, mehr Licht: Bürogebäude #Cloud.Paris
Mit dem Umzug des Bankhauses Crédit Lyonnais wurde 2012 im 2. Pariser Arrondissements ein größerer Gebäudekomplex frei, der die Chance bot, in der zentralen Lage zwischen Opéra Garnier und Alter Börse innovative Arbeitswelten zu realisieren. Der Pariser Architekt Philippe Chiambaretta transformierte hierfür die drei heterogenen Bestandsbauten verschiedener Epochen zu einem neuen Ganzen – im äußeren Erscheinungsbild ebenso wie in der Grundrissorganisation, um mit großzügigen, flexiblen Büroflächen, zeitgemäßen Standards und hoher räumlichen Qualität ein attraktives Arbeitsumfeld zu schaffen.
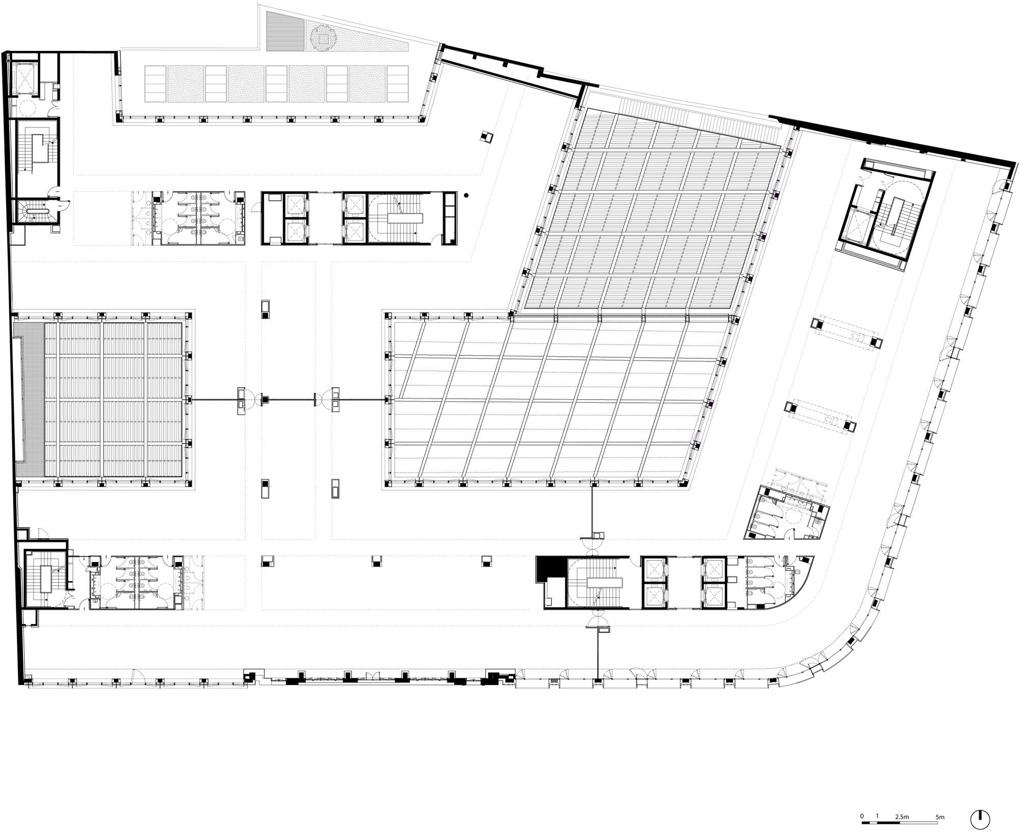
Dazu wurde die gesamte innere Organisation neu konzipiert. Um die Gebäude zu verknüpfen und durchgehende Büroetagen zu realisieren, musste im großen Maßstab entkernt werden, fast die Hälfte der Gebäudesubstanz wurde abgetragen. Nun sind die Geschossdecken niveaugleich verbunden und die neue Tragstruktur ermöglicht offene Grundrisse für unterschiedliche Bürokonzepte, ob Zellenbüros oder Großraum. Zusätzliche Büroflächen wurden durch ein neues Attikageschoss geschaffen, das über dem denkmalgeschützten Bestandsgebäude in der Mitte des Ensembles die beiden flankierenden Gebäude verbindet. Bei einer Bürofläche von 35 000 m² bietet der Gebäudekomplex nun Raum für bis zu 2500 Mitarbeiter.
Ein weiterer wesentlicher Punkt des architektonischen Konzepts war, die räumlichen Ressourcen der Untergeschosse für Konferenzräume und hauseigene Restaurants zu nutzen; ein Drittel der Gesamtflächen liegen jetzt im Souterrain und den Untergeschossen. Gelungen ist dies durch die Einbeziehung von drei vormaligen Innenhöfen und deren Erweiterung nach unten. So gruppieren sich Cafeteria und Restaurants im 2. Untergeschoss um großzügig bepflanzte Innenhöfe, die um zwei Etagen vertieft wurden und deren Terrassen zu Pausen einladen. Die Höfe sind nach oben mit schräggestellten Glaslamellen vor direktem Einblick geschützt, die Lamellen reflektieren zudem das Licht nach unten und sorgen für eine erstaunliche Helligkeit.
Der zentrale Innenhof wurde in einen viergeschossigen, glasgedeckten lichtdurchfluteten Raum verwandelt – das Atrium, das sich an das Foyer des Haupteingangs anschließt. Hier haben die Architekten Noé Duchaufour Lawrence mehrere organisch geformte Möbelobjekte entworfen, die den Raum zonieren und sich für kurze Treffen oder informelle Besprechungen anbieten, abgeschirmt durch die feine Hülle aus horizontalen Holzlamellen.
Um im kompakten Gebäudeblock die bis zu 21 Meter breiten Baukörper und die Souterrain-Ebenen mit ausreichend Tageslicht zu versorgen, zeichnet sich das gesamte Gebäude durch transparente Fassaden aus, deren raumhohe Verglasungen von schmalen Profilen gefasst sind. Ein quadratisches Raster prägt die Straßenfronten ebenso wie die Innenhoffassaden und zieht sich auch über das Glasdach des Atriums, um eine optische Einheit zu bilden. Doch lässt die differenzierte Gestaltung die ursprünglichen Gebäudeteile erkennen: Während die Fassade des westlichen Hausteils, der den Vorgängerbau aus den 1960er-Jahren ersetzt, durch schlanke Metalllaibungen gegliedert wird, wurden dem östlichen Gebäudeteil mit seiner markanten gerundeten Ecke quadratische »Kastenfenster« vorgesetzt; diese beiden neu gestalteten Gebäudeteile rahmen die minutiös sanierte Stahl-Ziegel-Fassade des historischen Gewerbebaus in der Mitte des Ensembles.
Ein besonderes Plus für die Mitarbeiter bieten die drei obersten Etagen, deren Räumen große Dachterrassen vorgelagert sind. Mit Sitzbänken und Pflanztrögen überraschen sie als weitläufige Aussichtsdecks auf die Stadt. Und sie führen fort, was schon um 1900 angelegt war: Bereits im ursprünglichen Bau der Bankzentrale stand hier den Mitarbeitern ein Dachgarten für Pausen zur Verfügung.
Dazu wurde die gesamte innere Organisation neu konzipiert. Um die Gebäude zu verknüpfen und durchgehende Büroetagen zu realisieren, musste im großen Maßstab entkernt werden, fast die Hälfte der Gebäudesubstanz wurde abgetragen. Nun sind die Geschossdecken niveaugleich verbunden und die neue Tragstruktur ermöglicht offene Grundrisse für unterschiedliche Bürokonzepte, ob Zellenbüros oder Großraum. Zusätzliche Büroflächen wurden durch ein neues Attikageschoss geschaffen, das über dem denkmalgeschützten Bestandsgebäude in der Mitte des Ensembles die beiden flankierenden Gebäude verbindet. Bei einer Bürofläche von 35 000 m² bietet der Gebäudekomplex nun Raum für bis zu 2500 Mitarbeiter.
Ein weiterer wesentlicher Punkt des architektonischen Konzepts war, die räumlichen Ressourcen der Untergeschosse für Konferenzräume und hauseigene Restaurants zu nutzen; ein Drittel der Gesamtflächen liegen jetzt im Souterrain und den Untergeschossen. Gelungen ist dies durch die Einbeziehung von drei vormaligen Innenhöfen und deren Erweiterung nach unten. So gruppieren sich Cafeteria und Restaurants im 2. Untergeschoss um großzügig bepflanzte Innenhöfe, die um zwei Etagen vertieft wurden und deren Terrassen zu Pausen einladen. Die Höfe sind nach oben mit schräggestellten Glaslamellen vor direktem Einblick geschützt, die Lamellen reflektieren zudem das Licht nach unten und sorgen für eine erstaunliche Helligkeit.
Der zentrale Innenhof wurde in einen viergeschossigen, glasgedeckten lichtdurchfluteten Raum verwandelt – das Atrium, das sich an das Foyer des Haupteingangs anschließt. Hier haben die Architekten Noé Duchaufour Lawrence mehrere organisch geformte Möbelobjekte entworfen, die den Raum zonieren und sich für kurze Treffen oder informelle Besprechungen anbieten, abgeschirmt durch die feine Hülle aus horizontalen Holzlamellen.
Um im kompakten Gebäudeblock die bis zu 21 Meter breiten Baukörper und die Souterrain-Ebenen mit ausreichend Tageslicht zu versorgen, zeichnet sich das gesamte Gebäude durch transparente Fassaden aus, deren raumhohe Verglasungen von schmalen Profilen gefasst sind. Ein quadratisches Raster prägt die Straßenfronten ebenso wie die Innenhoffassaden und zieht sich auch über das Glasdach des Atriums, um eine optische Einheit zu bilden. Doch lässt die differenzierte Gestaltung die ursprünglichen Gebäudeteile erkennen: Während die Fassade des westlichen Hausteils, der den Vorgängerbau aus den 1960er-Jahren ersetzt, durch schlanke Metalllaibungen gegliedert wird, wurden dem östlichen Gebäudeteil mit seiner markanten gerundeten Ecke quadratische »Kastenfenster« vorgesetzt; diese beiden neu gestalteten Gebäudeteile rahmen die minutiös sanierte Stahl-Ziegel-Fassade des historischen Gewerbebaus in der Mitte des Ensembles.
Ein besonderes Plus für die Mitarbeiter bieten die drei obersten Etagen, deren Räumen große Dachterrassen vorgelagert sind. Mit Sitzbänken und Pflanztrögen überraschen sie als weitläufige Aussichtsdecks auf die Stadt. Und sie führen fort, was schon um 1900 angelegt war: Bereits im ursprünglichen Bau der Bankzentrale stand hier den Mitarbeitern ein Dachgarten für Pausen zur Verfügung.
Projektleiter: Françoise Boudet, Xavier Laroche, Yves Thougart
Mitarbeiter: Émilie Chambre, Arthur Couprie, Julie Deglesne, Didier Gratio,
Emmanuelle Henin, Cuong Nguyen, Sabine Sachter, Grégoire Seriyes, Laura Bouday,
Johanna Carl, Anastasia Kritikou, Elena Martinez, Cuong Nguyen
Innenarchitektur:
PCA / Philippe Mirailler Beratung PCA : Büroetagen, Foyer, Business Center
Noé Duchaufour Lawrence: Einbauten und Möbel E-lounge Atrium
DL2A - Didier Lefort : Restaurantbereiche
Agent M - Matthieu Paillard : Eingang, Treppe Restaurant, Signaletik
Geschossfläche: 34 650 m²
Mitarbeiter: Émilie Chambre, Arthur Couprie, Julie Deglesne, Didier Gratio,
Emmanuelle Henin, Cuong Nguyen, Sabine Sachter, Grégoire Seriyes, Laura Bouday,
Johanna Carl, Anastasia Kritikou, Elena Martinez, Cuong Nguyen
Innenarchitektur:
PCA / Philippe Mirailler Beratung PCA : Büroetagen, Foyer, Business Center
Noé Duchaufour Lawrence: Einbauten und Möbel E-lounge Atrium
DL2A - Didier Lefort : Restaurantbereiche
Agent M - Matthieu Paillard : Eingang, Treppe Restaurant, Signaletik
Geschossfläche: 34 650 m²

























