// Check if the article Layout ?>
A Shadow at the Entrance to the Town: House in Nöttingen
Photo: Stephan Baumann
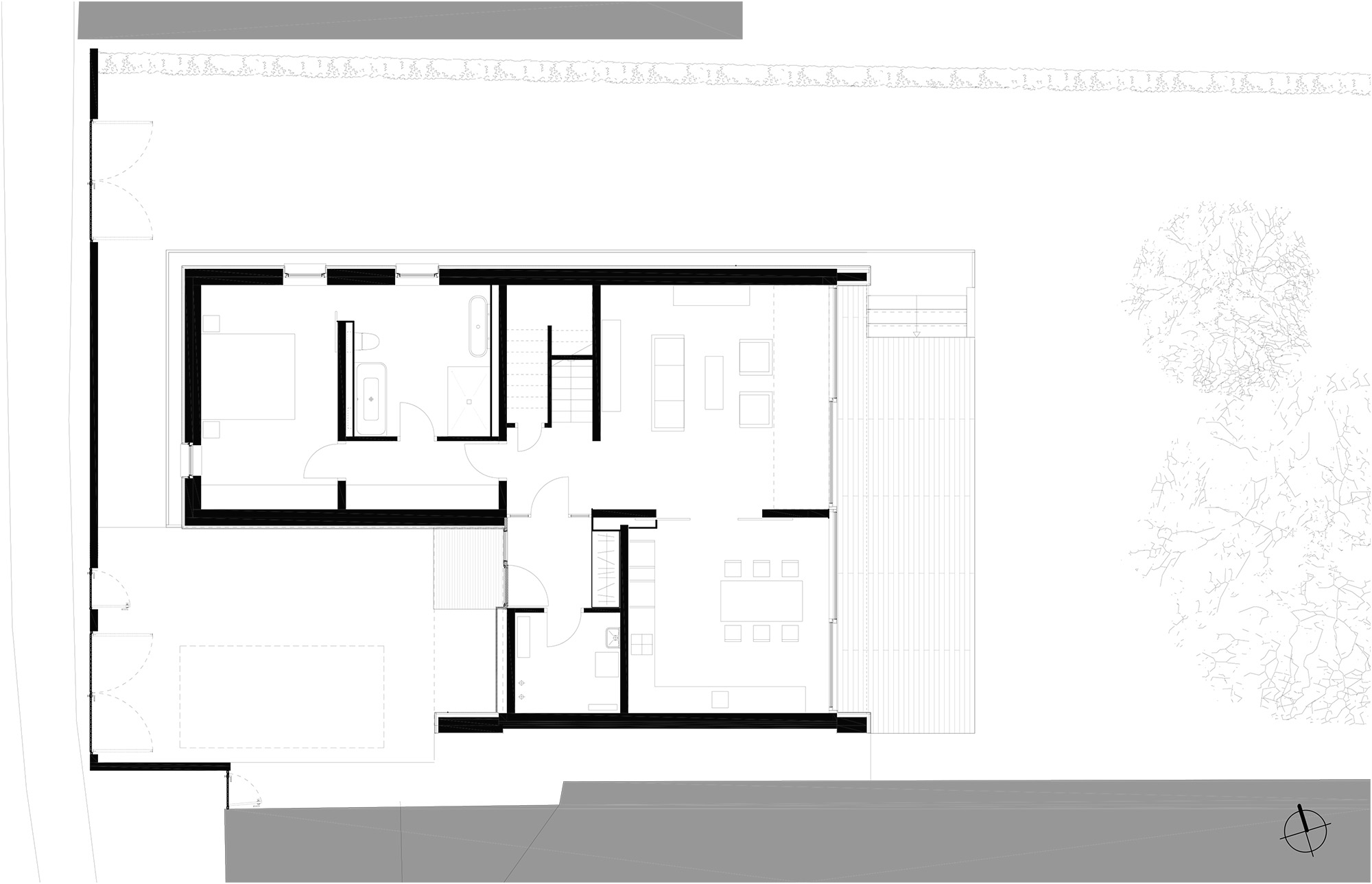
Nöttingen, located about halfway between Karlsruhe and Pforzheim, is a town of 2,500 inhabitants. The community enjoyed its 90 minutes of fame in August 2015, when the local football team played Bayern München for the DFB Cup – and lost 3-1. The town looks like many other linear settlements in Baden: gable-fronted detached houses, generally getting on a bit and densely arranged, line the main street. Newer residential areas extend along the other streets.
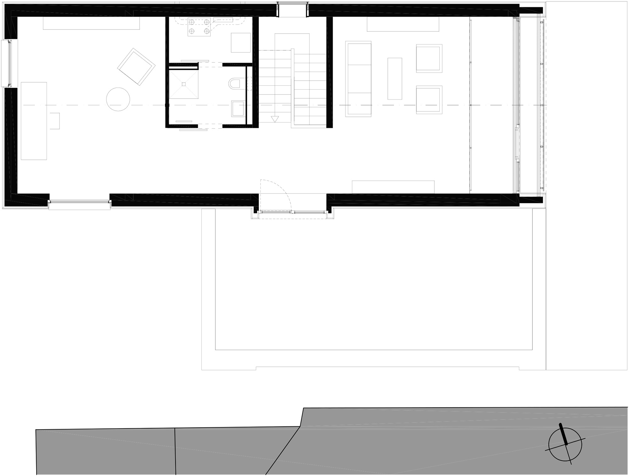
Right at the south entrance to the town, Karlsruhe architect Thomas Fabrinsky has erected a new building that dances subtly out of step. Haus S – codename “black sheep” occupies a once-vacant lot beside a decommissioned mill. Seen from a passing car, the house looks like a large shadow: only two windows open onto the street-side gabled front. However, a generous glass façade opens onto the east-facing garden. Only upstairs do wooden slats protect the homeowners from the sun and curious glances from outside. The garden, to a large extent, has been left in its original condition: an orchard which comes all the way up to the small wooden terrace adjacent to the house.
White characterizes the surfaces, accented by flooring, window frames and handrails of oiled oak. Upstairs, a small lounge is set back a bit from the glazed east façade, creating a two-storey gallery. On the eaves side of the house, floor-to-ceiling windows let in the light and allow views of the outdoors- and of the sky, for the façade and roof glazing join seamlessly over the stairway.
















