Adaptive Redevelopment: Montcrest School in Toronto
Around 1900, Toronto underwent extensive urban expansion in the Period Revival style, which was inspired by English medieval architecture. On Broadview Avenue, an entire row of these typical red-brick buildings featuring polygonal bay windows has been preserved. Many are historically protected, meaning special consideration must be given in any constructive intervention.
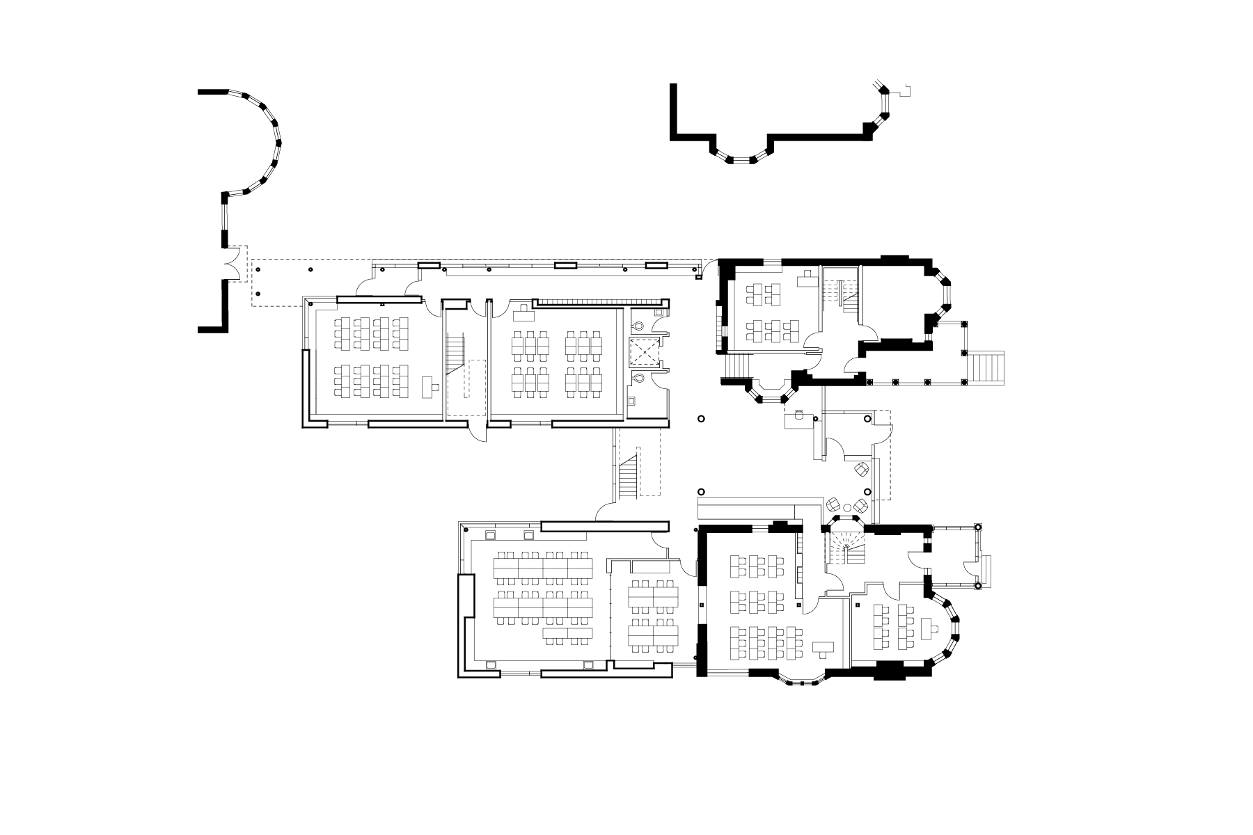
Montgomery Sisam Architects faced the challenge of respecting the row of period houses as they are and adding a school building to the Montcrest School Toronto. Three of the historically protected houses have been renovated and introduced into the spatial program. The interiors in particular demonstrate new organization and design; outside, the appearance of the houses was to remain unaltered as far as possible.
As a modern element in the project, a new construction of glass now sits, set slightly back, among the houses. In both design and dimensions, it is quite diffident as it joins its neighbours to each other. For this addition, the architects deliberately chose materials that would stand apart from the existing buildings yet be light and unassuming. Beside the large, vertically divided glass surfaces, light-grey metal sheeting covers the few closed-off areas of the façade. The result is compatible with the urban environment without copying the historical building style.
The three period homes accommodate administrative offices and small, quiet spaces. The new building is home to classrooms respectively equipped for specific subjects: the sciences, art and music. Moreover, a large assembly room offers sufficient space for group projects and informal events. A special area of the school is the learning garden located in the inner courtyard, which faces away from the street and enjoys a tranquil atmosphere. This design for the campus will make the best use of the available spaces on the grounds, reinforce the school’s identity and contribute to ongoing improvements in the community.











