// Check if the article Layout ?>
An Old Wooden Barn for a Young Family: Haus Moser in the Stubai Valley
Photo: Wolfgang Retter
Architect Robert Pfurtscheller has upgraded an abandoned, 150-year-old wooden barn into a family home. The barn (originally slated for demolition) was disassembled and rebuilt about 800 metres away on the building lot. However, the spatial program for the new use is virtually undetectable from the appearance of the old façade. Seen from outside, the barn remains largely unchanged. In fact, the existing structure determined the language of materials and forms in the new building.
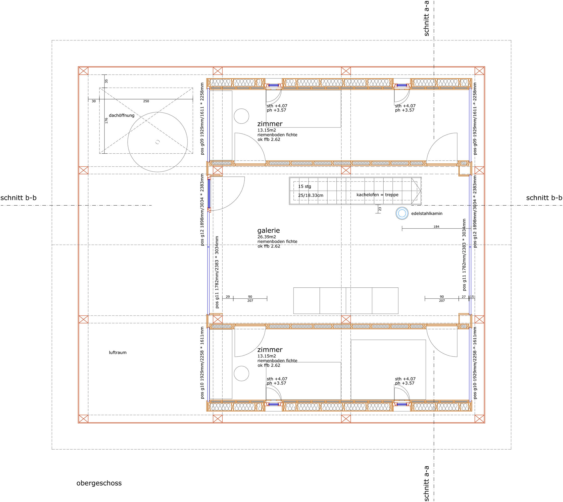
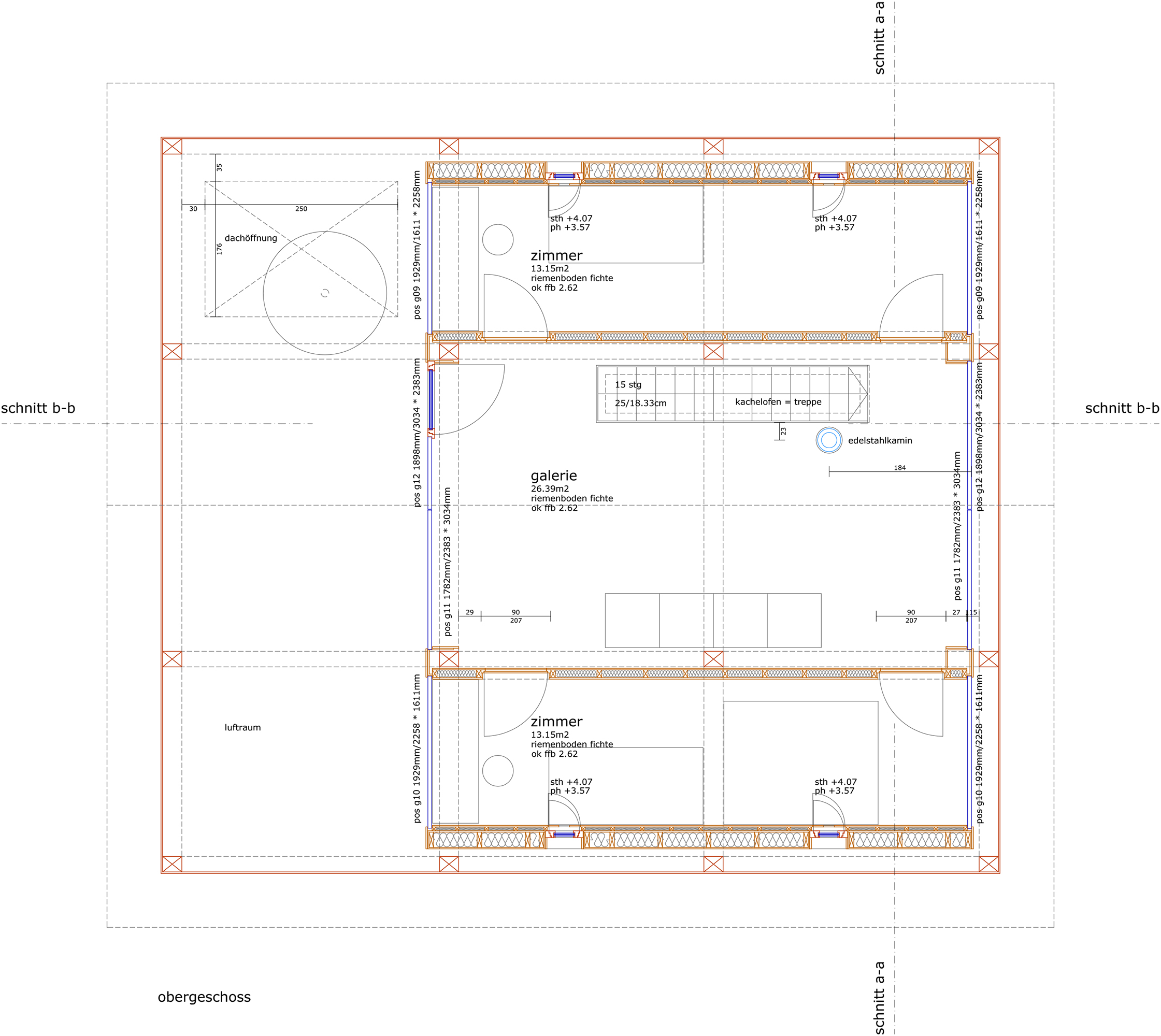
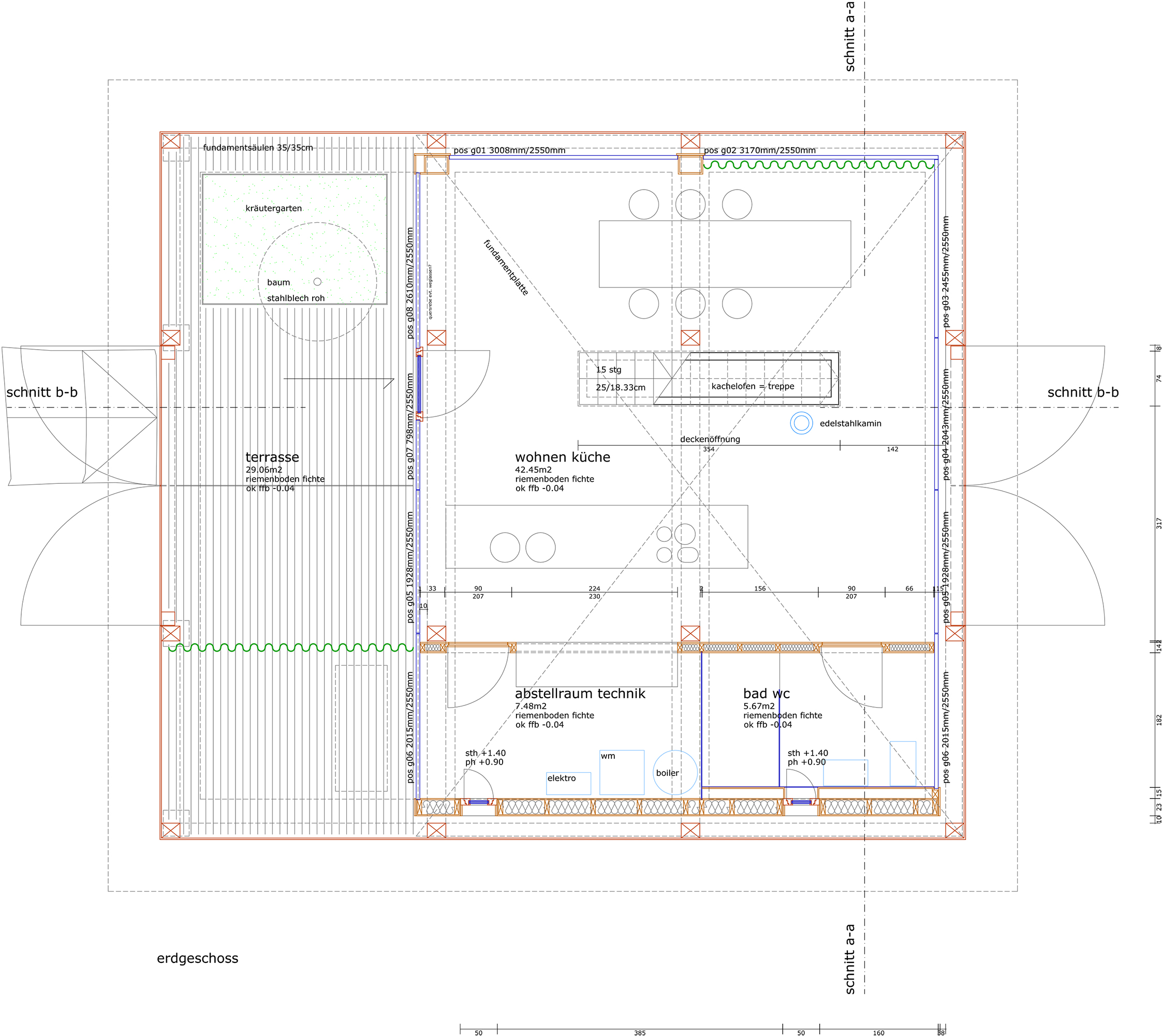
The existing construction of fir wood was set onto a new concrete foundation plate. Only a few of the supporting elements from the old building had to be replaced. Two walls, a suspended ceiling and roof parts of cross-laminated timber were added. The new elements were incorporated into the existing structure. Fixed triple glazing with few built-in openings prevents heat loss; the house is heated with a tiled stove that also serves as a stairway to the upper storey.
For Pfurtscheller, this project was not about turning the old barn into a museum. Rather, the refurbishment protects the structure from dilapidation, saves resources and creates a structural connection between traditional building methods and contemporary living needs.
The existing construction of fir wood was set onto a new concrete foundation plate. Only a few of the supporting elements from the old building had to be replaced. Two walls, a suspended ceiling and roof parts of cross-laminated timber were added. The new elements were incorporated into the existing structure. Fixed triple glazing with few built-in openings prevents heat loss; the house is heated with a tiled stove that also serves as a stairway to the upper storey.
For Pfurtscheller, this project was not about turning the old barn into a museum. Rather, the refurbishment protects the structure from dilapidation, saves resources and creates a structural connection between traditional building methods and contemporary living needs.











