// Check if the article Layout ?>
Carmen Würth Forum by David Chipperfield Architects
Photo: © Simon Menges
The new Carmen Würth Forum was inaugurated a few days ago following completion of the first building in the project. The billionaire Reinhold Würth, whose company retails screws and fasteners, held a respective competition in 2006 that David Chipperfield Architects won. The 60-million-euro culture and conference centre is located close to the Würth Group's headquarters in Künzelsau, Baden-Württemberg. It was in this picturesquely located small town that Reinhold Würth's father Adolf once established a screw wholesale business, complete with a red brand logo that still stands for what has become an enterprise operating all over the world.
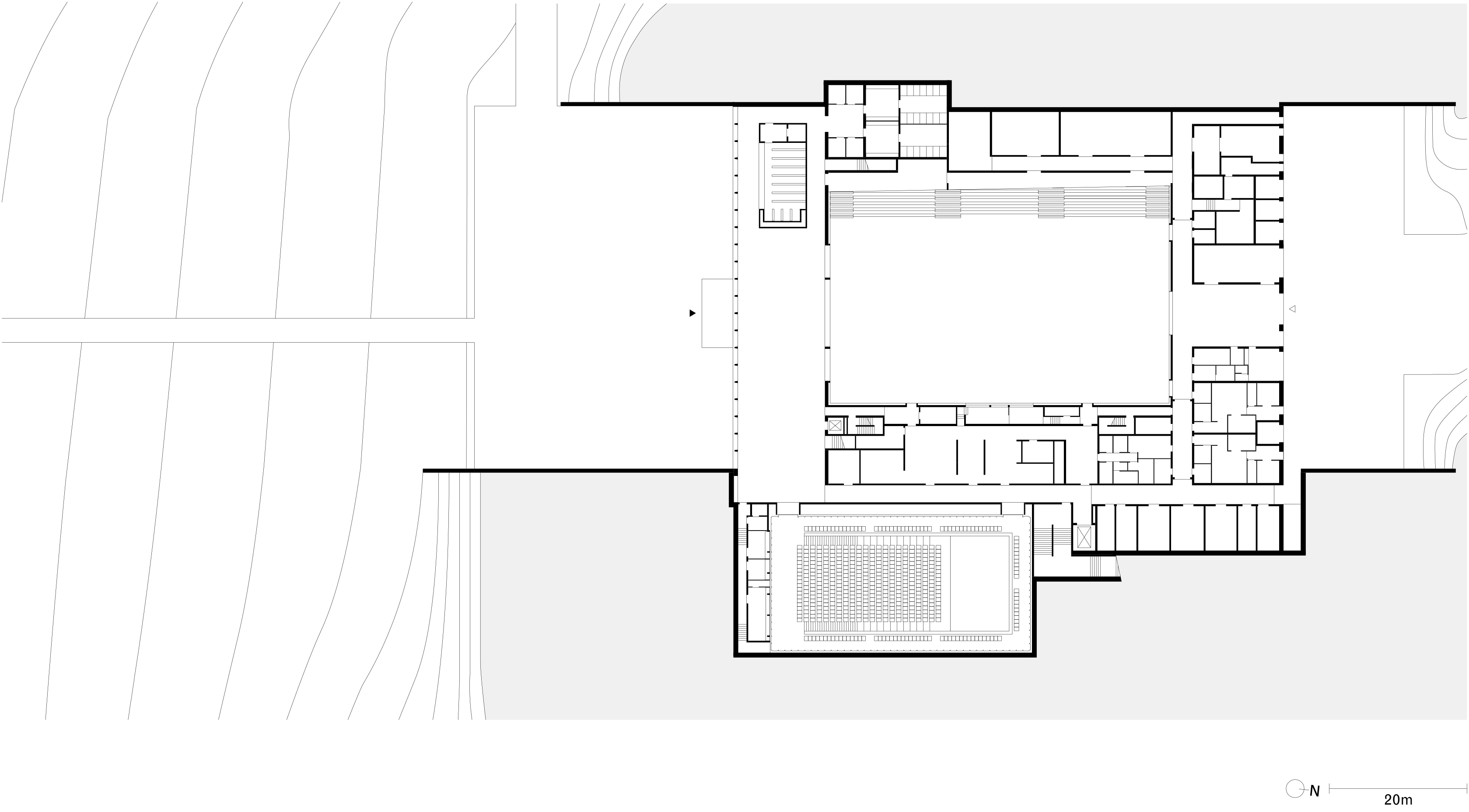
Coming with a gross floor area measuring 11,000 square metres, the new building south of Künzelsau comprises an events hall with space for 2,500 people and a 600-seat chamber music hall. The low structure rests on a small rise in the ground embedded in a landscape of open meadows. Incisions in the hillside form two enclosed external spaces flanked by retaining walls in-site concrete, which was poured in differing layers for an effect that refers to sedimentary strata of the natural landscape. The open area in front of the main entrance provides space for up to 10,000 people and is being used for various outdoor events with immediate effect.
The large events hall, half of it sunk into the earth, has a column-free trussed steel structure and is accessed from a spacious foyer provided with plenty of natural light. The chamber music hall faced in French walnut foyer is also reached from the foyer. Both the floor of the foyer and the chamber hall seating are in the Würth corporate colour of red.
The Carmen Würth Forum is not the first building serving a cultural purpose to be erected by the company. Organised in the form of family trusts, the Würth Group also maintains a not-for-profit foundation; accordingly, the assembly and fastening materials company promotes art and culture on a large scale. For example the billionaire's art collection is on show in the private art museum at the main headquarters in Künzelsau. The unusual business model also finds expression in various other Group administration buildings, such as the recently completed Würth House in Rorschach designed by Gigon Guyer Architects. The Würth International building in Chur, Switzerland, built in 2002 according to a design by Jüngling Hagmann Architects, is another case in hand, featuring space for art exhibitions alongside offices in public parts of the building. Large-scale sculptures from Reinhold Würth's collection now also embellish the grounds at the Carmen Würth Forum, which in the second project phase will be gaining a conference centre and a further museum for the Würth art collection.
The large events hall, half of it sunk into the earth, has a column-free trussed steel structure and is accessed from a spacious foyer provided with plenty of natural light. The chamber music hall faced in French walnut foyer is also reached from the foyer. Both the floor of the foyer and the chamber hall seating are in the Würth corporate colour of red.
The Carmen Würth Forum is not the first building serving a cultural purpose to be erected by the company. Organised in the form of family trusts, the Würth Group also maintains a not-for-profit foundation; accordingly, the assembly and fastening materials company promotes art and culture on a large scale. For example the billionaire's art collection is on show in the private art museum at the main headquarters in Künzelsau. The unusual business model also finds expression in various other Group administration buildings, such as the recently completed Würth House in Rorschach designed by Gigon Guyer Architects. The Würth International building in Chur, Switzerland, built in 2002 according to a design by Jüngling Hagmann Architects, is another case in hand, featuring space for art exhibitions alongside offices in public parts of the building. Large-scale sculptures from Reinhold Würth's collection now also embellish the grounds at the Carmen Würth Forum, which in the second project phase will be gaining a conference centre and a further museum for the Würth art collection.













