// Check if the article Layout ?>
Flexible outlook: Modular design in Brazil
Photo: Leonardo Finotti
A truck and a crane – that's all that's needed to position the flexible Minimod (Minimal Module) designed by MAPA Architects at any chosen site. Entirely pre-assembled, the module offers an intelligent, sustainable and progressive alternative to conventional dwellings.
Architect: MAPA architects, Brazil / Uruguay
Location: Maquiné - Rio Grande do Sul, Brazil
Architect: MAPA architects, Brazil / Uruguay
Location: Maquiné - Rio Grande do Sul, Brazil
The simple and adaptable prefabricated rectangle is delivered by truck and manoeuvred into the ideal position by crane, thus ensuring fast, uncomplicated and environmentally compatible erection. The steel frame structure enables varied and individual configurations, providing plenty of creative scope for personal ideas. Several modules can be added together to enable various uses, ranging from a cosy weekend refuge to a unique venue for events or hotel rooms of great originality.
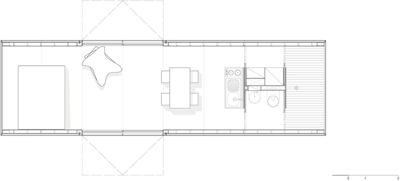
The first prototype consists of four ready-made living units measuring 2.4 by 2.4 metres each for sleeping, lounging, dining and bathing in harmony with nature.
The compact prototype forms a gracious and elegant structure in the landscape. The flexible, 27-square metre base is slightly elevated on two steel girders to protect the module from rising damp and to accommodate any unevenness of the ground. Back-ventilated elements in plywood clad the steel framework both on the outside and inside. Totally closed-off areas in the darkly-coloured façade are interposed with occasional large openings and perforated folding elements, thus ensuring both necessary privacy and a seemingly seamless transition to the natural surroundings.
Inside the module the untreated wood creates a cosy feel and accentuates the contrast of indoors and outdoors. At night illumination is provided in the form of integrated LED lights. Standard fixtures include kitchen units, a toilet and a fitted closet and can be complemented with such elements as a solar panel, air conditioning, a rainwater treatment system or a green roof as desired.
MAPA Architects is a binational collective that works on architectural projects in Brazil and Uruguay, exploring the limits of non-conventional production formats in the process. The Minimod prototype brings architecture and industry together in an accomplished design informed by practicality and minimalism.
Project data Completion: 2013
Usable space: 27 m²
Project team: Luciano Andrades, Matías Carballal, Rochelle Castro, Andrés Gobba, Mauricio López, Silvio Machado, Camilla Pereira, Jaqueline Lessa, Alexis Arbelo, Pamela Davyt, Emiliano Etchegaray, Camila Thiesen, Pablo Courreges, Diego Morera, Isabella Madureira, Aldo Lanzi, Emiliano Lago
MAPA Architects is a binational collective that works on architectural projects in Brazil and Uruguay, exploring the limits of non-conventional production formats in the process. The Minimod prototype brings architecture and industry together in an accomplished design informed by practicality and minimalism.
Project data Completion: 2013
Usable space: 27 m²
Project team: Luciano Andrades, Matías Carballal, Rochelle Castro, Andrés Gobba, Mauricio López, Silvio Machado, Camilla Pereira, Jaqueline Lessa, Alexis Arbelo, Pamela Davyt, Emiliano Etchegaray, Camila Thiesen, Pablo Courreges, Diego Morera, Isabella Madureira, Aldo Lanzi, Emiliano Lago









