Cultural village restoration
Museum in China by Team_Bldg
The three-storey museum building is a striking foreign body in the homogeneous village structure. However, this was already the case before its conversion. © Jonathan Leijonhufvud
Located at an altitude of 400 m in the sparsely populated, hilly countryside around 350 km south-west of Shanghai, Songzhuang is a small village. Until a few years ago, even the people from the nearby town of Songyang were unaware of the 600-year-old village's existence. Fortunately, one might say, because this allowed Songzhuang to retain much of its original character.


According to its designers, the Z Museum in Songzhuang is one of the first museums in rural China. © Jonathan Leijonhufvud
A foreign body in the village landscape
In 2024, architectural firm Team_Bldg was commissioned to convert one of the village's few newer residential buildings into the “Z Museum”. According to the designers, it is the first museum in rural China dedicated entirely to modern web art. Although the house was only built in the 1990s, it had been vacant for years and had already undergone several failed renovation attempts. It was a foreign body in the homogeneous village landscape.


The museum entrance is located in the neighbouring single-storey building made of rammed earth. © Jonathan Leijonhufvud
Textile shell made of aluminium tubes
The architects decided to emphasise this feature. They achieved this by dividing the existing building into four parts and creating a rectangular courtyard in the middle. The multi-part roof landscape makes this division visible from the outside. The new shell is made of 20 x 40 mm thick rectangular aluminium tubes and is designed to resemble a weaving loom with its alternating warp and weft threads. The “textile” formed by vertical profiles at irregular intervals becomes denser towards the top and fringes towards the bottom. The outer side of the tubes is painted white and the remaining sides are painted red. Consequently, the building envelope appears very different depending on whether it is viewed from the outside or from the entirely red roof terrace.


The aluminium shell extends onto the roof terrace. The roof, which provides shade, is divided into four sections of different heights, mirroring the building. © Jonathan Leijonhufvud
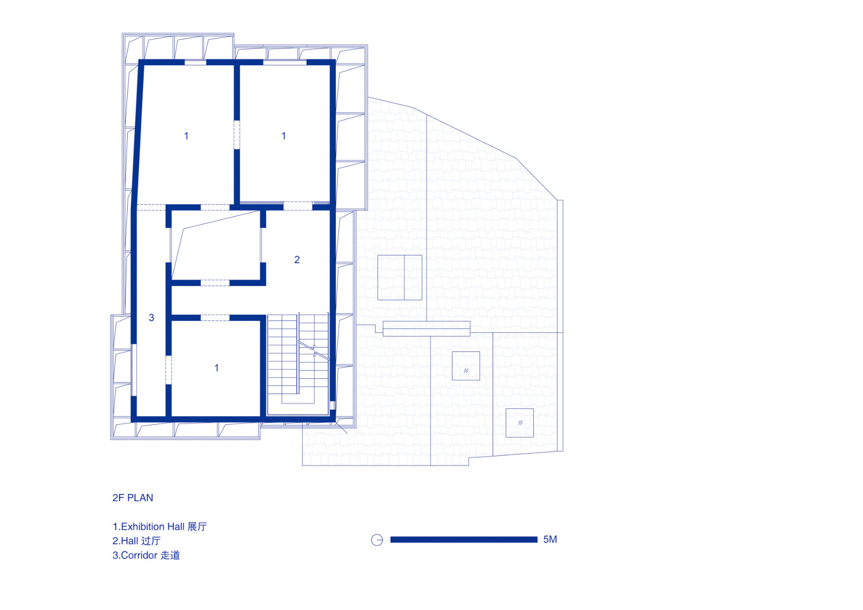
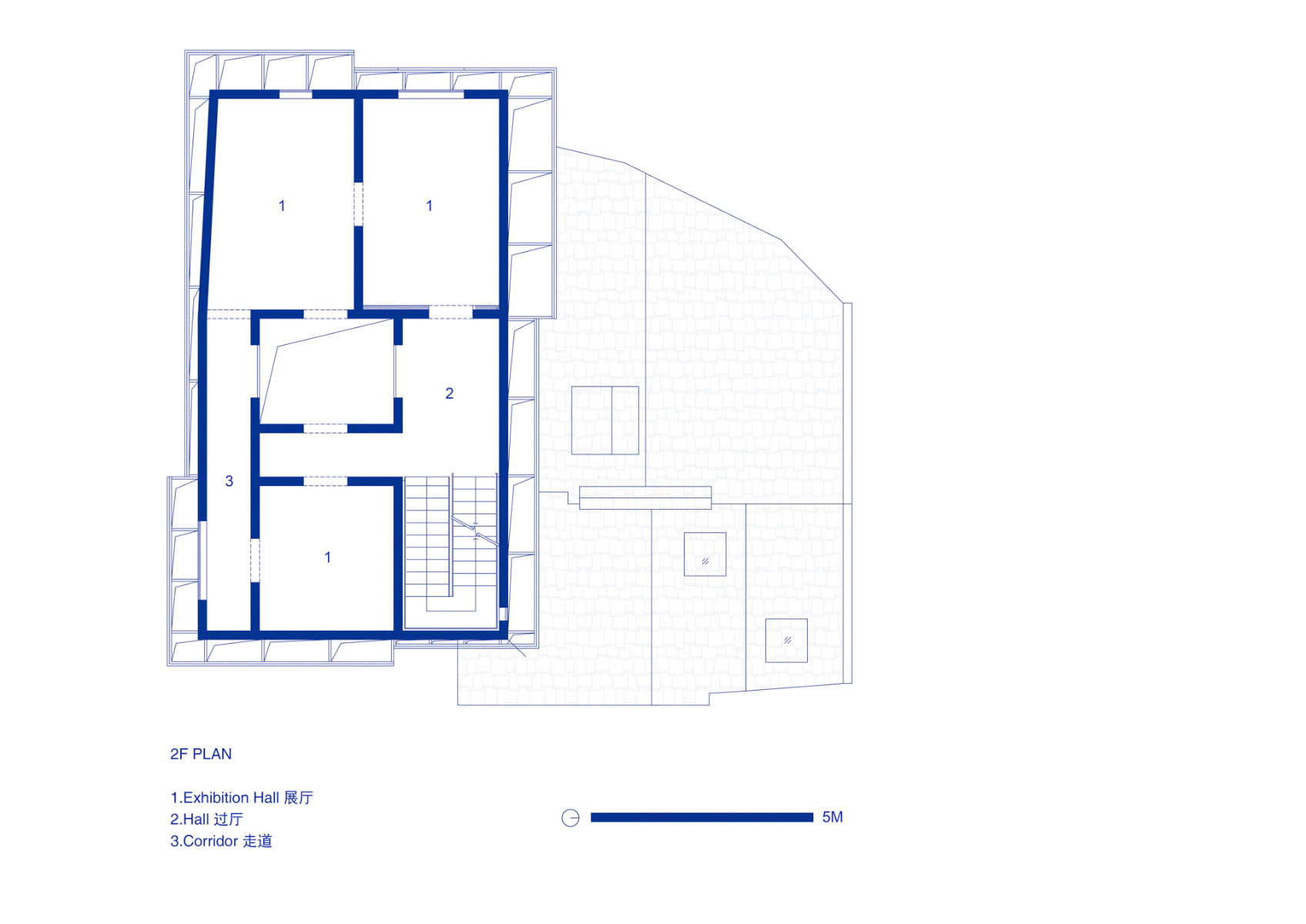
Exhibition route with framed views
Inside the building, the architects kept their interventions to a minimum. Instead, they emphasised the connections between the rooms and the relationship between the interior and exterior. The exhibition tour begins in the single-storey, significantly older, low-rise building next to the main building. Here, visitors are welcomed by a dimly lit room with rammed earth walls, which serves as a prologue to the exhibition on the two upper floors. There, the few openings in the aluminium curtain wall offer glimpses of the village panorama. In stark contrast, the roof terrace on the third floor is staggered over several levels. Here, visitors can sit sheltered from view yet still outdoors. Through the aluminium bars, they can see the village centre and the surrounding hills.
Architecture: TEAM_BLDG
Client: Mountain Creations
Location: Songzhuang, Songyang, Zhejiang (CN)
Structural engineering: GongHe Architecture Design Group



























