// Check if the article Layout ?>
Rusty Tranquillity: Office and Operations Building in Schweinfurt
Photo: Stefan Meyer
The robust shell of four-mm-thick Corten steel sheets fits symbolically into the cycle of dealing in raw materials. The scrap metal taken in here is thoroughly sorted, processed and then sent on to further processing at steelworks or foundries. Figuratively speaking, the confident new building first in with its surrounding sheet-metal hangars and mounds of metal. Even the round perforations with four small teeth continue the motif of the punch waste supplied by the automotive industry.
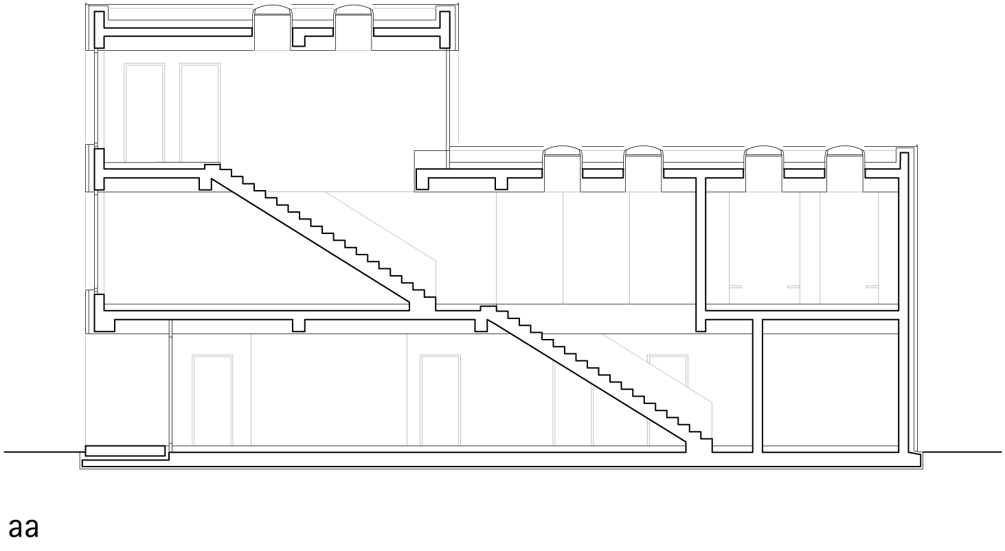
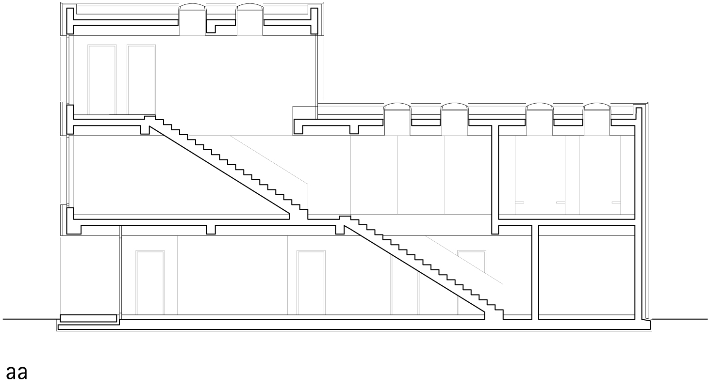
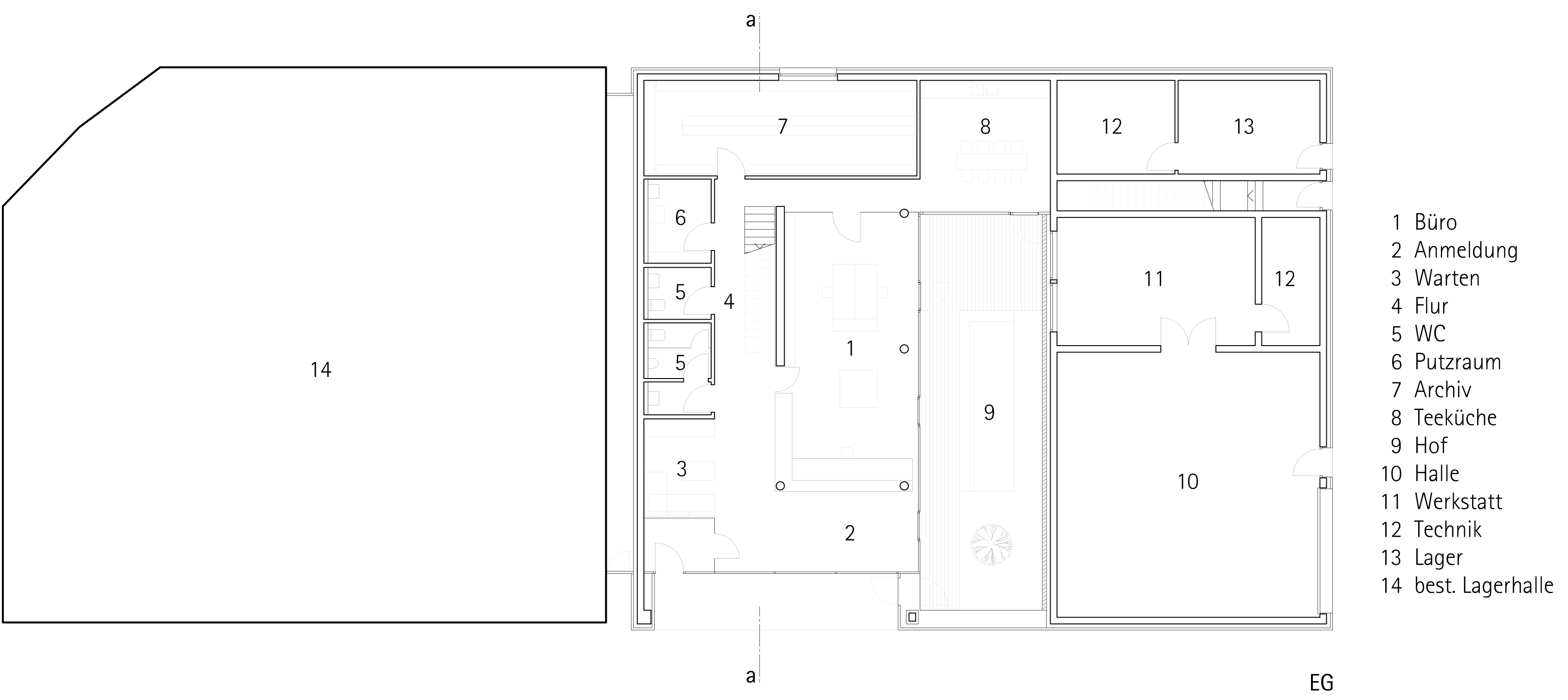
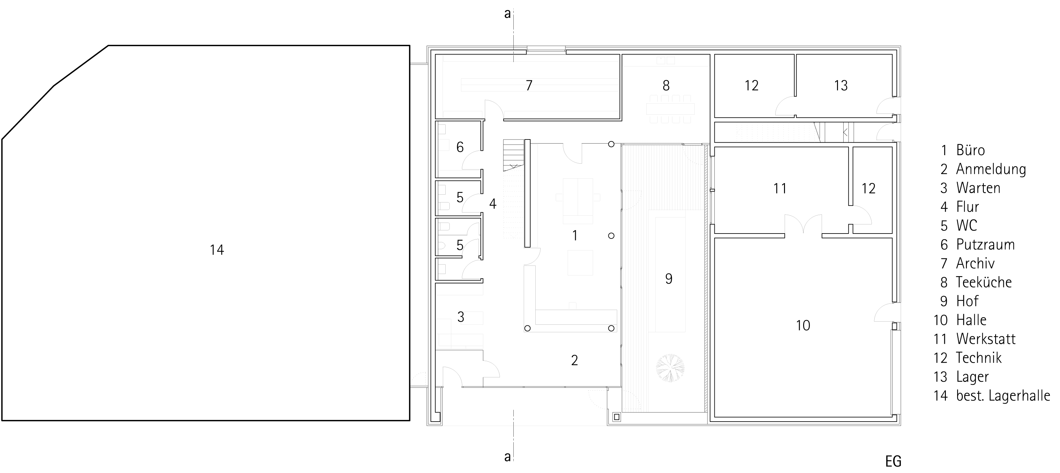
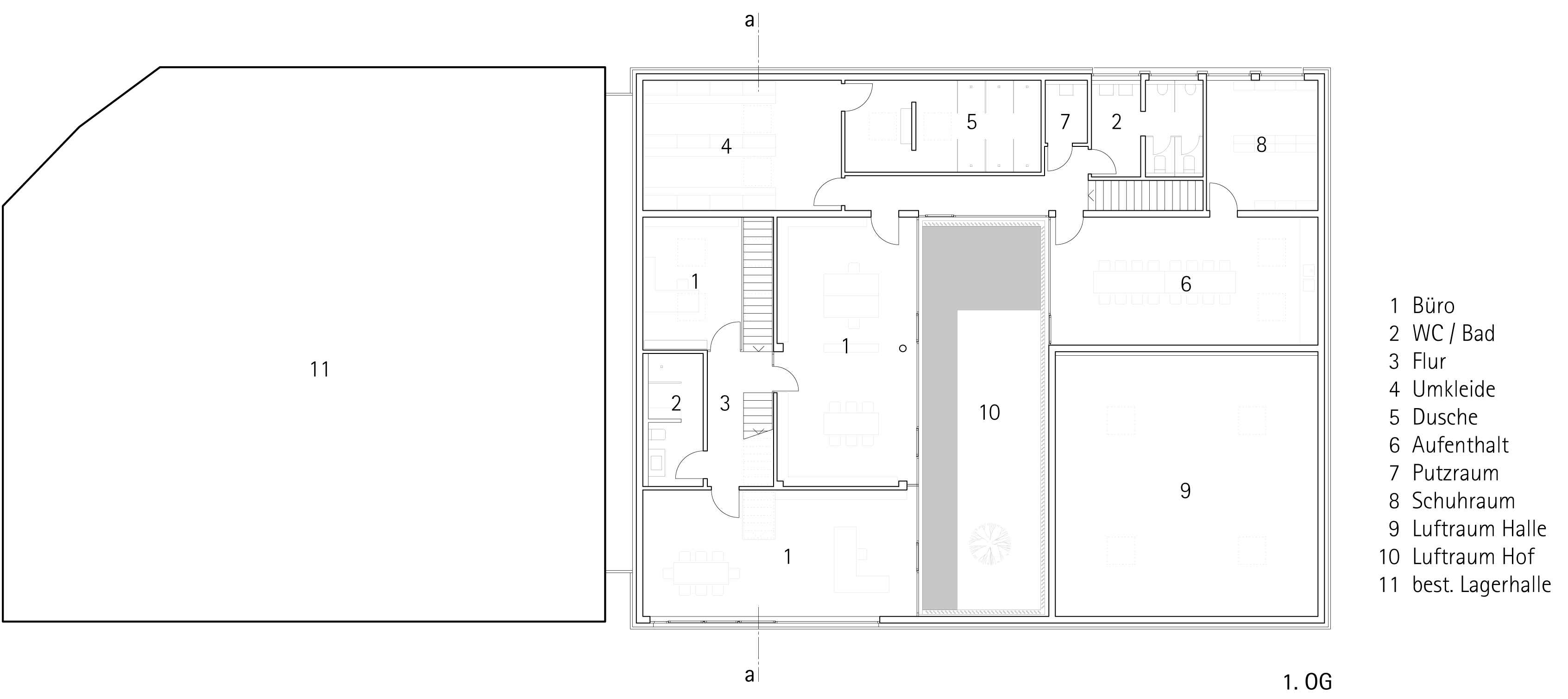
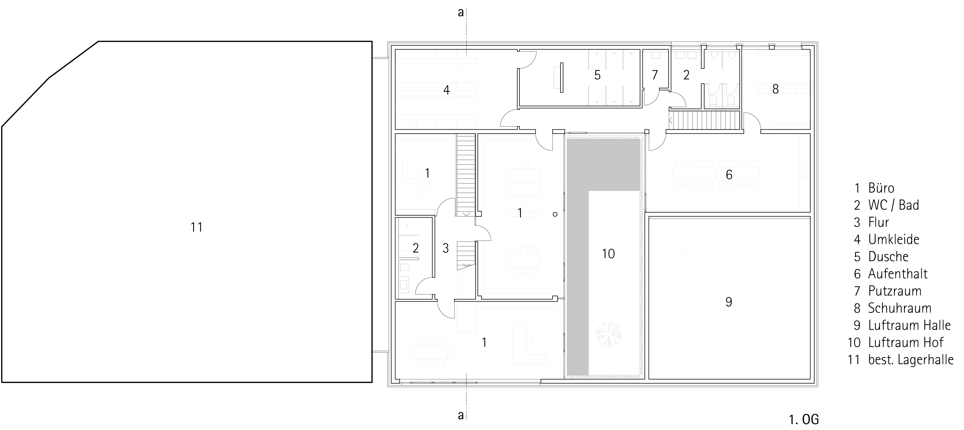
Behind the rusty façade, which features the highest possible degree of soundproofing, the open relationship and close connection between the family of four and long-serving employees of the company become architecturally visible through the double-glazed inner side of the building. In the 1960s, the old workshop was freezing cold in the winter and boiling hot in the summer; the noise was tolerable only with hearing protection. Nowadays, all the offices and common areas are located around the core of the compact office and operations building, a patio which resembles a Zen garden. Gravel, larchwood slats and the planted hotbed with bench invite visitors to take a break and relax. Bright, amicable materials combined with ceiling-high windows guarantee unobstructed views from the working zones to the common areas. Father Heinlein can even monitor the goings-on in the processing area through a large picture window. The glazed interior unites personal and communicative work both in the yard and in the building itself. The ground floor is home to the reception, the workshop with its adjacent, two-storey hall and a kitchenette. The locker rooms, sanitary facilities and a common room for the dredger operators and truck drivers are located on the upper level. The building is crowned with a meeting room that has an accessible roof offering a view over Schweinfurt’s industrial park and the Main harbour basin from three sides.
It is clear why this new office and operations building in Schweinfurt has been awarded the BDA-Preis Bayern: thanks to close cooperation between the clients and architects, the distinction reflects both the prevailing morale at work and its environment. And should the family decide to introduce changes in a few years, they say they can at least recycle the building shell themselves.













