Building for children in Canadian style
School and Kindergarten in the Czech Republic by SOA Architekti
The Czech Republic's first Maple Bear School is housed in a converted industrial building in Brno. The interior design is characterised by the Canadian national colours. © Studio Flusser
Maple Bear Schools is a Canadian network founded in 2004 by Rodney Briggs. Initially a diplomat, he worked for a Canadian government agency responsible for recruiting foreign students to study in Canada. However, during his travels, Briggs also noticed the high regard in which the Canadian school system was held abroad. This inspired the creation of a global network of schools and kindergartens where children can learn both of Canada's official languages, French and English.
Learning where parents work
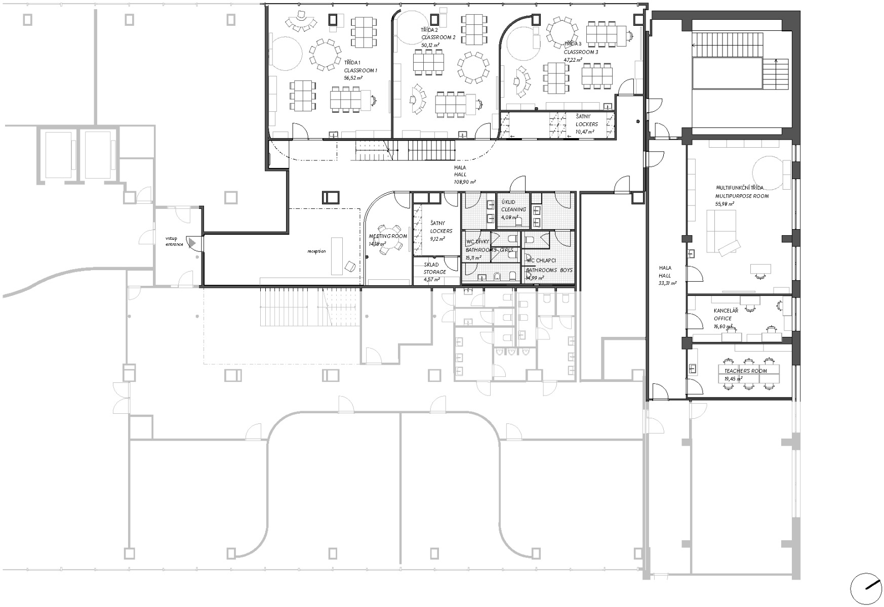
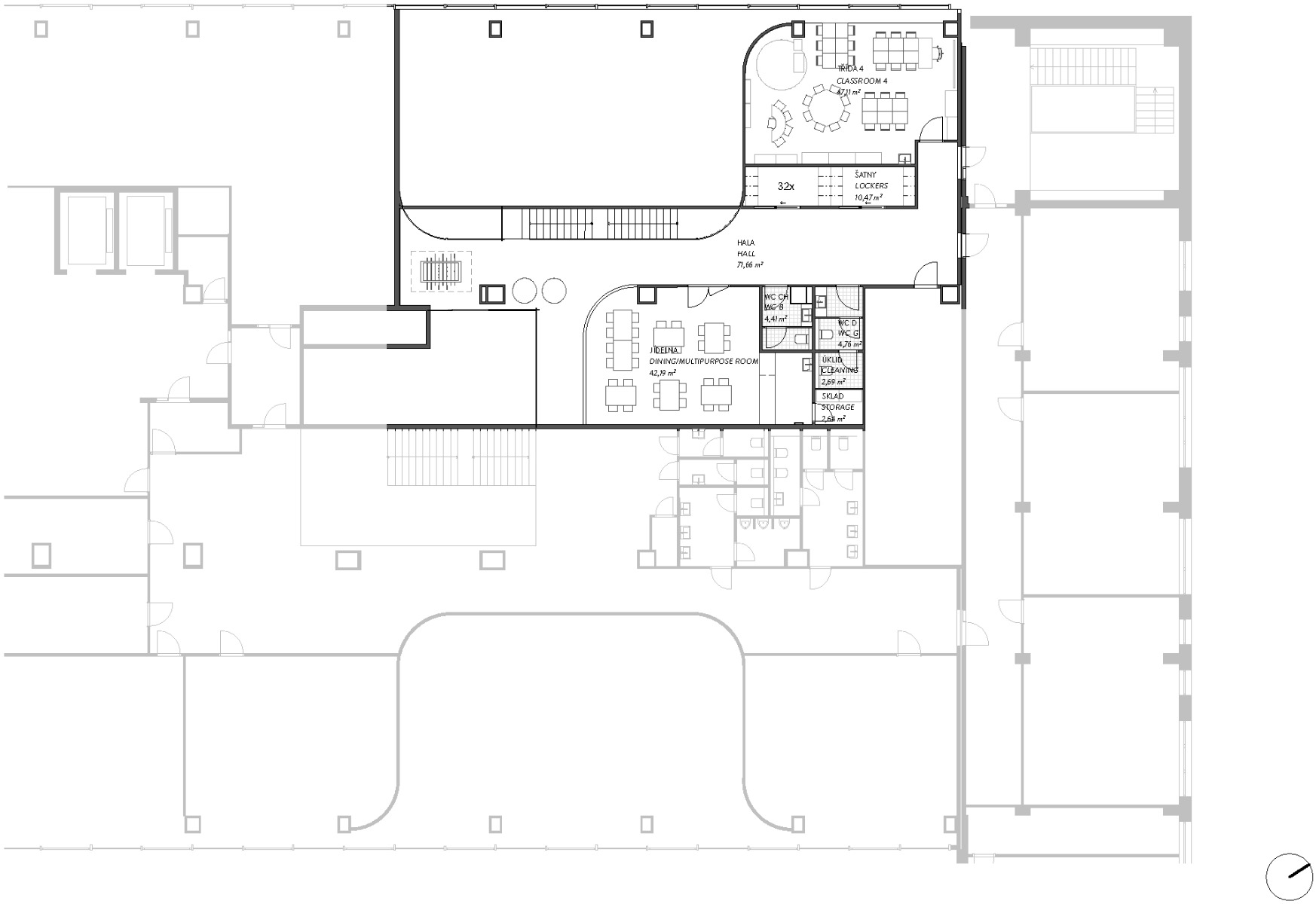
Maple Bears currently operates over 400 schools in nearly 40 countries worldwide, including Eastern Europe and the Iberian Peninsula. The first two educational buildings in the Czech Republic were designed by SOA Architekti from Prague. In north-east Brno, they converted an industrial building into a primary school. Maple Bear Elementary School is essentially an outpost of a larger development project that will transform the entire industrial complex into a mixed-use residential and business district.


The lobby, entrance area, and a multipurpose library with a play and reading corner are located in the entrance hall. © Studio Flusser


The upper-floor foyer ceiling is green, while the railings and fixtures are red, Canada's national colour. © Studio Flusser
Colour composition in red, green and yellow
The school's entrance hall, which extends over two floors, is characterised by large green and red steel beams. It comprises a lobby, an entrance area, and a multipurpose library. There is also a play and reading corner. Textured glass partition walls illuminate a meeting room on the ground floor and a canteen on the first floor, which has no direct connection to the facade. The upper-floor foyer ceiling is green, while the railings and fixtures are red, Canada's national colour. Light wood shelves and doors complement the yellow reception desk.


View of one of the three large group rooms, © Studio Flusser
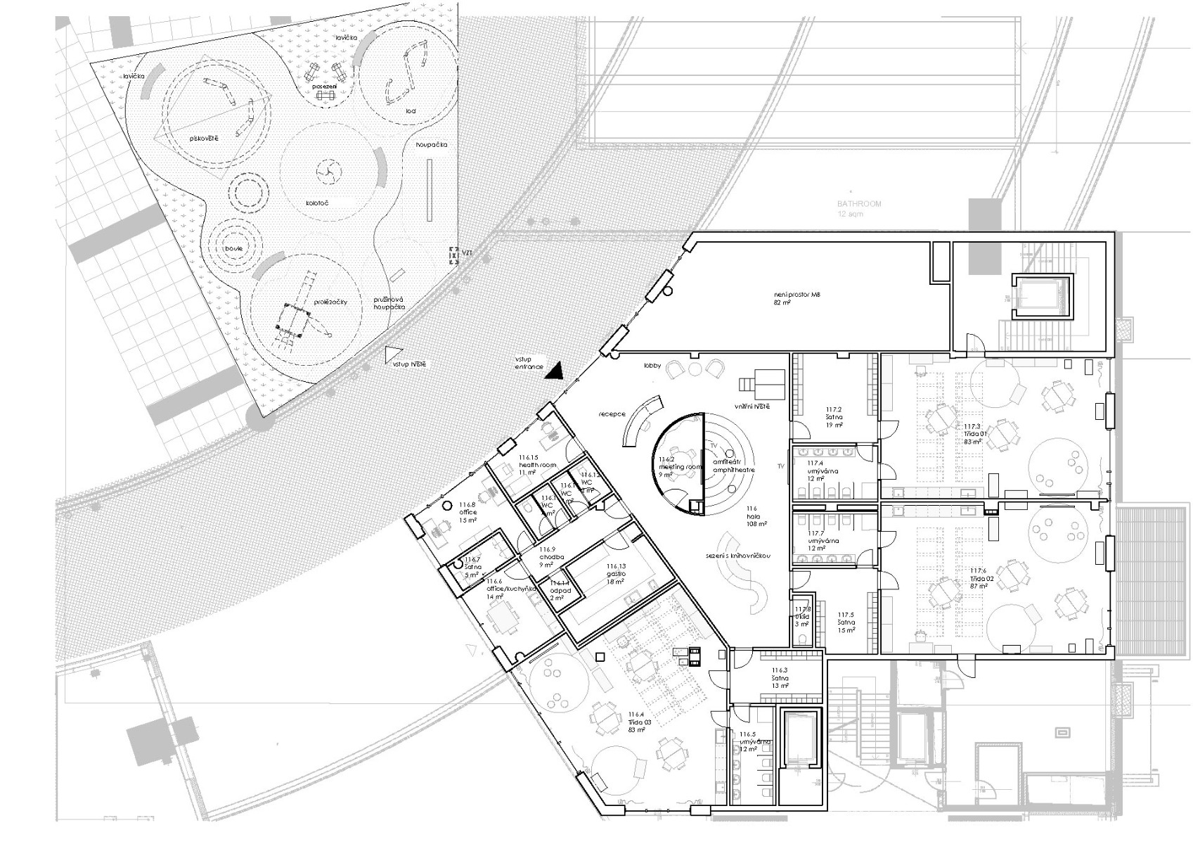
The hall as a central meeting place
Located in Olomouc in the east of the Czech Republic, the kindergarten is part of a larger office complex for start-up companies. Three 90 m² group rooms surround a central hall containing a lobby, an indoor playground, a small amphitheatre, and a seating area with a library and toys. This layout enabled the architects to avoid long corridors. A large yellow cylinder in the middle of the hall serves as a meeting room. The individually designed graphics on the walls of both educational buildings serve two functions: the nature motifs establish a connection to the “mother country” of Canada, while the local scenes strengthen the local connection. On the other hand, they also show sights from the surrounding area, thus strengthening the connection to the local touch.
Architecture: SOA architekti
Client: Maple Bear Czechia
Locations: ZET.Office Nová Zbrojovka, Lazaretní 925/9, 615 00 Brno (CZ); tř. Kosmonautů 1338/1c, Hodolany, 779 00 Olomouc (CZ)


















