Bauen für Kinder auf kanadisch
Schule und Kindergarten in Tschechien von SOA Architekti
Tschechiens erste Maple Bear School ist in einem umfunktionierten Industriebau in Brünn eingerichtet. Die kanadischen Nationalfarben charakterisieren die Farbgebung der Innenraumgestaltung. © Studio Flusser
Das kanadische Netzwerk der Maple Bear Schools wurde 2004 von Rodney Briggs gegründet. Der Diplomat arbeitete zunächst für eine Agentur der kanadischen Nationalregierung, die ausländische Studierende für ein Studium im Land anwerben sollte. Bei seinen vielen Reisen nahm Briggs aber auch die Wertschätzung wahr, die das kanadische Schulsystem im Ausland genoss. Daraus entstand die Idee für ein weltumspannendes Netzwerk an Schulen und Kindergärten, in dem Kinder die beiden kanadischen Nationalsprachen Französisch und Englisch lernen.
Lernen, wo Eltern arbeiten
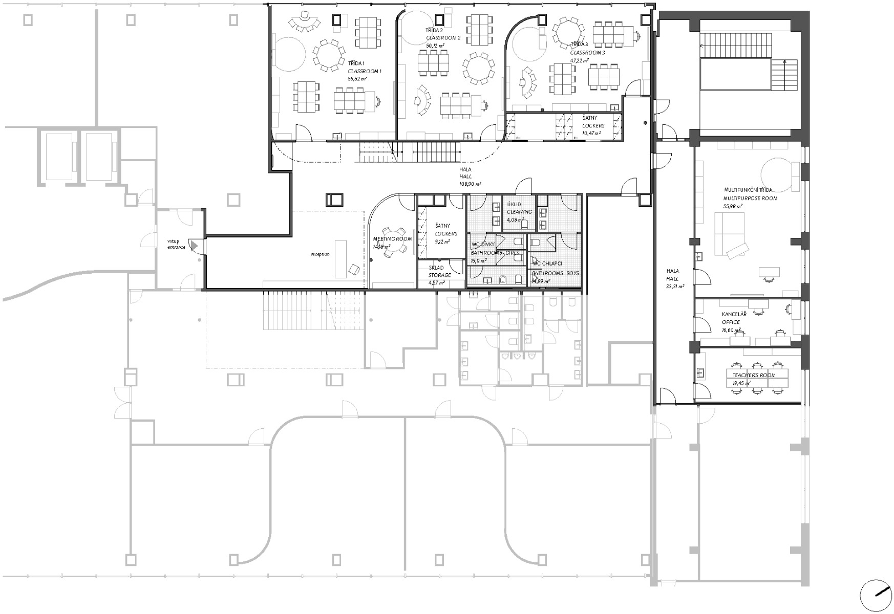
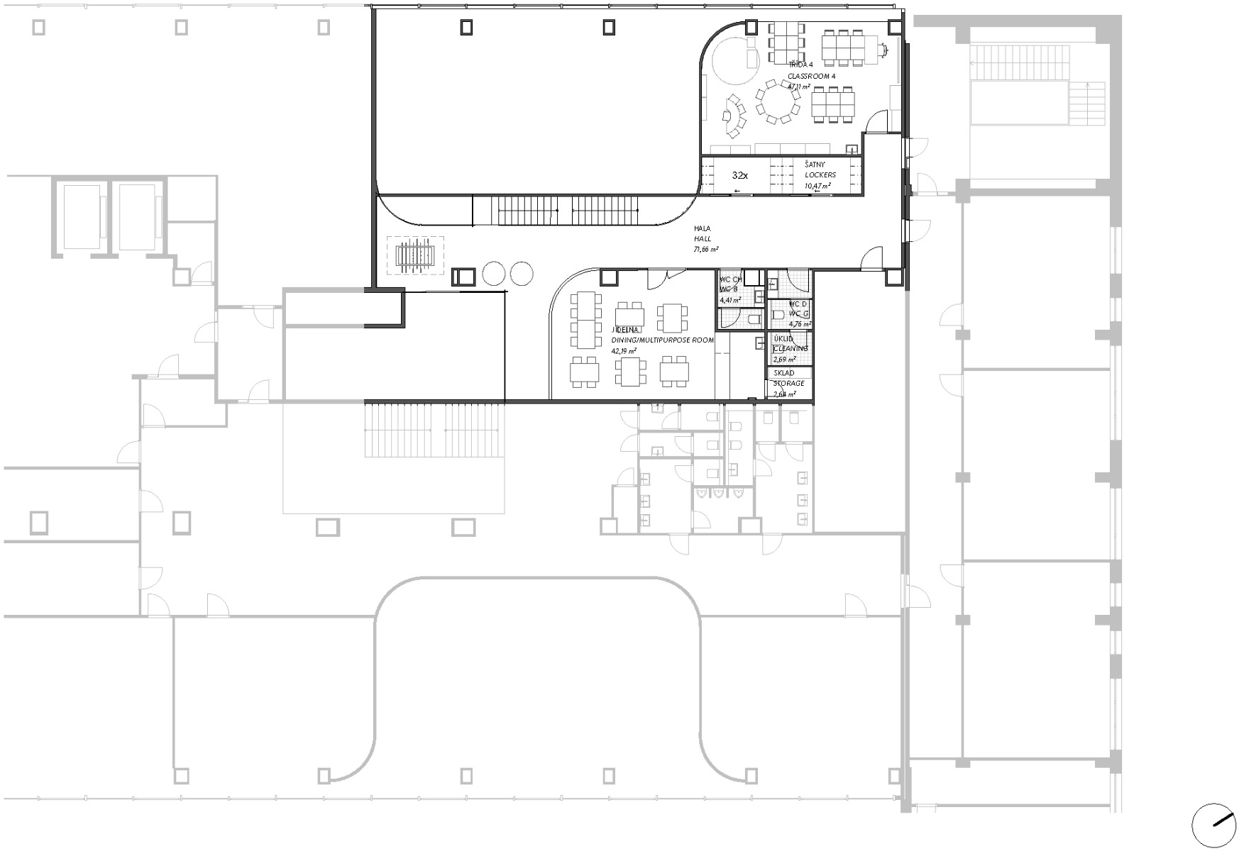
Heute betreibt Maple Bears mehr als 400 Schulen in fast 40 Ländern der Welt und ist auch in Osteuropa und auf der iberischen Halbinsel präsent. Den Planungsauftrag für die ersten beiden Bildungsbauten in Tschechien erhielten SOA Architekti aus Prag. Im Nordosten von Brünn richteten sie eine Grundschule in einem zum Bürogebäude umfunktionierten Industriebau ein. Die Maple Bear Elementary School ist quasi der Vorposten eines größeren Entwicklungsprojekts, im Zuge dessen sich der gesamte Industriekomplex zum gemischt genutzten Wohn- und Arbeitsquartier wandeln soll.


Lobby, Eingangsbereich und eine Mehrzweckbibliothek mit Spiel- und Leseecke finden sich in der Eingangshalle. © Studio Flusser


Die Foyerdecke im Obergeschoss ist in Grün, Geländer und Einbauten in der kanadischen Nationalfarbe Rot gehalten. © Studio Flusser
Farbkomposition in Rot, Grün und Gelb
Die Eingangshalle der Schule erstreckt sich über zwei Etagen und wird von großen Stahlträgern in Grün und Rot geprägt. Sie umfasst eine Lobby, einen Eingangsbereich und eine Mehrzweckbibliothek. Auch eine Spiel- und Leseecke wurde hier eingerichtet. Trennwände aus Strukturglas belichten einen Besprechungsraum im Erdgeschoss sowie die Mensa im ersten Obergeschoss, die keinen direkten Fassadenanschluss haben. Die Foyerdecke im Obergeschoss ist in Grün, Geländer und Einbauten in der kanadischen Nationalfarbe Rot gehalten. Hinzu kommen Regale und Türen aus hellem Holz sowie ein gelber Empfangstresen.


Blick in einen der drei großen Gruppenräume, © Studio Flusser
Die Halle als zentraler Treffpunkt
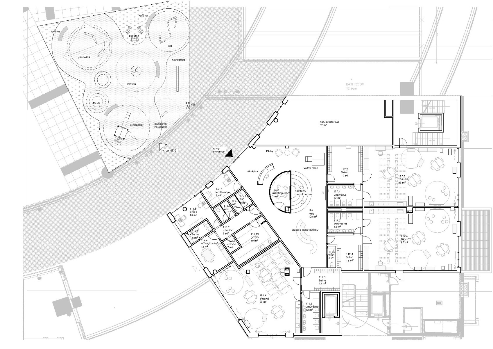
Der Kindergarten in Olomouc im Osten Tschechiens ist Teil eines größeren Bürokomplexes für Startup-Unternehmen. Drei je 90 m² große Gruppenräume umgeben eine zentrale Halle mit Lobby, Indoor-Spielplatz, einem kleinen Amphitheater und einer Sitzecke mit Bibliothek und Spielzeug. Durch diese Raumanordnung konnten die Architekten auf lange Flure verzichten. Ein großer, gelber Zylinder mitten in der Halle dient als Besprechungsraum. Die individuell gestalteten Grafiken an den Wänden beider Bildungsbauten haben zweierlei Funktionen: Mit Naturmotiven stellen sie die Verbindung zum „Mutterland“ Kanada her. Andererseits zeigen sie auch Sehenswürdigkeiten aus der näheren Umgebung und stärken so den Ortsbezug.
Architektur: SOA architekti
Bauherr: Maple Bear Czechia
Standorte: ZET.Office Nová Zbrojovka, Lazaretní 925/9, 615 00 Brno (CZ); tř. Kosmonautů 1338/1c, Hodolany, 779 00 Olomouc (CZ)


















