// Check if the article Layout ?>
Work Out and Relax: Inteltion Office by Onion in Bangkok
Photo: Wworkspace
The new office spaces for the Thai IT consulting firm Inteltion measure just 170 m². The company’s 60 employees usually work in their clients’ offices. They can be found at Inteltion’s main office primarily in the periods between jobs. This means there was no need to develop an individual office place for each person. It was far more important to maintain the flexibility that has great symbolic value for the company.
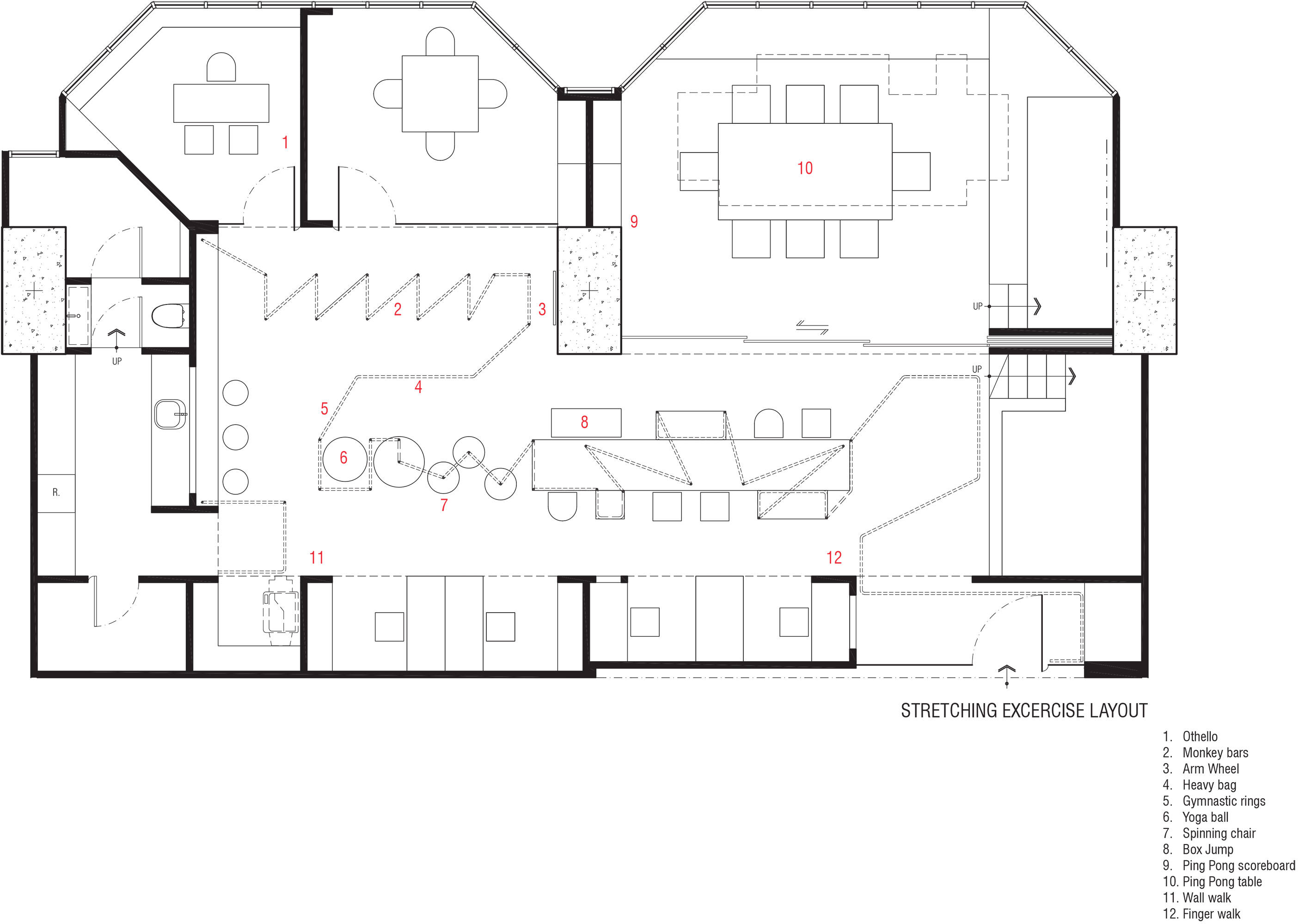
The new design concept comprises a main room where clients can be received or internal discussions can take place. The employees, most of whom are young, spend their working days in front of computer screens. This is why the designers from Onion suggested dividing the new office into various workout and relaxation zones.
A multifunctional iron pipe dominates the main office space: it serves as a handrail in the foyer, a supporting structure for the table and seats in the middle of the room and as a barre for stretching exercises in the rear area. Spherical cupboard-door handles, set a bit higher than usual, can also be used for stretching. A raised platform above the filing cabinets invites employees to relax. In all, this is a wonderful interpretation of a contemporary office landscape.
The new design concept comprises a main room where clients can be received or internal discussions can take place. The employees, most of whom are young, spend their working days in front of computer screens. This is why the designers from Onion suggested dividing the new office into various workout and relaxation zones.
A multifunctional iron pipe dominates the main office space: it serves as a handrail in the foyer, a supporting structure for the table and seats in the middle of the room and as a barre for stretching exercises in the rear area. Spherical cupboard-door handles, set a bit higher than usual, can also be used for stretching. A raised platform above the filing cabinets invites employees to relax. In all, this is a wonderful interpretation of a contemporary office landscape.












