23.09.2015 Insa Thiel

An Exciting Reinterpretation: Theatre in Gdánsk

Photo: Matteo Piazza

It may well have been travelling English actors in the 17th century who were responsible for building this theatre in the port city of Gdánsk. It was they who brought the famous plays of great writers such as Shakespeare to the city, first to a multifunctional building known as the Fencing School; this was the town’s first public theatre. Later, a wooden open-air theatre was built in typical Renaissance style.  The new construction now bridges the historic location, old theatre traditions and contemporary requirements. The axis measurement of 2.80 metres, which corresponds to archaeological data, has been resuscitated and can be detected in the wall pilasters of the outer shell. The building fits into the surrounding urban landscape, yet leaves a mysterious impression. Its wing-like, 10.5 x 21-metre aperture reveals the building’s identity only indirectly by opening up to the outside world like the lid to a case. Standing adjacent to the largely rebuilt old town on one side and a multilane road on the other, the new theatre has reoccupied its historic location; yet it provides a contemporary solution to the requirements of a modern multifunctional building. The combination of Elizabethan tradition and progressive techniques has led to an adaptable, flexible performance space that allows a variety of spatial configurations. As the covering to the Globe-style, studio or arena stage, the retractable roof construction is the perfect complement to the structure. In the form of a proscenium stage, it can be used for daylight performances.

Matteo Piazza

Matteo Piazza

Matteo Piazza

Matteo Piazza

Matteo Piazza

Matteo Piazza

Matteo Piazza

Matteo Piazza

Matteo Piazza

Matteo Piazza

Matteo Piazza

Matteo Piazza

Matteo Piazza

Matteo Piazza

Matteo Piazza

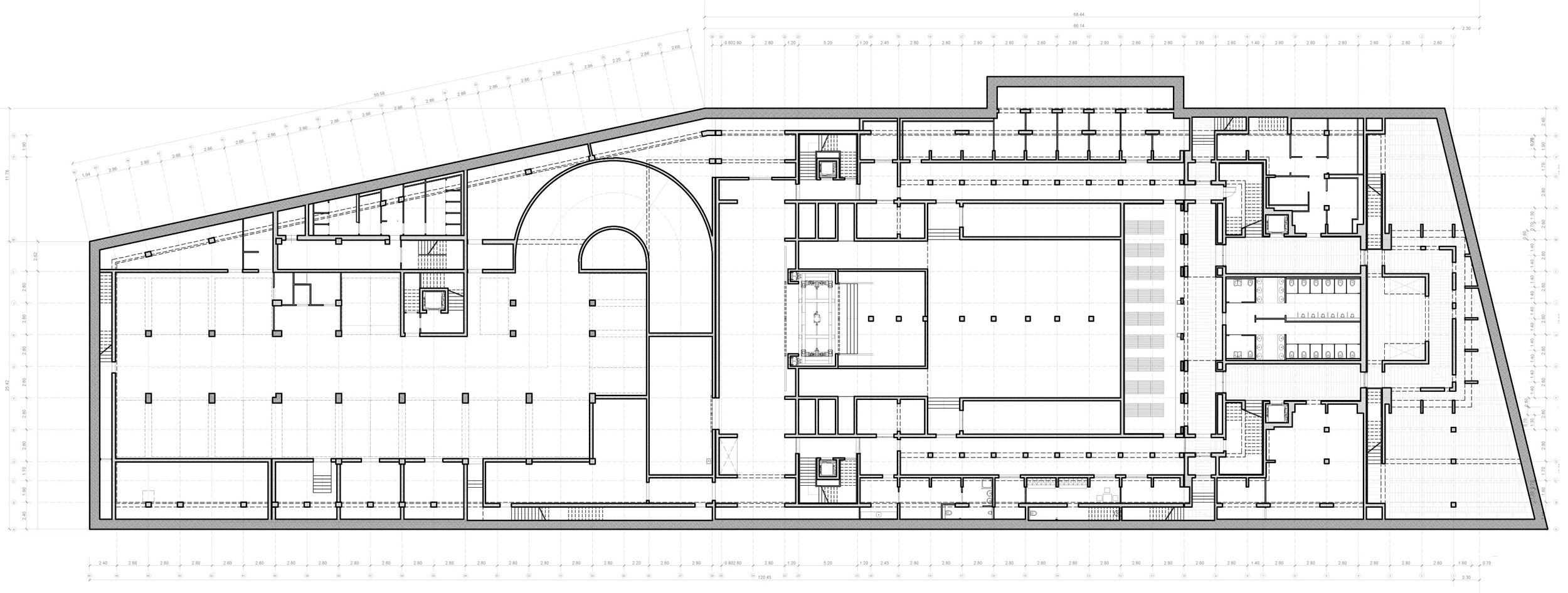
Floorplan ground floor, Graphic: Renato Rizzi

Floorplan first floor, Graphic: Renato Rizzi

Floorplan second floor, Graphic: Renato Rizzi

Floorplan third floor, Graphic: Renato Rizzi

Floorplan basement, Graphic: Renato Rizzi

Section, Graphic: Renato Rizzi

Section, Graphic: Renato Rizzi

The architect describes the building in three sequences: a tour around the structure, the theatre itself and the administrative wing. Arranged in individual volumes, the building’s shell conceals the actual structure like a mask. A six-metre wall surrounds the complex, shows off the cubature of the lot and forms the publicly accessible circuit.  The administrative and access areas are arranged according to a strict, clearly symmetrical floor plan. The 18-metre stage tower and 12-metre theatre hall are located along a single axis. Visitors experience the interplay of narrow corridors and bright, roomy spaces. These are either in whitewashed wood or clad with natural stone. Deliberate nooks and joints seem to carry the sound into every space, intensifying the feeling of architectural play. The wooden tiers in the theatre hall accommodate about 300 spectators, who are amazed at this versatile concert space. The pit, whose height can be adjusted, leaves nothing to be desired, for it allows a wide variety of stage designs. The gates, which altogether weigh more than 100 tonnes, open onto the sky, enabling a view from the circuit into the theatre space. The Teatr Szekspirowski is an unassuming treasure chest, but the treasure it contains is great. Uniting history and modernity, its impressive interior spaces nearly break through to the exterior by means of contemporary technical possibilities. The choice of materials emphasizes the contrasting effects of inside and outside, creating an exciting backdrop in a fascinating architectural flourish. In 2005, this design was distinguished in an international competition sponsored by the Theatrum Gedanese Foundation, which was established in 1991 to provide support for the reconstruction of the Elizabethan theatre. As a cultural institution, Gdánsk’s Shakespearean theatre is a fellow-organizer of the local Shakespeare Festival and perpetuates the philosophy of the Theatrum Gedanese Foundation.
The architect describes the building in three sequences: a tour around the structure, the theatre itself and the administrative wing. Arranged in individual volumes, the building’s shell conceals the actual structure like a mask. A six-metre wall surrounds the complex, shows off the cubature of the lot and forms the publicly accessible circuit.  The administrative and access areas are arranged according to a strict, clearly symmetrical floor plan. The 18-metre stage tower and 12-metre theatre hall are located along a single axis. Visitors experience the interplay of narrow corridors and bright, roomy spaces. These are either in whitewashed wood or clad with natural stone. Deliberate nooks and joints seem to carry the sound into every space, intensifying the feeling of architectural play. The wooden tiers in the theatre hall accommodate about 300 spectators, who are amazed at this versatile concert space. The pit, whose height can be adjusted, leaves nothing to be desired, for it allows a wide variety of stage designs. The gates, which altogether weigh more than 100 tonnes, open onto the sky, enabling a view from the circuit into the theatre space. The Teatr Szekspirowski is an unassuming treasure chest, but the treasure it contains is great. Uniting history and modernity, its impressive interior spaces nearly break through to the exterior by means of contemporary technical possibilities. The choice of materials emphasizes the contrasting effects of inside and outside, creating an exciting backdrop in a fascinating architectural flourish. In 2005, this design was distinguished in an international competition sponsored by the Theatrum Gedanese Foundation, which was established in 1991 to provide support for the reconstruction of the Elizabethan theatre. As a cultural institution, Gdánsk’s Shakespearean theatre is a fellow-organizer of the local Shakespeare Festival and perpetuates the philosophy of the Theatrum Gedanese Foundation.

Matteo Piazza

Matteo Piazza

Matteo Piazza

Matteo Piazza

Matteo Piazza

Matteo Piazza

Matteo Piazza

Matteo Piazza

Matteo Piazza

Matteo Piazza

Matteo Piazza

Matteo Piazza

Matteo Piazza

Matteo Piazza

Matteo Piazza

Floorplan ground floor, Graphic: Renato Rizzi

Floorplan first floor, Graphic: Renato Rizzi

Floorplan second floor, Graphic: Renato Rizzi

Floorplan third floor, Graphic: Renato Rizzi

Floorplan basement, Graphic: Renato Rizzi

Section, Graphic: Renato Rizzi

Section, Graphic: Renato Rizzi

Matteo Piazza

Matteo Piazza

Matteo Piazza

Matteo Piazza

Matteo Piazza

Matteo Piazza

Matteo Piazza

Matteo Piazza

Matteo Piazza

Matteo Piazza

Matteo Piazza

Matteo Piazza

Matteo Piazza

Matteo Piazza

Matteo Piazza

Floorplan ground floor, Graphic: Renato Rizzi

Floorplan first floor, Graphic: Renato Rizzi

Floorplan second floor, Graphic: Renato Rizzi

Floorplan third floor, Graphic: Renato Rizzi

Floorplan basement, Graphic: Renato Rizzi

Section, Graphic: Renato Rizzi

Section, Graphic: Renato Rizzi

https://detail-cdn.s3.eu-central-1.amazonaws.com/media/catalog/product/R/e/RenatoRizzi-ShakespeareTheaterDanzig-013_3.jpg?width=437&height=582&store=de_en&image-type=image https://detail-cdn.s3.eu-central-1.amazonaws.com/media/catalog/product/R/e/RenatoRizzi-ShakespeareTheaterDanzig-014_3.jpg?width=437&height=582&store=de_en&image-type=image https://detail-cdn.s3.eu-central-1.amazonaws.com/media/catalog/product/R/e/RenatoRizzi-ShakespeareTheaterDanzig-011_3.jpg?width=437&height=582&store=de_en&image-type=image https://detail-cdn.s3.eu-central-1.amazonaws.com/media/catalog/product/R/e/RenatoRizzi-ShakespeareTheaterDanzig-001_3.jpg?width=437&height=582&store=de_en&image-type=image https://detail-cdn.s3.eu-central-1.amazonaws.com/media/catalog/product/R/e/RenatoRizzi-ShakespeareTheaterDanzig-Grundriss-UG_3.jpg?width=437&height=582&store=de_en&image-type=image https://detail-cdn.s3.eu-central-1.amazonaws.com/media/catalog/product/R/e/RenatoRizzi-ShakespeareTheaterDanzig-Schnitte-quer_3.jpg?width=437&height=582&store=de_en&image-type=image https://detail-cdn.s3.eu-central-1.amazonaws.com/media/catalog/product/R/e/RenatoRizzi-ShakespeareTheaterDanzig-007_3.jpg?width=437&height=582&store=de_en&image-type=image https://detail-cdn.s3.eu-central-1.amazonaws.com/media/catalog/product/R/e/RenatoRizzi-ShakespeareTheaterDanzig-Grundriss-OG2jpg_3.jpg?width=437&height=582&store=de_en&image-type=image https://detail-cdn.s3.eu-central-1.amazonaws.com/media/catalog/product/R/e/RenatoRizzi-ShakespeareTheaterDanzig-005_3.jpg?width=437&height=582&store=de_en&image-type=image https://detail-cdn.s3.eu-central-1.amazonaws.com/media/catalog/product/R/e/RenatoRizzi-ShakespeareTheaterDanzig-006_3.jpg?width=437&height=582&store=de_en&image-type=image https://detail-cdn.s3.eu-central-1.amazonaws.com/media/catalog/product/R/e/RenatoRizzi-ShakespeareTheaterDanzig-004_3.jpg?width=437&height=582&store=de_en&image-type=image https://detail-cdn.s3.eu-central-1.amazonaws.com/media/catalog/product/R/e/RenatoRizzi-ShakespeareTheaterDanzig-003_3.jpg?width=437&height=582&store=de_en&image-type=image https://detail-cdn.s3.eu-central-1.amazonaws.com/media/catalog/product/R/e/RenatoRizzi-ShakespeareTheaterDanzig-002_3.jpg?width=437&height=582&store=de_en&image-type=image https://detail-cdn.s3.eu-central-1.amazonaws.com/media/catalog/product/R/e/RenatoRizzi-ShakespeareTheaterDanzig-Grundriss-EG_3.jpg?width=437&height=582&store=de_en&image-type=image https://detail-cdn.s3.eu-central-1.amazonaws.com/media/catalog/product/R/e/RenatoRizzi-ShakespeareTheaterDanzig-008_3.jpg?width=437&height=582&store=de_en&image-type=image https://detail-cdn.s3.eu-central-1.amazonaws.com/media/catalog/product/R/e/RenatoRizzi-ShakespeareTheaterDanzig-Grundriss-OG1jpg_3.jpg?width=437&height=582&store=de_en&image-type=image https://detail-cdn.s3.eu-central-1.amazonaws.com/media/catalog/product/R/e/RenatoRizzi-ShakespeareTheaterDanzig-009_3.jpg?width=437&height=582&store=de_en&image-type=image https://detail-cdn.s3.eu-central-1.amazonaws.com/media/catalog/product/R/e/RenatoRizzi-ShakespeareTheaterDanzig-Grundriss-OG3jpg_3.jpg?width=437&height=582&store=de_en&image-type=image https://detail-cdn.s3.eu-central-1.amazonaws.com/media/catalog/product/R/e/RenatoRizzi-ShakespeareTheaterDanzig-010_3.jpg?width=437&height=582&store=de_en&image-type=image https://detail-cdn.s3.eu-central-1.amazonaws.com/media/catalog/product/R/e/RenatoRizzi-ShakespeareTheaterDanzig-Schnitt-laengs_3.jpg?width=437&height=582&store=de_en&image-type=image https://detail-cdn.s3.eu-central-1.amazonaws.com/media/catalog/product/R/e/RenatoRizzi-ShakespeareTheaterDanzig-012_3.jpg?width=437&height=582&store=de_en&image-type=image https://detail-cdn.s3.eu-central-1.amazonaws.com/media/catalog/product/R/e/RenatoRizzi-ShakespeareTheaterDanzig-000_3.jpg?width=437&height=582&store=de_en&image-type=image https://detail-cdn.s3.eu-central-1.amazonaws.com/media/catalog/product/R/e/RenatoRizzi-ShakespeareTheaterDanzig-Teaser-735_1.jpg?width=437&height=582&store=de_en&image-type=image https://detail-cdn.s3.eu-central-1.amazonaws.com/media/catalog/product/R/e/RenatoRizzi-ShakespeareTheaterDanzig-Teaser-1500_1.jpg?width=437&height=582&store=de_en&image-type=image
Copyright © 2024 DETAIL. All rights reserved.