// Check if the article Layout ?>
Brick façade skin: Town hall extension by Titan Architects
Foto: (c) Julien Lanoo
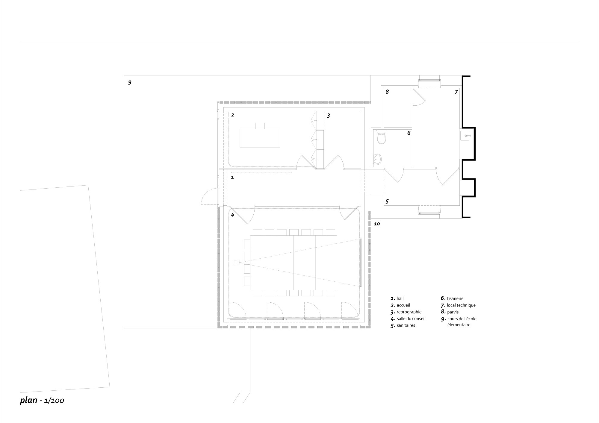
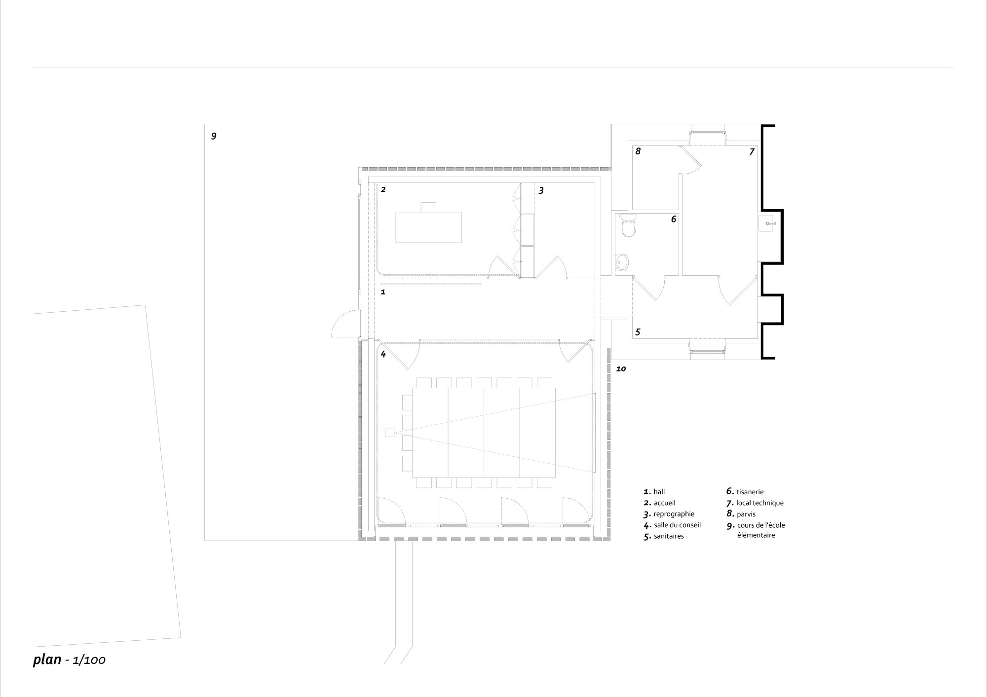
The extension to the town hall in the French village of Chaillé-sous-les-Ormeaux has a simple structural composition; the new building is also slightly set back from the street and projects a little way into the playground at the back. At the same time the volume is detached from the historic town hall and differs from it in terms of shape and materials. The use of locally produced brick – a core element of the project – determines the overall appearance of the new building and underscores its particular purpose.
On the western side of the annex, a large open space with a small public forecourt creates a visual connection both to the town hall and the municipal school building at the rear. The southern façade creates a special atmosphere inside the wedding chamber in the extension building as the perforated brick wall filters the sunlight, resulting in a particular pattern of light and shade in the room. In the evening hours the perforated façade becomes a work of light art, while another of its functions is to provide protection from curious glances. Accordingly Titan Architects compare the façade to Islamic mashrabiya – windows and balconies that are enclosed in traditional wood latticework and which also serve as ornamental façade elements.
On the western side of the annex, a large open space with a small public forecourt creates a visual connection both to the town hall and the municipal school building at the rear. The southern façade creates a special atmosphere inside the wedding chamber in the extension building as the perforated brick wall filters the sunlight, resulting in a particular pattern of light and shade in the room. In the evening hours the perforated façade becomes a work of light art, while another of its functions is to provide protection from curious glances. Accordingly Titan Architects compare the façade to Islamic mashrabiya – windows and balconies that are enclosed in traditional wood latticework and which also serve as ornamental façade elements.











