10.03.2017 Jakob Schoof

Culture Beats Out Commerce: District Library in Guiyang

Photo: Van Wang Architects

No investor project of note can do without them: those often temporary marketing pavilions featuring models, colourful renderings and separate areas for sales discussions that aim to convince potential apartment buyers or office tenants to set up here and nowhere else.

For the urban development project initiated by the China Railway Group (CREC) on the edge of the southwestern city of Guiyang, this pavilion appeared in the form of a grand, two-storey building. The client, despite its name, is not a railway company, but rather a large state-owned building enterprise in China.

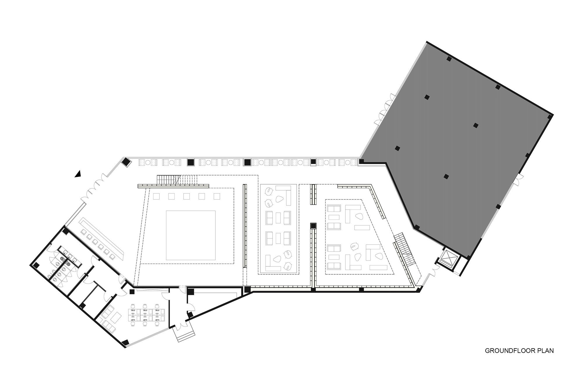
For the most part, a local architecture studio had completed its plans for the showroom. Nonetheless, Van Wang Architects from Hong Kong suggested rededicating part of the new building as a district library. Between the ground floor and upper storey, they added a mezzanine and then divided the entire space into four sections: the entry hall, two reading rooms and a long access area along the façade.

The entryway and one of the reading rooms take up the entire height of the building and are exposed to daylight through the high upper-storey windows. The second reading room is found only on the ground floor and the mezzanine; it is topped off with a ceiling clad in wooden slats. Wood surfaces are predominant in the new fittings as well. Along with the dark stone floor, they give the library an elegant, comfortable character.

Both reading rooms are lined with bookshelves. A steel construction supports stairways and galleries which create an interesting path leading through the entire library. While the reading rooms have a rather introverted character, the seating along the façade upstairs offers a view over the district that will arise over the following few years just outside the window.

Photo: Van Wang Architects

Photo: Van Wang Architects

Photo: Van Wang Architects

Photo: Van Wang Architects

Photo: Van Wang Architects

Photo: Van Wang Architects

Photo: Van Wang Architects

Photo: Van Wang Architects

Photo: Van Wang Architects

Photo: Van Wang Architects

Photo: Van Wang Architects

Photo: Van Wang Architects

Photo: Van Wang Architects

Photo: Van Wang Architects

Photo: Van Wang Architects

Photo: Van Wang Architects

Photo: Van Wang Architects

Photo: Van Wang Architects

Photo: Van Wang Architects

Axonometric diagram - Graphic: Van Wang Architects

Ground plot 1. floor - Graphic: Van Wang Architects

Ground plot ground floor - Graphic: Van Wang Architects

Ground plot Mezzanine floor - Graphic: Van Wang Architects

Section - Graphic: Van Wang Architects

https://detail-cdn.s3.eu-central-1.amazonaws.com/media/catalog/product/K/u/Kultur-schlagt-Kommerz-2_1.jpg?width=437&height=582&store=de_en&image-type=image https://detail-cdn.s3.eu-central-1.amazonaws.com/media/catalog/product/K/u/Kultur-schlagt-Kommerz-15.jpg?width=437&height=582&store=de_en&image-type=image https://detail-cdn.s3.eu-central-1.amazonaws.com/media/catalog/product/K/u/Kultur-schlagt-Kommerz-Section_1.jpg?width=437&height=582&store=de_en&image-type=image https://detail-cdn.s3.eu-central-1.amazonaws.com/media/catalog/product/K/u/Kultur-schlagt-Kommerz-13_1.jpg?width=437&height=582&store=de_en&image-type=image https://detail-cdn.s3.eu-central-1.amazonaws.com/media/catalog/product/K/u/Kultur-schlagt-Kommerz-Axonometric_diagram_1.jpg?width=437&height=582&store=de_en&image-type=image https://detail-cdn.s3.eu-central-1.amazonaws.com/media/catalog/product/K/u/Kultur-schlagt-Kommerz-Grounfloor_1.jpg?width=437&height=582&store=de_en&image-type=image https://detail-cdn.s3.eu-central-1.amazonaws.com/media/catalog/product/K/u/Kultur-schlagt-Kommerz-8_1.jpg?width=437&height=582&store=de_en&image-type=image https://detail-cdn.s3.eu-central-1.amazonaws.com/media/catalog/product/K/u/Kultur-schlagt-Kommerz-18_1.jpg?width=437&height=582&store=de_en&image-type=image https://detail-cdn.s3.eu-central-1.amazonaws.com/media/catalog/product/K/u/Kultur-schlagt-Kommerz-6_1.jpg?width=437&height=582&store=de_en&image-type=image https://detail-cdn.s3.eu-central-1.amazonaws.com/media/catalog/product/K/u/Kultur-schlagt-Kommerz-7.jpg?width=437&height=582&store=de_en&image-type=image https://detail-cdn.s3.eu-central-1.amazonaws.com/media/catalog/product/K/u/Kultur-schlagt-Kommerz-5_1.jpg?width=437&height=582&store=de_en&image-type=image https://detail-cdn.s3.eu-central-1.amazonaws.com/media/catalog/product/K/u/Kultur-schlagt-Kommerz-4_1.jpg?width=437&height=582&store=de_en&image-type=image https://detail-cdn.s3.eu-central-1.amazonaws.com/media/catalog/product/K/u/Kultur-schlagt-Kommerz-3_1.jpg?width=437&height=582&store=de_en&image-type=image https://detail-cdn.s3.eu-central-1.amazonaws.com/media/catalog/product/K/u/Kultur-schlagt-Kommerz-16_1.jpg?width=437&height=582&store=de_en&image-type=image https://detail-cdn.s3.eu-central-1.amazonaws.com/media/catalog/product/K/u/Kultur-schlagt-Kommerz-9_1.jpg?width=437&height=582&store=de_en&image-type=image https://detail-cdn.s3.eu-central-1.amazonaws.com/media/catalog/product/K/u/Kultur-schlagt-Kommerz-17_1.jpg?width=437&height=582&store=de_en&image-type=image https://detail-cdn.s3.eu-central-1.amazonaws.com/media/catalog/product/K/u/Kultur-schlagt-Kommerz-10_1.jpg?width=437&height=582&store=de_en&image-type=image https://detail-cdn.s3.eu-central-1.amazonaws.com/media/catalog/product/K/u/Kultur-schlagt-Kommerz-19_1.jpg?width=437&height=582&store=de_en&image-type=image https://detail-cdn.s3.eu-central-1.amazonaws.com/media/catalog/product/K/u/Kultur-schlagt-Kommerz-11_1.jpg?width=437&height=582&store=de_en&image-type=image https://detail-cdn.s3.eu-central-1.amazonaws.com/media/catalog/product/K/u/Kultur-schlagt-Kommerz-first-floor_1.jpg?width=437&height=582&store=de_en&image-type=image https://detail-cdn.s3.eu-central-1.amazonaws.com/media/catalog/product/K/u/Kultur-schlagt-Kommerz-12_1.jpg?width=437&height=582&store=de_en&image-type=image https://detail-cdn.s3.eu-central-1.amazonaws.com/media/catalog/product/K/u/Kultur-schlagt-Kommerz-Mezzanine-floor_1.jpg?width=437&height=582&store=de_en&image-type=image https://detail-cdn.s3.eu-central-1.amazonaws.com/media/catalog/product/K/u/Kultur-schlagt-Kommerz-14_1.jpg?width=437&height=582&store=de_en&image-type=image https://detail-cdn.s3.eu-central-1.amazonaws.com/media/catalog/product/K/u/Kultur-schlagt-Kommerz-1_1.jpg?width=437&height=582&store=de_en&image-type=image https://detail-cdn.s3.eu-central-1.amazonaws.com/media/catalog/product/K/u/Kultur-schlagt-Kommerz-teaser735_1.jpg?width=437&height=582&store=de_en&image-type=image https://detail-cdn.s3.eu-central-1.amazonaws.com/media/catalog/product/K/u/Kultur-schlagt-Kommerz-teaser1500_1.jpg?width=437&height=582&store=de_en&image-type=image
Copyright © 2024 DETAIL. All rights reserved.