// Check if the article Layout ?>
Finally united: Faculty of Arts by Snøhetta
Photo: Trond Isaksen, Statsbygg
The space for the Faculty of Arts (KMD) at the University of Bergen covers 14,800 m². As Snøhetta sees itself as an interdisciplinary studio, it is only logical that they should be given this commission. Along with museum structures such as SFMOMA or the Centre for World Culture in Dhahran, Snøhetta’s portfolio features shop designs, landscape planning and designs for banknotes. Therefore, the architects had a particular understanding for the interdisciplinary work that was to find its home in the new building.
Shelter from rain, wind and sea
The façade of the compact structure with a slightly sloping roof is a puzzle of 900 different aluminum panels. These form a relief broken up by individual windows, some of which jut. The rough aluminum is resistant to salt water and can also withstand the raw, rainy climate of Norway’s west coast. Over the years, the shell will weather, oxidize and take on a greater variety of colours and textures. Excess rainwater is directed over the sloping roof into a tank, from where it flows into a basin located in the front courtyard in order to avoid pressure and flooding.
Visitors welcome
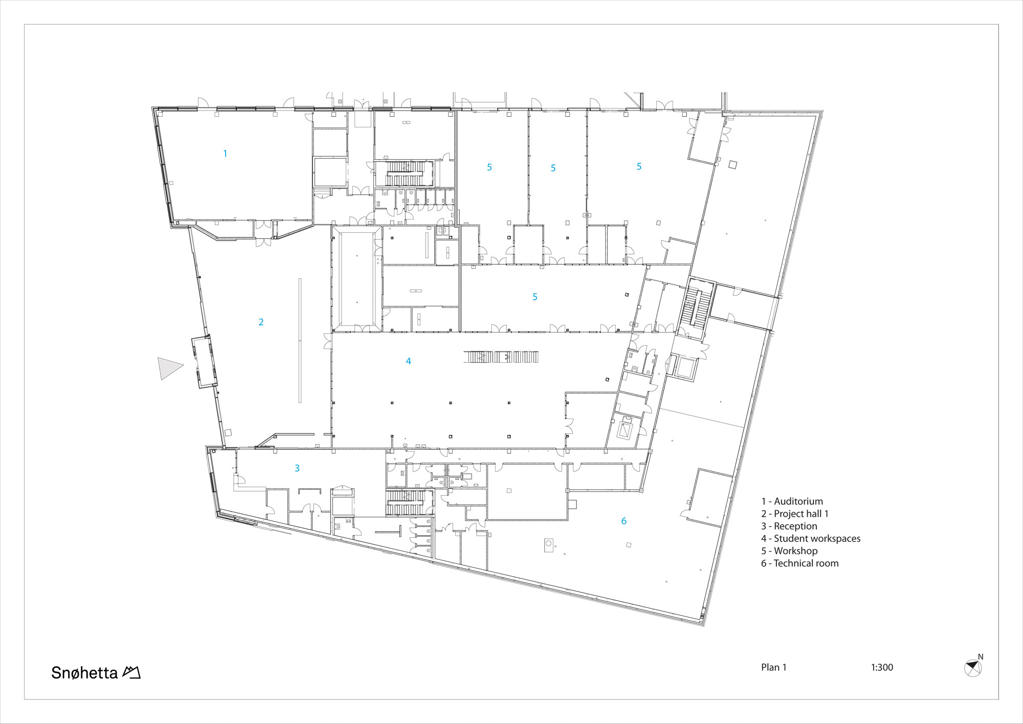
The new structure, which stands on the grounds of a crane factory, joins the university to the city of Bergen. The main entrance faces the Kunstallmenningen, a public square. Two axes cross in the building: the public one and the one for students and university employees.
Their point of intersection is the 1,300-m² hall at the centre of the structure. This makes the building a meeting place where events and exhibitions can take place. At the same time, the hall features an original bridge crane, complete with trolley, from the building that once stood in the same place. This makes the hall ideal for large-format or particularly heavy student works.
Robust surfaces
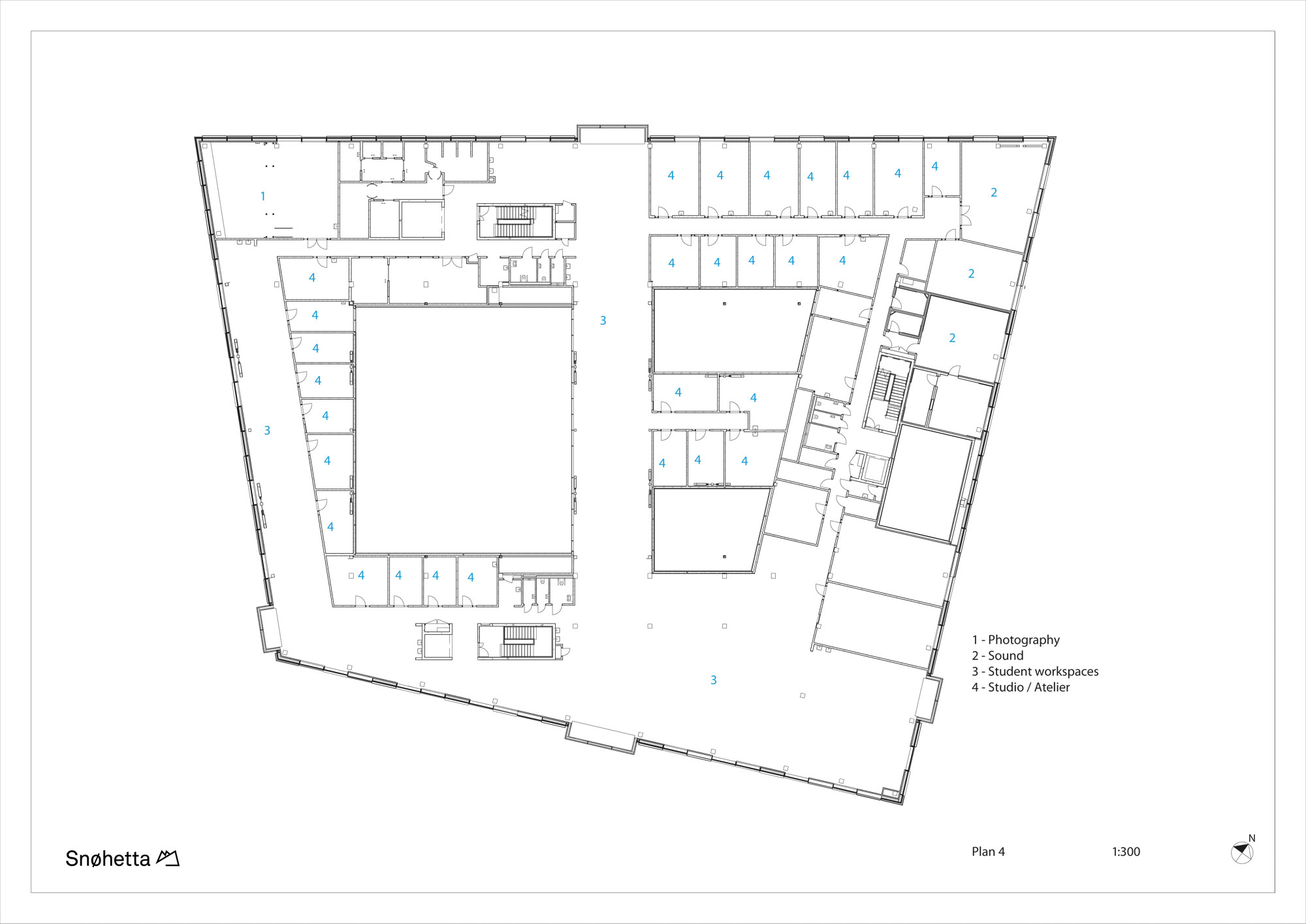
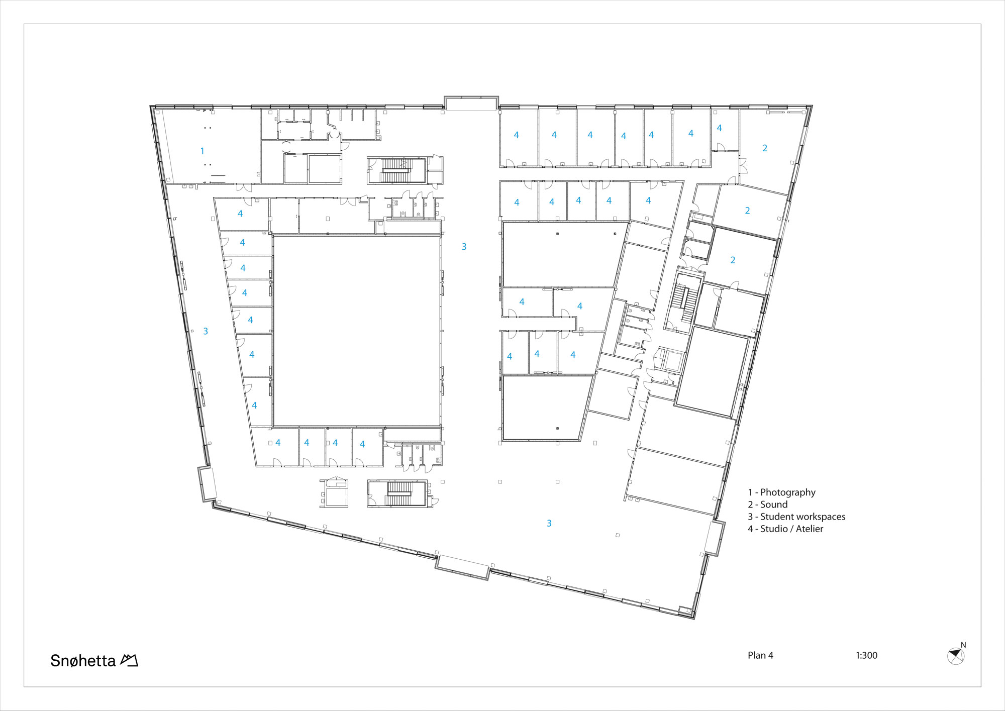
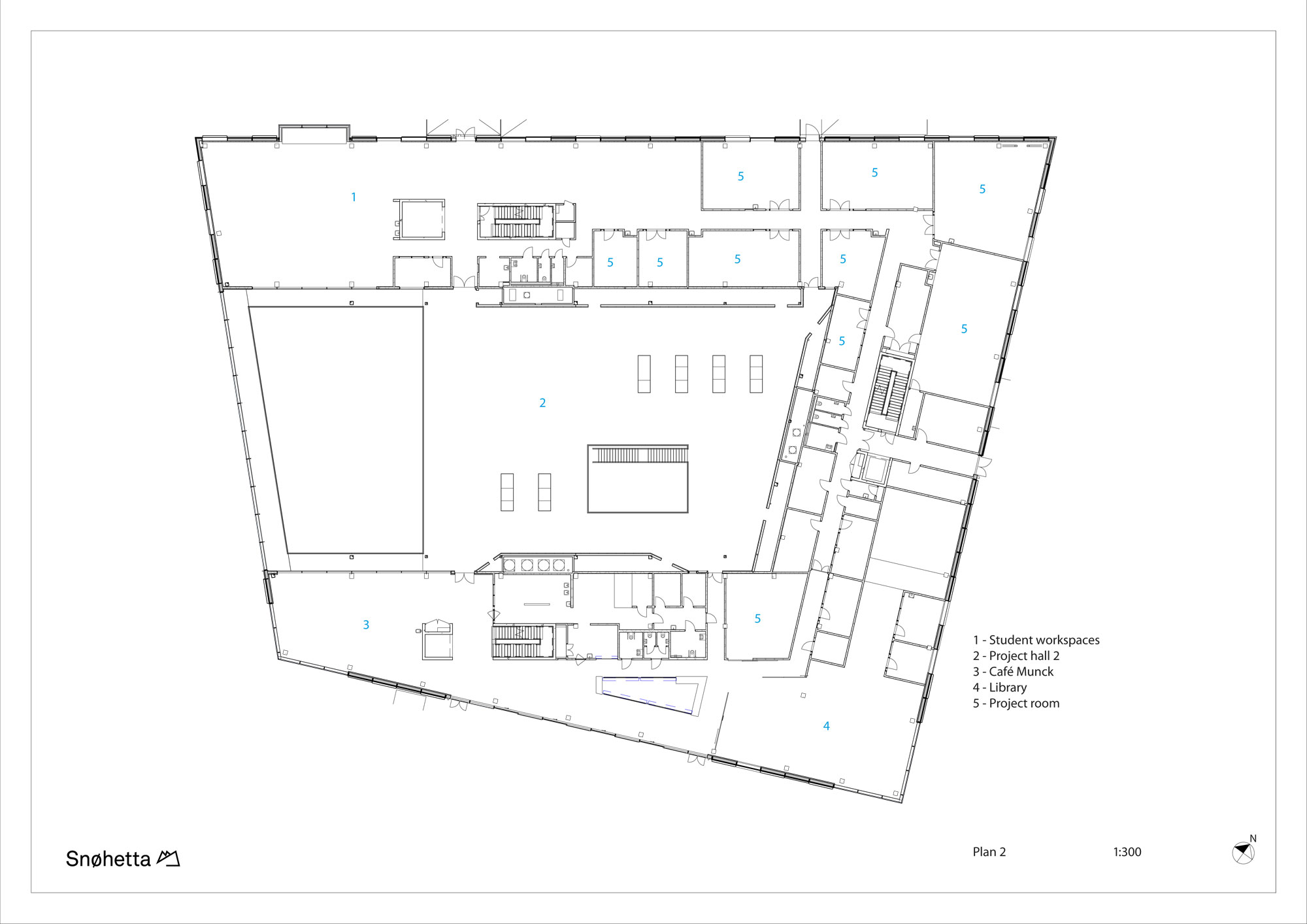
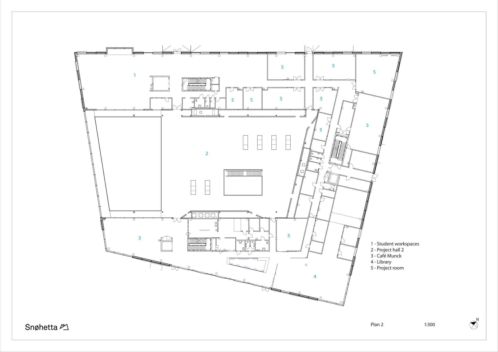
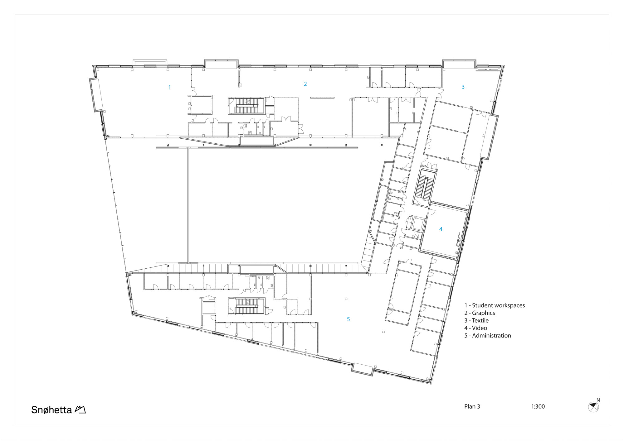
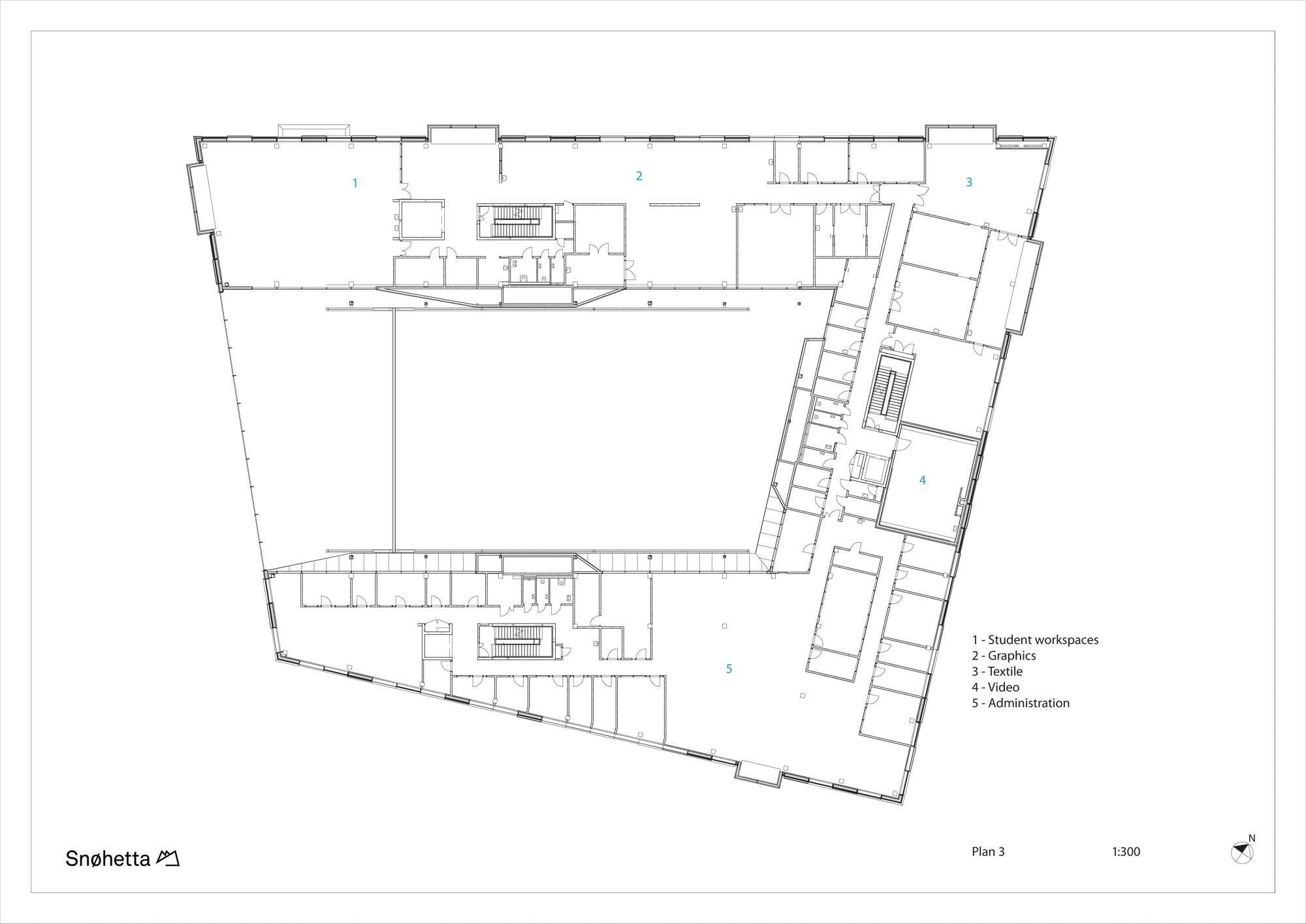
The new structure provides space for 350 students and the administration required for the subjects of fine art, music and design. On the second upper storey, a café with a terrace invites visitors to take a coffee break; the library and material library are open to the public. The administration offices and first studios are found one floor up. The fourth upper storey is home to most of the studios and more workspaces. Pine wood-block paving, vinyl and in-situ concrete were chosen as especially robust flooring so that the building will be able to carry many future generations of active art students.
Shelter from rain, wind and sea
The façade of the compact structure with a slightly sloping roof is a puzzle of 900 different aluminum panels. These form a relief broken up by individual windows, some of which jut. The rough aluminum is resistant to salt water and can also withstand the raw, rainy climate of Norway’s west coast. Over the years, the shell will weather, oxidize and take on a greater variety of colours and textures. Excess rainwater is directed over the sloping roof into a tank, from where it flows into a basin located in the front courtyard in order to avoid pressure and flooding.
Visitors welcome
The new structure, which stands on the grounds of a crane factory, joins the university to the city of Bergen. The main entrance faces the Kunstallmenningen, a public square. Two axes cross in the building: the public one and the one for students and university employees.
Their point of intersection is the 1,300-m² hall at the centre of the structure. This makes the building a meeting place where events and exhibitions can take place. At the same time, the hall features an original bridge crane, complete with trolley, from the building that once stood in the same place. This makes the hall ideal for large-format or particularly heavy student works.
Robust surfaces
The new structure provides space for 350 students and the administration required for the subjects of fine art, music and design. On the second upper storey, a café with a terrace invites visitors to take a coffee break; the library and material library are open to the public. The administration offices and first studios are found one floor up. The fourth upper storey is home to most of the studios and more workspaces. Pine wood-block paving, vinyl and in-situ concrete were chosen as especially robust flooring so that the building will be able to carry many future generations of active art students.























