// Check if the article Layout ?>
Intimate, yet Public: Chooji Restaurant in Tehran
Photo: Mehdi Kolahi
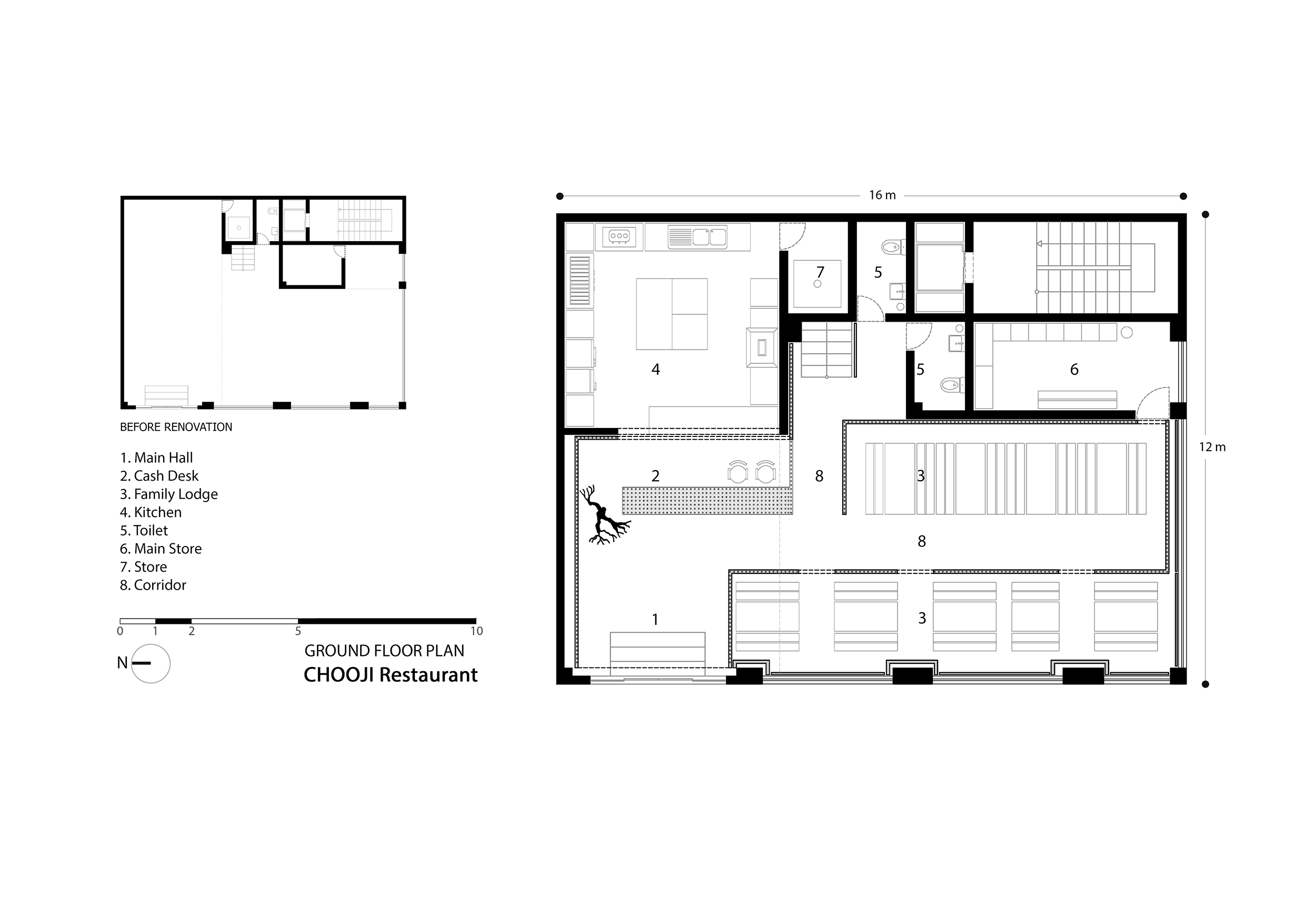
If there was one thing the architects did not want, it was to destroy more than they improved with their intervention, as is the case with many other building projects in the city. Rather, their renovation is an example of how subtle interventions can serve several principles at once and yet provide an architectural expression of cultural circumstances. Then there was the limited rental period of the space, which required the rethinking of the building’s treatment. All existing walls were preserved and the façade left largely unchanged. An existing mezzanine was integrated into the restaurant concept and, like the ground floor, expanded by further rooms such as storage spaces and a generous kitchen. This now forms the heart of the restaurant; moreover, it acts as a symbolic figurehead right in the foyer. The space, which has two storeys here, offers an entrance that arouses the curiosity of passers-by, immediately reveals the use of the space and, inside, evokes an open feeling and a good overview of the restaurant.
At the same time, the entryway symbolizes the interplay between public and private space, which plays an important cultural and architectural role in Iran. While the restaurant exudes a public feeling, the interior walls, which are formed with slender wooden poles, offer more private areas inside the space, thus creating an intimate sphere within a public place. The wooden poles add movement to the room: the light falling in, dining and moving guests in front of and behind the louvre-like walls create a dynamic picture. This creates aloof spaces for dining and lingering within the larger space, but prevents the impression of being closed off.
The material choice of wood and metal offers the potential for reuse. All the details here have been formed in such a way that they can easily be adapted to new uses. This will not just save money, but resources as well, and will ensure the gentle handling of the existing structure.
In their diverse applications, the wooden poles call to mind Asian chopsticks or makisus, bottle caps or corks. At any rate, they arouse associations with food and invite guests to come in. The dark-coloured expanded metal, which allows a view behind the scenes, provides a contrast. This is how the existing structure and the technological side of things remain visible and can be experienced. The various zones at the Chooji Restaurant seem to conquer the original space: they create a kind of integration in the existing structure and simultaneously give the place a new identity. The entrance corridor remains open and inviting without invading the private space of the dining nooks, while the wood-veiled seating areas create an intimate sphere within the public place.
At the same time, the entryway symbolizes the interplay between public and private space, which plays an important cultural and architectural role in Iran. While the restaurant exudes a public feeling, the interior walls, which are formed with slender wooden poles, offer more private areas inside the space, thus creating an intimate sphere within a public place. The wooden poles add movement to the room: the light falling in, dining and moving guests in front of and behind the louvre-like walls create a dynamic picture. This creates aloof spaces for dining and lingering within the larger space, but prevents the impression of being closed off.
The material choice of wood and metal offers the potential for reuse. All the details here have been formed in such a way that they can easily be adapted to new uses. This will not just save money, but resources as well, and will ensure the gentle handling of the existing structure.
In their diverse applications, the wooden poles call to mind Asian chopsticks or makisus, bottle caps or corks. At any rate, they arouse associations with food and invite guests to come in. The dark-coloured expanded metal, which allows a view behind the scenes, provides a contrast. This is how the existing structure and the technological side of things remain visible and can be experienced. The various zones at the Chooji Restaurant seem to conquer the original space: they create a kind of integration in the existing structure and simultaneously give the place a new identity. The entrance corridor remains open and inviting without invading the private space of the dining nooks, while the wood-veiled seating areas create an intimate sphere within the public place.
Further information:
Area: 200 m2
Project leader: Shobeir Mousavi , Amirreza Fazel , Mehdi Kolahi
Designteam: Masoud Almasi, Zohreh Baghejari, Niusha Ghasem, Ramtin Haghnazar, Marjan Rafighi, Bita Latifi, Roshanak Fathi
Admun Studio auf Instagram
Photos: Parham Taghioff, Mehdi Kolahi
Project leader: Shobeir Mousavi , Amirreza Fazel , Mehdi Kolahi
Designteam: Masoud Almasi, Zohreh Baghejari, Niusha Ghasem, Ramtin Haghnazar, Marjan Rafighi, Bita Latifi, Roshanak Fathi
Admun Studio auf Instagram
Photos: Parham Taghioff, Mehdi Kolahi

























