// Check if the article Layout ?>
Let There be Light: Restoration of an Office Building by Atelier Zündel Cristea
Photo: Sergio Grazia
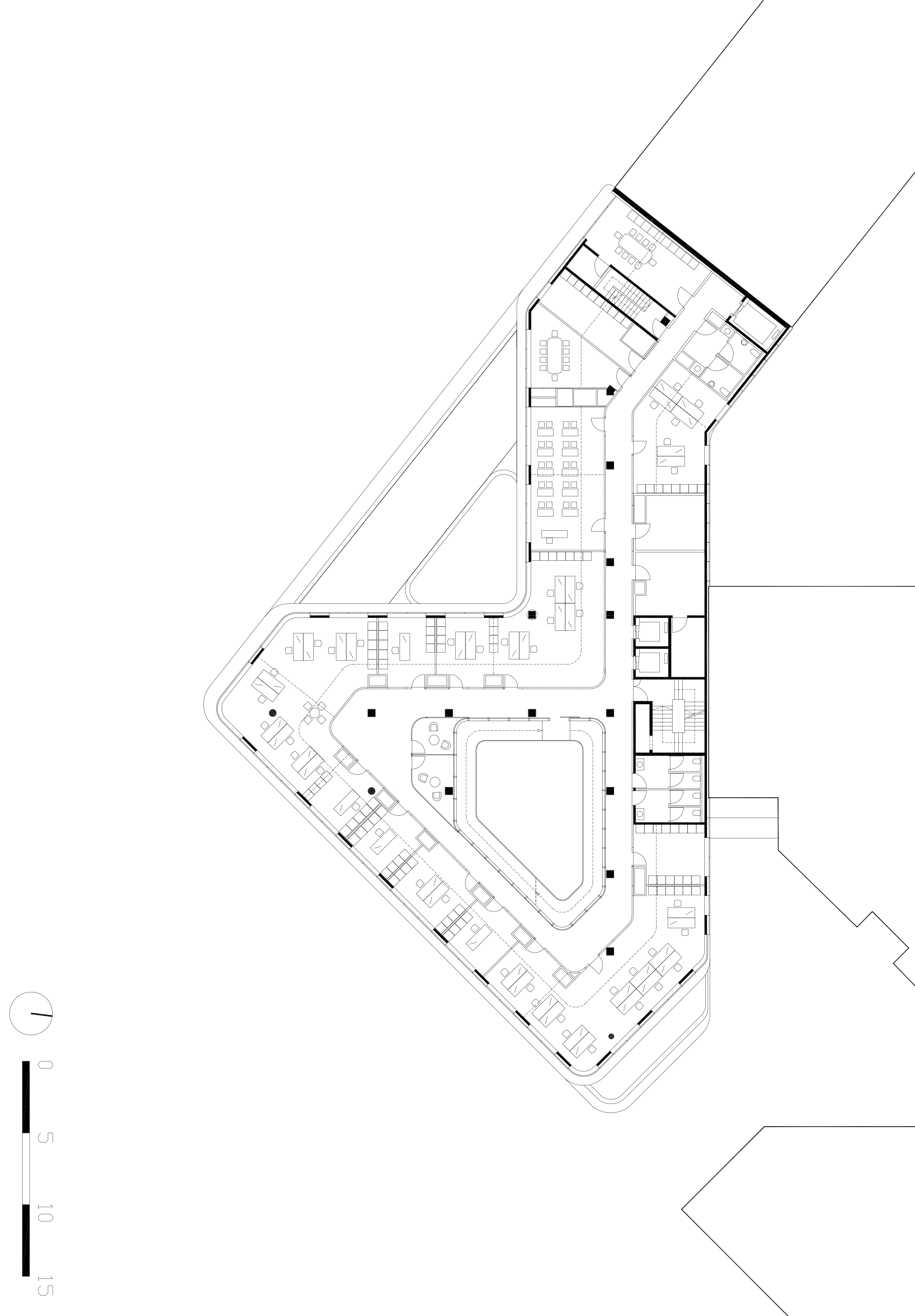
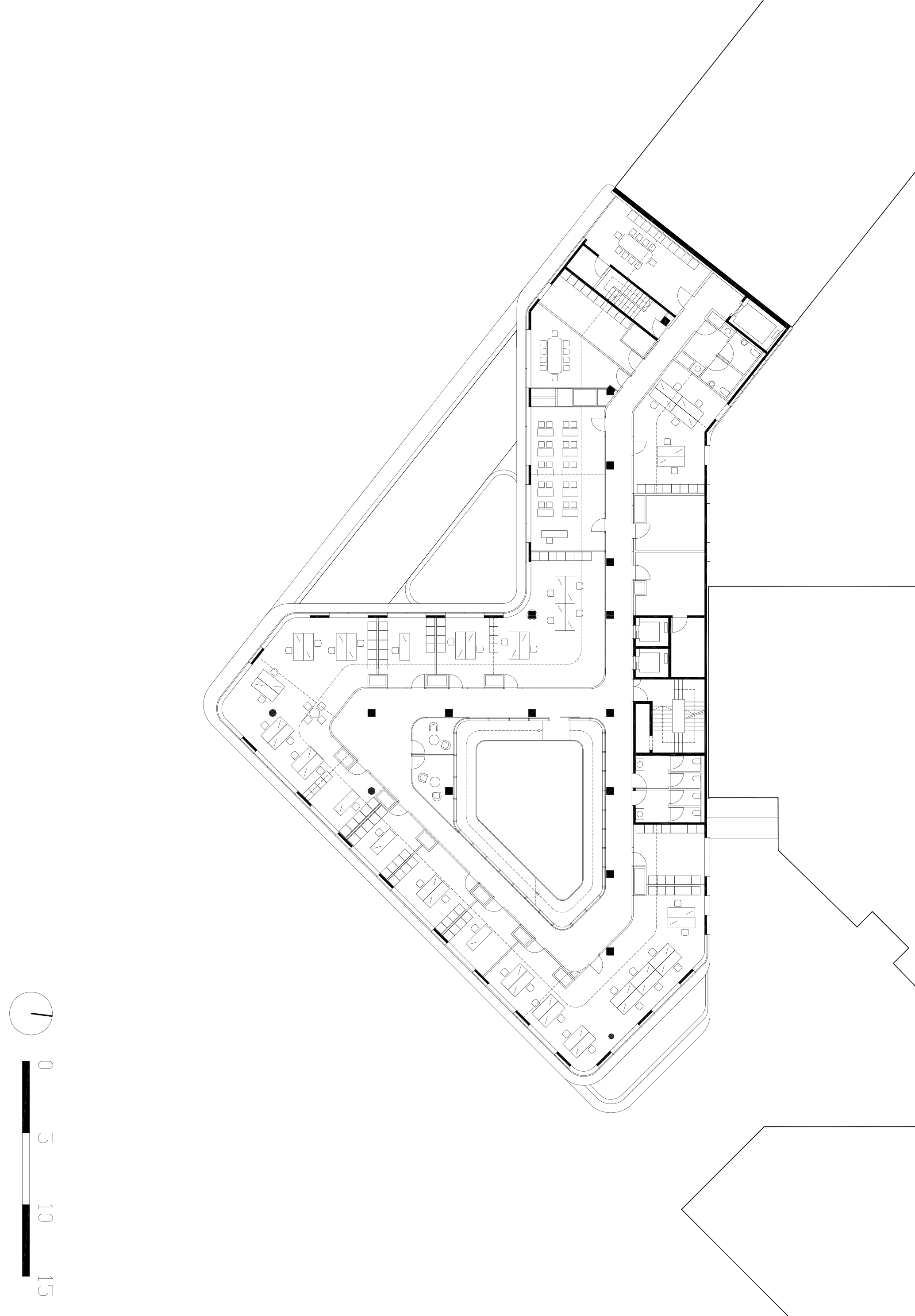
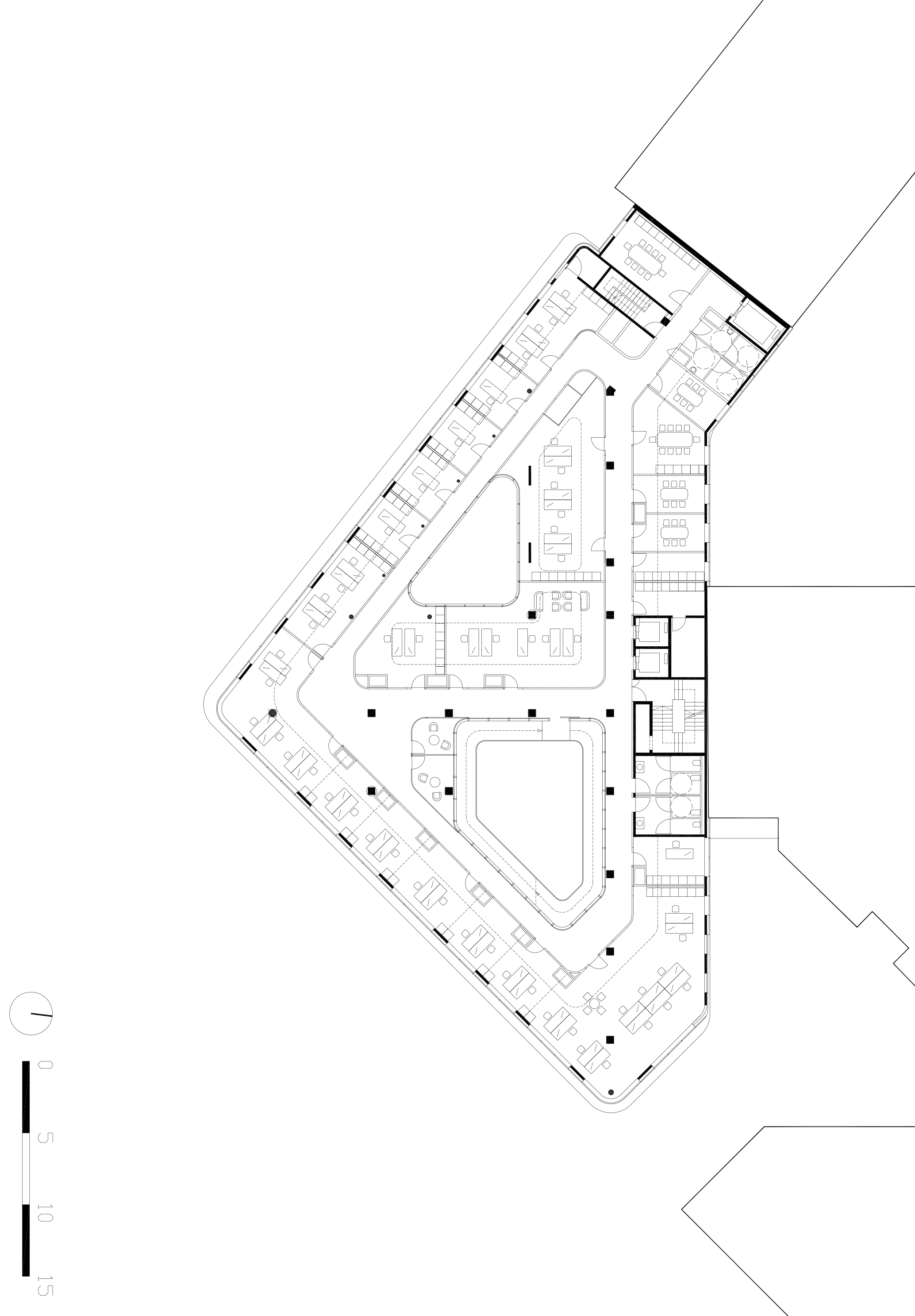
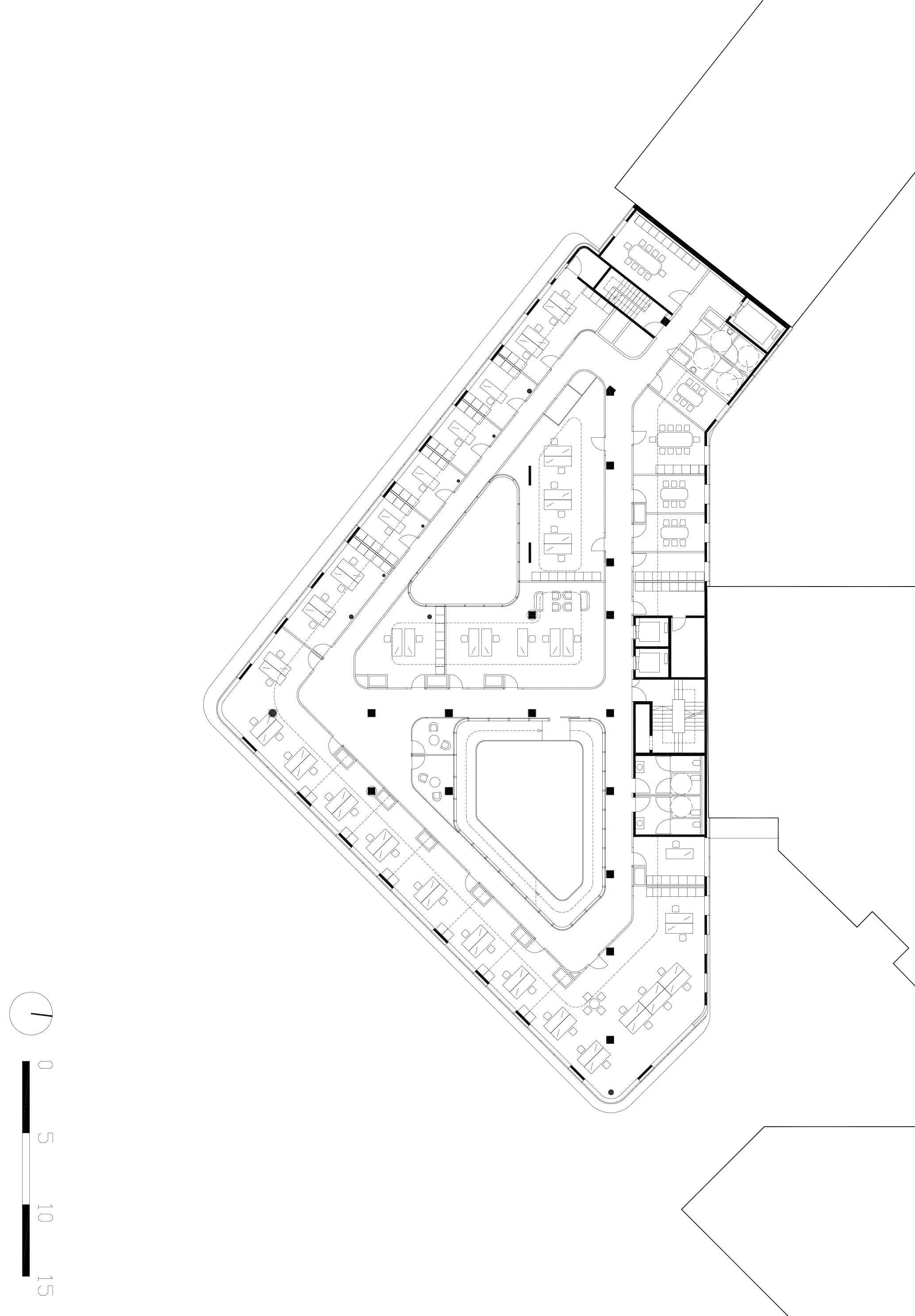
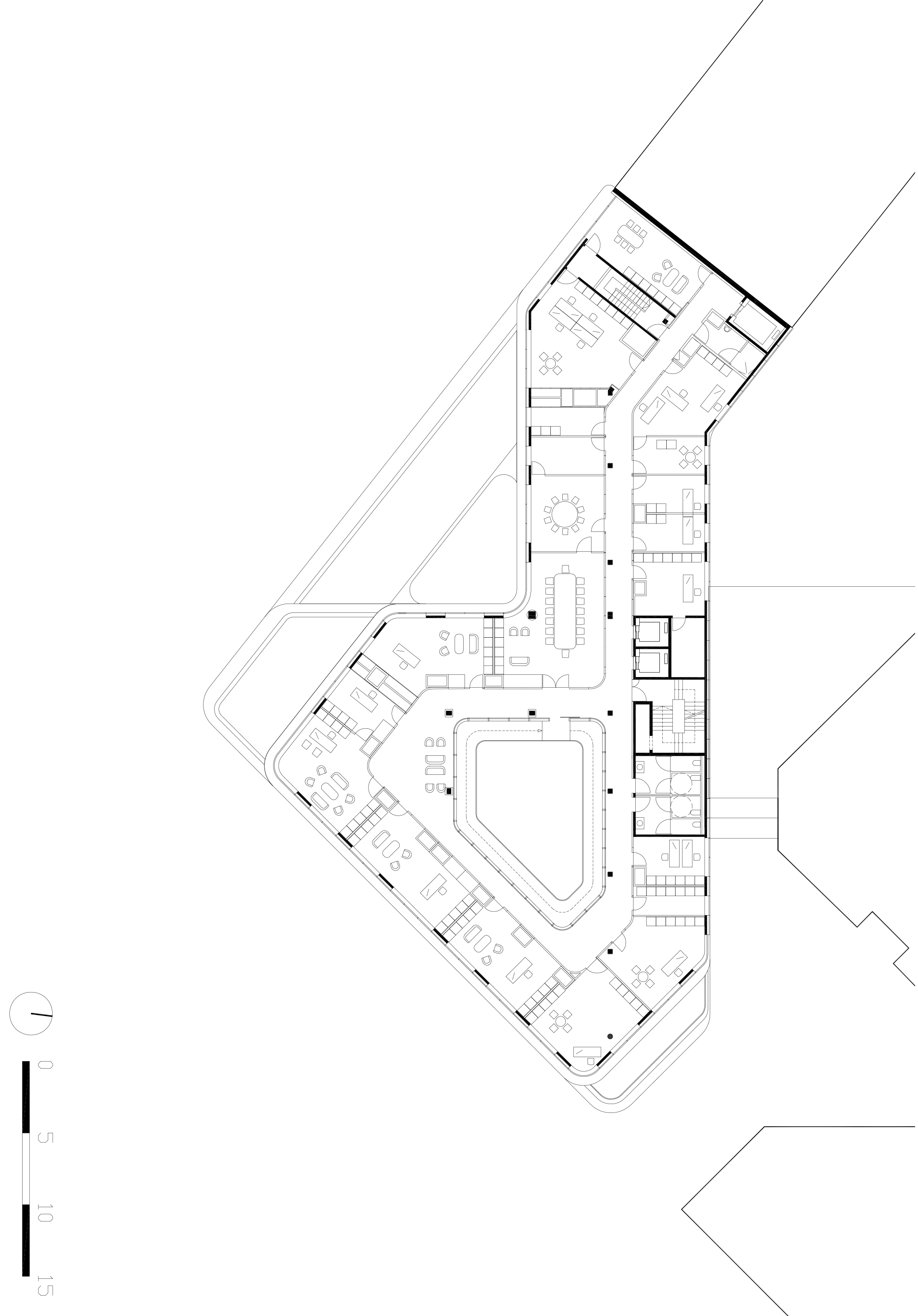
On the Seine, not far from Paris, AZC have designed the new headquarters of Pacemar SAS, a holding of Louis Dreyfus Armateurs. The skeleton structure, made of reinforced concrete and measuring 4,300 m², comprises a basement, ground floor and four upper storeys. The brightness, spatial structure and acoustics of the original structure did not meet modern requirements. Therefore, the architectural intervention consisted in reorganizing all levels of the building and creating fluid, efficient spaces with natural lighting. The generous atrium, hewn from the ponderous, dim “interior life” of the old structure, now allows natural light to stream far into the lobby. A monumental ramp inside the patio connects the ground floor with the levels above and invites visitors to take a stroll upwards. Where it was once dark and forbidding, there is now a visual interplay between the individual office levels and a pleasant transparency that respects private space. The reconfiguration of the internal pathways has led to better visibility in improved lighting conditions, which will promote both the interior connections and interaction between the building and its users.
A façade optimized for office use meets the challenge of transparency and extensive views of the adjacent Seine. It is designed to create identity and reflect the company’s maritime background. The glazed double façade is naturally ventilated and ensures the thermal and acoustic insulation of the building, which is necessary on the noisy Quai Gallieni. Small, adjustable slats in the interspace serve to reduce glare, while the light reflected on the building’s shell, depending on perspective, seems to blend into the sky.
more Information:
Architects: Grégoire Zündel, Irina Cristea Concours – Mario Russo; Studies - Elena Melzoba; Construction - Jeremias Lorch, Laurie Tiradas
Further partners: Batiserf, Louis Choulet, Bureau Michel Forgue, VS-A, ARTELIA
Cost: 12,5 M€
Photographer: Sergio Grazia
Further partners: Batiserf, Louis Choulet, Bureau Michel Forgue, VS-A, ARTELIA
Cost: 12,5 M€
Photographer: Sergio Grazia

























