// Check if the article Layout ?>
Retreat with a View: Holiday Home by Carvalho Araújo
Photo: Hugo Carvalho Araújo
Instead of going for a saddle roof and red bricks, the architect decided in favour of a rough concrete façade and a flat, jutting roof with a particular highlight: a 30-m² open-air swimming pool is the focal point of the holiday home and offers an unobstructed view of the rocky landscape of Serra d’Arga. The living spaces are nestled under the pool, offering a sheltered retreat to the house’s occupants.
Although the rectangular volume first appears to be a foreign body, traditional references become clear at second look: the inspiration for this concrete cube came from the lavadouro, the water tank characteristic of this region. These tanks originally served as reservoirs, as washing places or as not entirely legal play areas for children. But the lavadouros were always one thing: a communicative place where people came together.
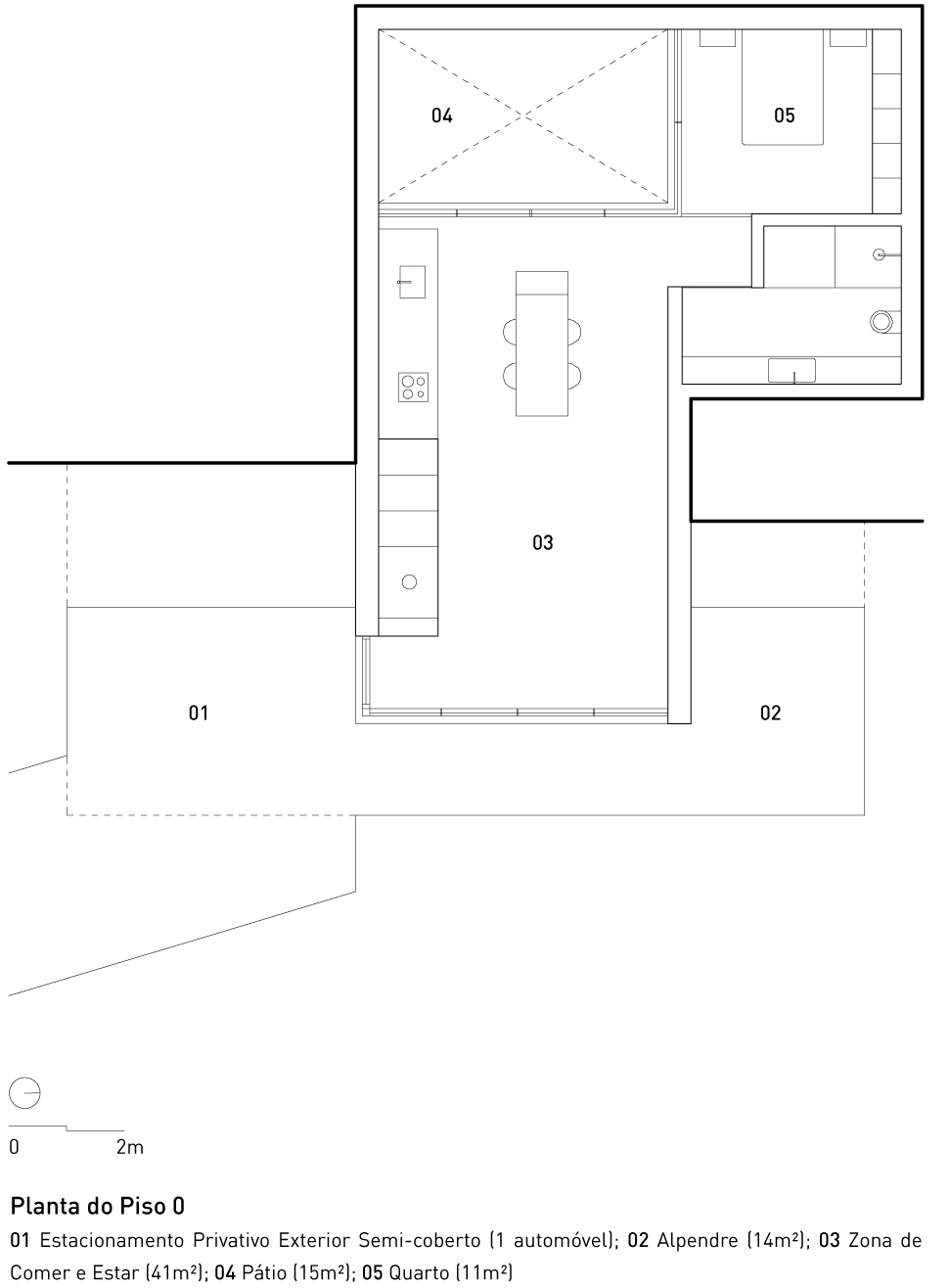
This image was exactly what the architect had in mind for Refúgio na Montaria. As if it were on a pedestal, the pool is enthroned on the roof. Underneath is a sheltered retreat for the house’s occupants. Hidden in the slope, there is a generous living and dining area, a bedroom and a bathroom. The rooms are grouped around a 15-m² concealed inner courtyard that provides natural ventilation and lighting for the living spaces. Valleywards, corner glazing with sliding doors offers extensive views over the landscape.
In the choice of materials, the architect limited himself to concrete and glass. The coarse, horizontal formwork texture of the façade is a suitable response to the jagged, rocky landscape and is carried through to the inner courtyard, which is hidden from external view. Inside, the surfaces are homogeneous and have been kept in a muted, liveable colour palette. Whether the residents want to relax in their introverted living room or go for a swim on the roof, nothing here will stand in the way of an active holiday.
more Information:
Team: José Manuel Carvalho Araújo, Joel Moniz, Francisco Vacas, Ana Vilar, Tiago Curado Almeida, Leandro Silva, João Santos
Completion: 2015
Photos: Hugo Carvalho Araújo















