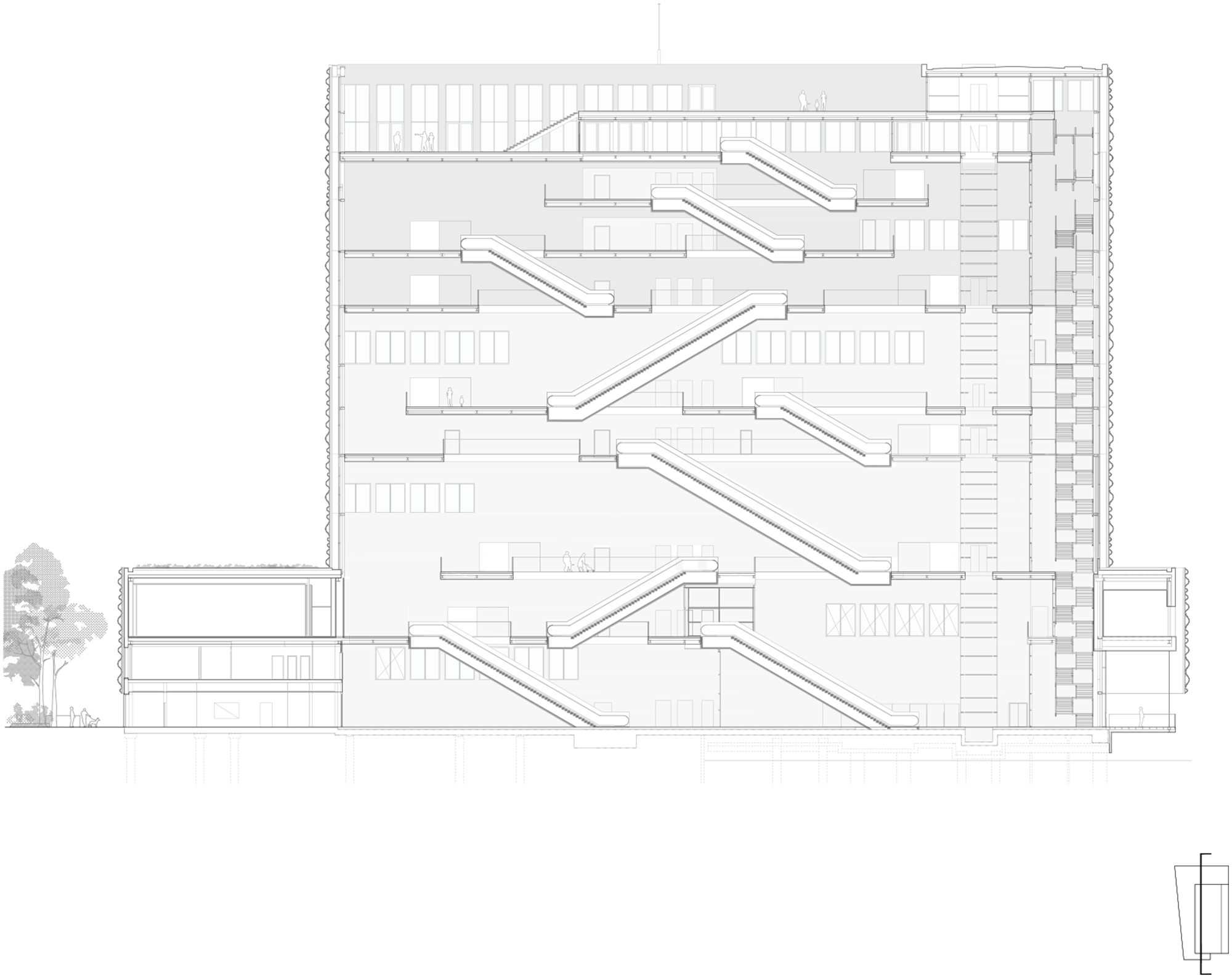
Thirteen Levels of Art: Munch Museum in Oslo
Photo: Adria Goula
Three employees and a Rottweiler instead of an alarm system: for a world-class museum, this would be considered a makeshift staffing solution. However, this is how things looked around 60 years ago, in the early days of the Munch Museum, which was located in Oslo’s Tøyen district. Lack of space, moisture damage and thefts of art arising from glaring security flaws appeared constantly in the history of that museum, which had opened in 1963.
With all this in mind, it is hardly surprising that many Oslofolk eagerly anticipated Estudio Herreros’ new museum building on the banks of Oslo Fjord. For the first time, it would be possible to properly store and display the immense inventory of 28,000 pieces bequeathed by Munch to the City of Oslo at his death in 1940.
Along with the recently opened Deichman Library and Opera House, the towering new structure takes its position in a trio of significant cultural buildings that stand in the district of Bjørvika, which over the past 15 years has transformed from a harbour area into a neighbourhood devoted to residential structures, offices and culture. In 2009, the Madrid architects won the international competition to design and plan both the museum as well as the urban quarter directly to the north of it. Ground was not broken until 2015, after long political discussions and a three-year stop to planning work. However, the building has now been completed inside and out; it is slated to open this year.


















