20.01.2017 Jakob Schoof

25 Quadratmeter Unabhängigkeit: Minimalhaus »Koda« von Kodasema

Vorgefertigte Raumzellen können viele Formen annehmen - von den „mobile homes“ in den USA bis zu den modularen Flüchtlingsunterkünften, die in den letzten Monaten in Deutschland entstanden sind. In den seltensten Fällen werden sie jedoch heute noch aus Beton gefertigt. Der massive Baustoff gilt als zu unflexibel und zu schwer; dem Holzbau scheint die Zukunft zu gehören.

Dass Holz und Beton auch gemeinsam eine gute Figur machen und funktionale Vorteile besitzen, zeigt das estnische Büro Kodasema mit seinem Hausprototypen „Koda“. Der 25,8 m2 große Modulbau soll, wenn er im kommenden Jahr in Serie geht, in einer Wohnausstattung für 2 Personen, als Gruppenbüro für 3-4 Mitarbeiter oder als Minimalklassenzimmer für 12-16 Schüler erhältlich sein.

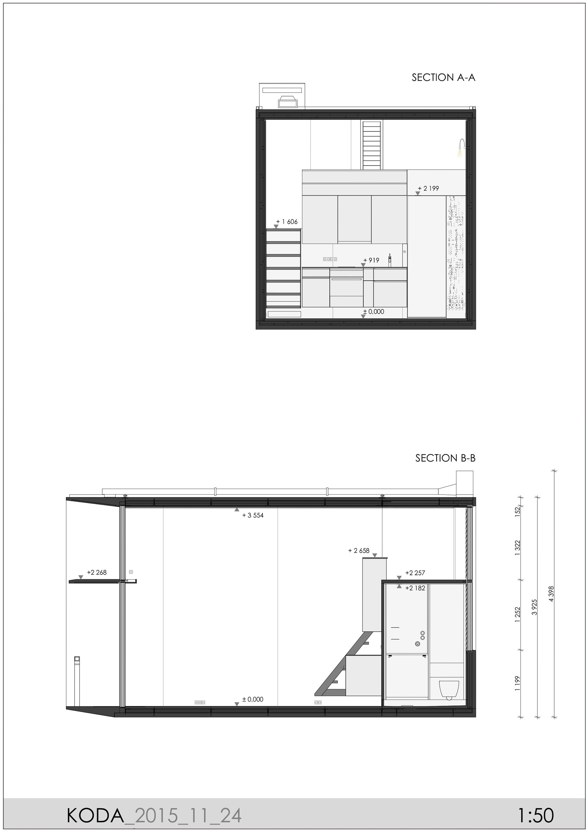
Geradezu zerbrechlich wirkt der Kubus auf den ersten Blick. In den nur 178 mm starken Außenwänden verbirgt sich modernste Materialtechnologie. Von innen nach außen bestehen sie aus einer Brettsperrholztafel, 60 mm starken Vakuumdämmpaneelen und einem ebenso dicken Fertigteil aus faserverstärktem Beton. Die Betonschalung ließen die Architekten mit alten Bootssegeln auslegen, die dem Material buchstäblich ihren Stempel – einschließlich aller Säume, Falten und Nähte – aufprägten.

Mit 3,93 Metern Außenbreite lassen sich die Module am Stück per Tieflader zum Bauplatz transportieren. Sie können aber auch innerhalb von 4-7 Stunden in handlichere Einzelteile zerlegt werden, sodass Koda prinzipiell immer wieder umziehen kann. Als einen möglichen Verwendungszweck haben die Architekten Zwischennutzungen noch zu bebauender Flächen ausgemacht: Bei größeren Stadtentwicklungsprojekten vergehen zwischen Planungsbeginn und erstem Spatenstich oft Jahre, während derer die Module schon einmal als Studentenwohnheim, Schulpavillon oder Interimsbüro zur Verfügung stehen können.

An zeitgemäßer Effizienztechnologie haben die Architekten nicht gespart: Die Außenwände kommen auf einen U-Wert von 0,1 W/m2K; die Eingangsfront ist vierfach verglast und erreicht einen U-Wert von 0,33 W/m2K. Zur Standardausstattung gehören eine Be- und Entlüftung mit Enthalpiewärmetauscher sowie eine reversible Wärmepumpe für die Heizung und Kühlung. Selbst die Abwasserleitung ist mit einem Wärmetauscher ausgestattet, sodass die Abwärme aus dem Duschwasser zur Trinkwassererwärmung genutzt werden kann. Mit Solarmodulen auf dem Dach soll das Haus in der Jahresbilanz energieneutral werden. Ein Netzanschluss ist dennoch erforderlich, weil Koda keinen Batteriespeicher besitzt.

Die auskragenden Seitenwände und das Dach sowie ein Brise-Soleil  auf Höhe des Türsturzes schützen die Eingangsfront vor zu viel Sonne im Sommer. Im rückwärtigen Bereich des Containerbaus ließen die Architekten eine Schlafempore einziehen. Darunter befindet sich ein kleines Bad, davor eine voll ausgestattete Küchenzeile. Koda ist mithin „plug-and-play“-geeignet – ein wichtiges Kriterium für Bauherren, die es eilig haben.
https://detail-cdn.s3.eu-central-1.amazonaws.com/media/catalog/product/K/o/Kodasema-Koda-teaser-735.jpg?width=437&height=582&store=de_de&image-type=image https://detail-cdn.s3.eu-central-1.amazonaws.com/media/catalog/product/K/o/Kodasema-Koda-teaser-1500.jpg?width=437&height=582&store=de_de&image-type=image https://detail-cdn.s3.eu-central-1.amazonaws.com/media/catalog/product/K/o/Kodasema-Koda-1.jpg?width=437&height=582&store=de_de&image-type=image https://detail-cdn.s3.eu-central-1.amazonaws.com/media/catalog/product/K/o/Kodasema-Koda-2.jpg?width=437&height=582&store=de_de&image-type=image https://detail-cdn.s3.eu-central-1.amazonaws.com/media/catalog/product/K/o/Kodasema-Koda-3.jpg?width=437&height=582&store=de_de&image-type=image https://detail-cdn.s3.eu-central-1.amazonaws.com/media/catalog/product/K/o/Kodasema-Koda-4.jpg?width=437&height=582&store=de_de&image-type=image https://detail-cdn.s3.eu-central-1.amazonaws.com/media/catalog/product/K/o/Kodasema-Koda-5.jpg?width=437&height=582&store=de_de&image-type=image https://detail-cdn.s3.eu-central-1.amazonaws.com/media/catalog/product/K/o/Kodasema-Koda-6.jpg?width=437&height=582&store=de_de&image-type=image https://detail-cdn.s3.eu-central-1.amazonaws.com/media/catalog/product/K/o/Kodasema-Koda-7.jpg?width=437&height=582&store=de_de&image-type=image https://detail-cdn.s3.eu-central-1.amazonaws.com/media/catalog/product/K/o/Kodasema-Koda-8.jpg?width=437&height=582&store=de_de&image-type=image https://detail-cdn.s3.eu-central-1.amazonaws.com/media/catalog/product/K/o/Kodasema-Koda-9.jpg?width=437&height=582&store=de_de&image-type=image https://detail-cdn.s3.eu-central-1.amazonaws.com/media/catalog/product/K/o/Kodasema-Koda-10.jpg?width=437&height=582&store=de_de&image-type=image https://detail-cdn.s3.eu-central-1.amazonaws.com/media/catalog/product/K/o/Kodasema-Koda-11.jpg?width=437&height=582&store=de_de&image-type=image https://detail-cdn.s3.eu-central-1.amazonaws.com/media/catalog/product/K/o/Kodasema-Koda-12.jpg?width=437&height=582&store=de_de&image-type=image https://detail-cdn.s3.eu-central-1.amazonaws.com/media/catalog/product/K/o/Kodasema-Koda-13.jpg?width=437&height=582&store=de_de&image-type=image https://detail-cdn.s3.eu-central-1.amazonaws.com/media/catalog/product/K/o/Kodasema-Koda-14.jpg?width=437&height=582&store=de_de&image-type=image https://detail-cdn.s3.eu-central-1.amazonaws.com/media/catalog/product/K/o/Kodasema-Koda-15.jpg?width=437&height=582&store=de_de&image-type=image https://detail-cdn.s3.eu-central-1.amazonaws.com/media/catalog/product/K/o/Kodasema-Koda-16.jpg?width=437&height=582&store=de_de&image-type=image https://detail-cdn.s3.eu-central-1.amazonaws.com/media/catalog/product/K/o/Kodasema-Koda-17.jpg?width=437&height=582&store=de_de&image-type=image https://detail-cdn.s3.eu-central-1.amazonaws.com/media/catalog/product/K/o/Kodasema-Koda-18.jpg?width=437&height=582&store=de_de&image-type=image https://detail-cdn.s3.eu-central-1.amazonaws.com/media/catalog/product/K/o/Kodasema-Koda-19.jpg?width=437&height=582&store=de_de&image-type=image https://detail-cdn.s3.eu-central-1.amazonaws.com/media/catalog/product/K/o/Kodasema-Koda-20.jpg?width=437&height=582&store=de_de&image-type=image
Copyright © 2024 DETAIL. Alle Rechte vorbehalten.