Akropolis für Berlins Mitte: James-Simon-Galerie auf der Museumsinsel
Foto: Jakob Schoof
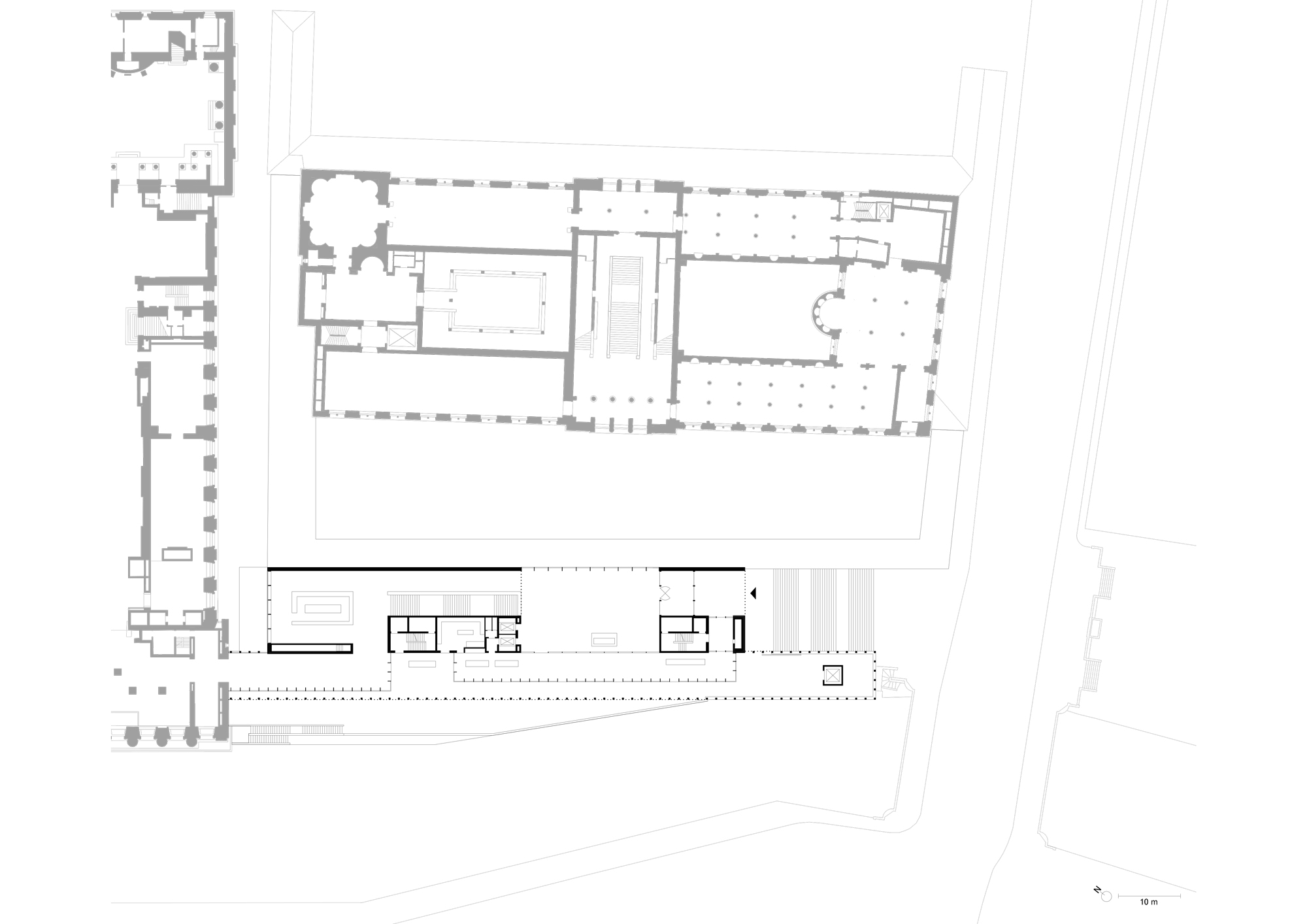
Noch sind die Bauarbeiten in vollem Gang, werden die letzten Betonfertigteile des Kolonnadenhofs auf die Pfeiler gesetzt und mit Beton vergossen. Die James-Simon-Galerie, deren Namensgeber im 19. Jahrhundert als Kunstmäzen archäologische Expeditionen finanziert hatte und als seinen bekanntesten Fund die Büste der Nofretete den Museen Staatlicher Preußischer Kulturbesitz (seinerzeit: Kaiser-Friedrich-Museum) stiftete, bildet den Schlussstein in der Entwicklung eines der größten Museumsareale der Welt. Durch die gestufte Verteilung des beträchtlichen Bauvolumens gelingt es den Architekten, gleichzeitig eine Landmarke zu schaffen, die weit in den Stadtraum zur Schlossbrücke hin ausstrahlt, und andererseits die Museumsinsel zur Stadt zu öffnen und die Besucher über die breite Freitreppe 9,50 m nach oben zum neuen Eingang in den Seitenflügel des Pergamonmuseums zu ziehen. Die bisherigen Eingänge zum Pergamonmuseum, Bodemuseum, Neuen Museum und der Alten Nationalgalerie bleiben bestehen, zusätzlich sind diese vier Museen über eine Enfilade von Ausstellungsräumen im Untergeschoss, die Archäologische Promenade, mit der James-Simon-Galerie verbunden. Nur die Alte Nationalgalerie von Friedrich August Stüler bleibt isoliert von dieser funktionalen Vernetzung der Erschließung.
Der Neubau von David Chipperfield Architects Berlin wirkt eigenständig, ist aber durch die Gestaltung seiner architektonischen Elemente, die Materialisierung und Farbgebung sowie die räumlichen Bezüge zu den Nachbarbauten eng mit dem Kontext verwoben: Auf Straßenebene verlängern die Architekten die überdachte Pfeilerreihe des Kolonnadenhofs nördlich des Neuen Museums auf seine Südseite und schaffen hier einen zweiten kleineren Kolonnadenhof, der die bisher unzugängliche Rückseite des Museums in Szene setzt. Von dem neuen Hof aus sind das untere von zwei Foyers der James-Simon-Galerie und das Auditorium im Untergeschoss unabhängig zugänglich.
Die Attraktion für alteingesessene Berliner und Touristen wird aber die Plattform in 9,50 m Höhe sein. Sie ermöglicht bisher nicht erlebbare Perspektiven auf die Berliner Mitte, über die Freitreppe hinweg zum Humboldtforum mit der Kuppel des Stadtschlosses oder nach Süden zur Schlossbrücke.
Bei allen historischen Bezügen ist die Architektur zeitgemäß und schlicht, nimmt sich mit ihrer sachlichen Sprache trotz großer Geste hinter den klassizistischen und historistischen Nachbarbauten zurück. Der archaische, steinerne Ausdruck ist der sorgfältigen Detailplanung und Materialkenntnis zu verdanken. Konstruktion und Oberflächen sind – mit Ausnahme der Natursteinböden – aus Beton gegossen. Neben Sichtbetonoberflächen aus Ortbeton prägen scharfkantige großformatige Fertigteile aus Betonwerkstein die Architektur. Hochwertige Zuschläge aus grobkörnigem weißem Marmorsplitt und sandgestrahlte Oberflächen orientieren sich an den Betonfertigteilen des Neuen Museums, das 2009 von David Chipperfields Architects fertiggestellt wurde. Im Gegensatz zu den warmen Sandtönen im Neuen Museum sind die Betonoberflächen der James-Simon-Galerie jedoch in neutralem Perlgrau gehalten, um mit der ebenfalls neutralgrauen Natursteinfassade des Pergamonmuseums eine homogene Kante zum Kupfergraben zu bilden.
Weitere Informationen zu dem Projekt finden Sie unter:
www.davidchipperfield.com
www.museumsinsel-berlin.de
www.bbr.bund.de



































