Behutsamer Eingriff in eine über 100-jährige Tradition: Schiffshütte von Buero Wagner
Foto: Buero Wagner
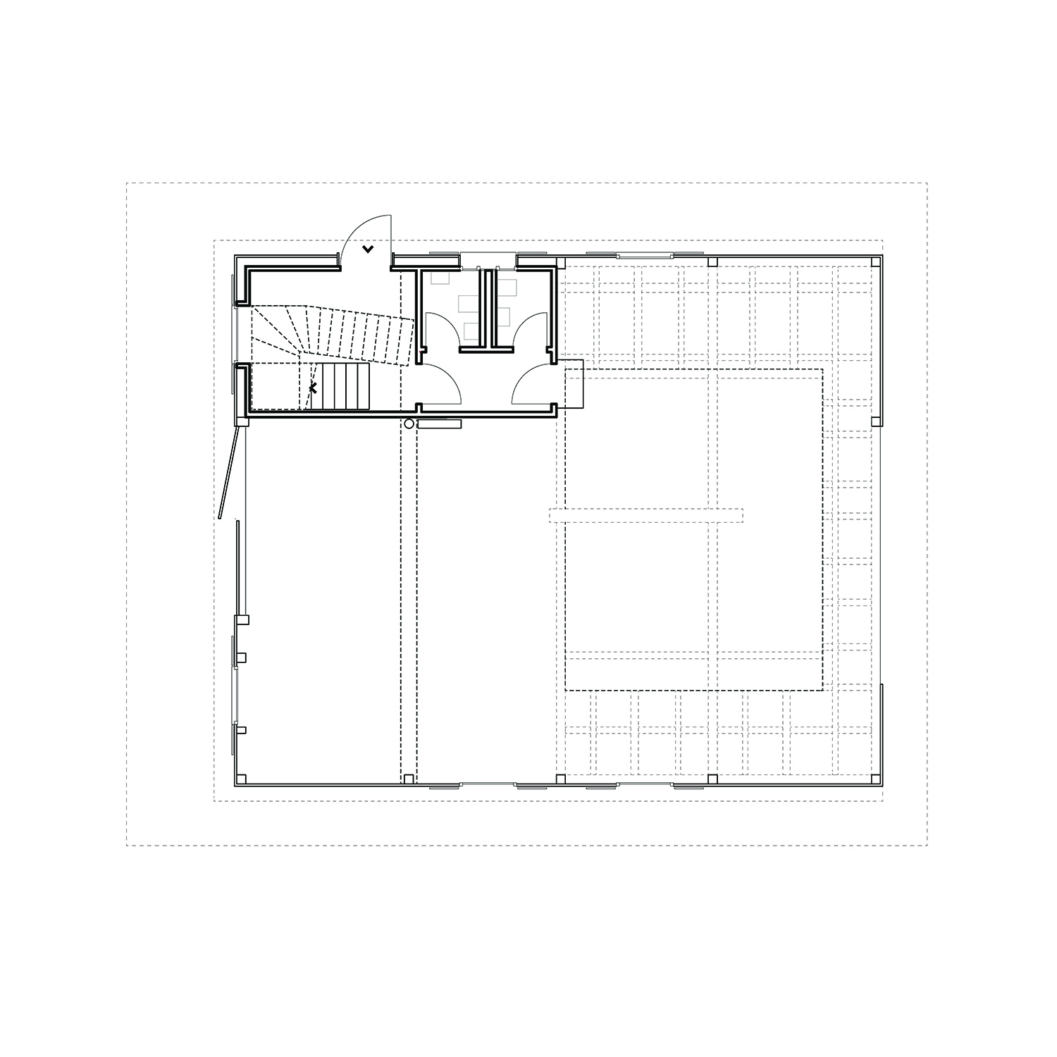
Wären da nicht die Bootsschienen, die vom Ufer über die Uttinger Seepromenade bis ins Gebäude führen, könnte man die urige Schiffshütte auch für ein bayerisches Bauernhaus halten. Das Clubhaus zeigt sich als leicht verschnörkelter Holzbau mit hohem Satteldach, einigen Fenstern, einem großen Flügeltor für die Boote und einem kleinen Balkon. Dahinter lässt sich der Umbau durch das Buero Wagner nur erahnen. Denn anstatt eines Neubaus wurde der Bestand auf den Originalzustand rückgebaut. Anschließend wurden die neuen Schulungsräume gekonnt in das erste Obergeschoss integriert.
Somit ist die Schiffshütte wieder in ihrer ursprünglichen Struktur erlebbar: ein einziger, hoher Raum mit historischem Dachstuhl und eine fast umlaufende Galerie. Ein Großteil dient weiterhin als Bootshaus und Segellager. Die Volumina, die Buero Wagner einfügten, befinden sich auf der dem See zugewandten Seite. Sie ergänzen den Bestand sehr spannungsvoll, ohne dabei den Raumeindruck der Halle als Ganzes zu stören. Eine schwarze Box neben dem Eingang enthält die Toiletten sowie die halbgewendelte Stahltreppe, die zum Schulungsraum im Dachstuhl führt. Dieser wird durch eine deckenhohe Profilglaswand zum Innenraum abgetrennt und ist im Bedarfsfall mit Hilfe einer hölzernen Faltwand teilbar. Der Balkon kann weiterhin durch die Originaltüren betreten werden, die wie die Fenster neue Rahmen erhielten. So werden die Nachwuchssegler im passenden Kontext ausgebildet: mit Blick auf das Segellager auf der einen und auf den Ammersee auf der anderen Seite.
Auch das Materialkonzept soll die historische Konstruktion würdigen sowie die Anpassung an zukünftige Anforderungen ermöglichen. Buero Wagner verwendeten nachwachsende, wiederverwertbare Rohstoffe und verzichteten auf chemische Nachbehandlung. Die Nutzungserweiterungen wurden sämtlich mit heller Seekiefer bekleidet. Die Eingriffe sind dadurch deutlich als solche gekennzeichnet, treten jedoch in ihrer Schlichtheit respektvoll zurück. Alles in allem beweisen Buero Wagner in Utting ihren gekonnten Umgang mit einem derart außergewöhnlichen Ort.
Weitere Informationen:
Team: Fabian A. Wagner Architekt BDA, Sophia Eun Joo Pfeiffer, Maxi Wagner
Bauleitung: Dipl. - Ing. Edwin Hoffmann
Tragwerksplanung: Ingenieurbüro Karl Wagner, Breitbrunn am Ammersee (DE)
Haustechnik: WS Ingenieure, Augsburg (DE)
Brandschutzplanung: IB Lichtenberg, Grafrath (DE)
Holzbauarbeiten: Gebrüder Meier, Affing (DE)












