Das Atrium als Gartenersatz
Internal Landscape Villa in Nový Jičín
Foto: BoysPlayNice
Ein solches Luxusproblem haben Architekten und ihre Bauherren nicht oft: Zwei Grundstücke hätten für das Wohnhaus in Nový Jičín, ganz im Osten Tschechiens, zur Auswahl gestanden, berichtet Architekt Marek Štěpán, „und dieses war eindeutig besser“. Besser passend zum extrovertierten Charakter des Auftraggebers, dessen Firma Verkaufsautomaten für Getränke und Snacks vertreibt, und überdies näher am Sitz des Unternehmens gelegen.
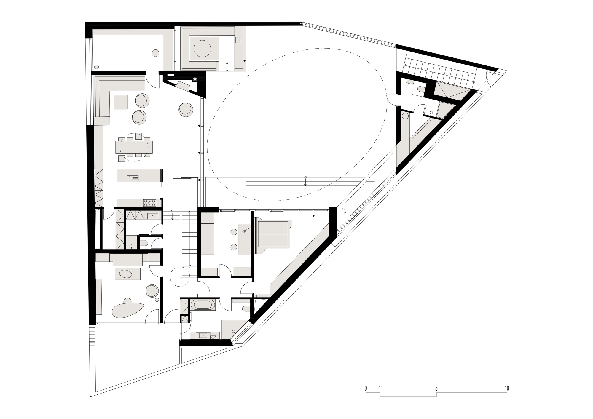
Der Neubau liegt an einer Einfallstraße in Zentrumsnähe auf einem gut 500 m2 großen, trapezförmigen Grundstück. Zu klein für ein freistehendes Haus mit Garten, entschied Štěpán nach einigem Herumprobieren mit L-förmigen und quadratischen Baukörpern. Stattdessen füllt das Haus die Parzelle nun fast vollständig aus und umschließt einen elliptischen Innenhof mit Rasenfläche. Da das Terrain leicht nach Norden abfällt, hat es zwei Eingänge: von Norden ins Untergeschoss mit Garage, das aus wasserundurchlässigem Sichtbeton erstellt und größtenteils ins Gelände eingegraben wurde. Und von Südwesten hinauf in den Innenhof und von dort weiter in die Wohnräume auf der oberen Ebene. Letztere besteht im Wesentlichen aus Brettsperrholzelementen, die im Gebäudeinneren sichtbar blieben.
Natürlich haben die beiden Etagen auch eine innere Verbindung – genauer: eine klar definierte Erschließungsspange, die im Süden an einem effektvoll inszenierten Holzkamin endet. Tageslicht strömt von oben durch drei kreisrunde Lichtkuppeln ins Haus – allen voran in den offenen Wohn- und Essbereich, der sich zum Hof öffnet. Der Trakt mit den Schlafzimmern am Nordende des Hauses liegt nochmals um ein paar Treppenstufen höher und öffnet sich zu einer Terrasse über der Garage.
Das Haus ist zwar introvertiert, schottet sich aber nicht komplett gegen seine Umgebung ab. Immer wieder durchbrechen halboffene Lamellenverkleidungen rund um den Innenhof die mit Robinienholz verschalten Obergeschossfassaden. Auch als Terrassenbelag rund um den Hof wählte Štěpán Robinienholz; die Fußböden im Inneren bestehen teils aus Sichtbeton und teils aus Eichenholz. Der elfjährigen Tochter des Architekten scheint es gefallen zu haben: Als sie das Haus zum ersten Mal sah, beschloss sie spontan, drei Tage lang als Gast beim Bauherrn zu bleiben, berichtet Štěpán.
Weitere Informationen:
Bauunternehmer: Tomáš Straub
Grundstücksfläche: 505 m²
Bebaute Fläche: 330 m²
Nutzungsfläche: 351 m²





























