Neuanfang trotz Denkmalschutz
Wohnhausumbau in Cuneo
Foto: Beppe Giardino
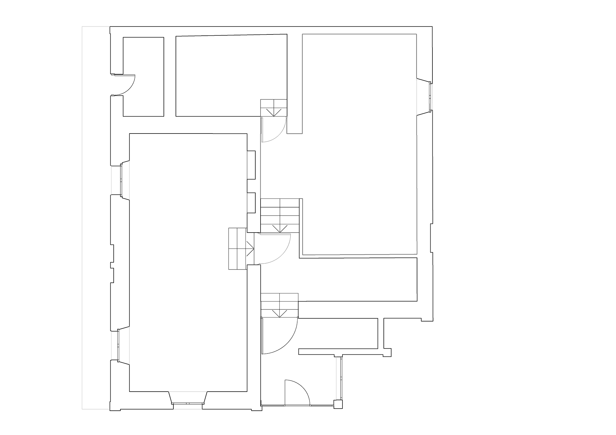
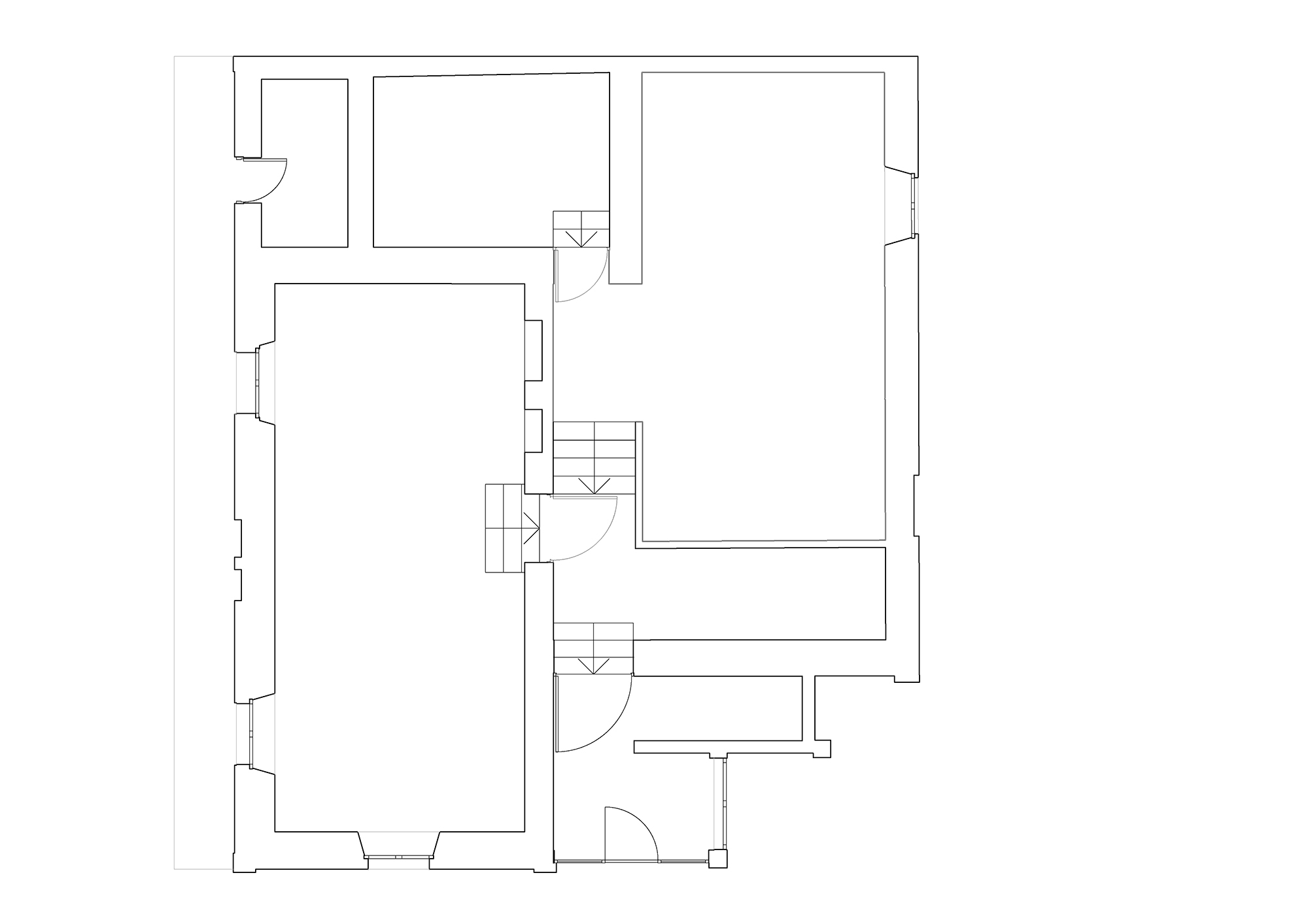
In den ersten Jahrzehnten des 20. Jahrhunderts errichteten die italienischen Staatsbahnen überall im Land Wohnhäuser für ihre Angestellten. Auch in der Via Luzzati in Cuneo südwestlich von Turin entstand damals ein Ensemble dieser „case dei ferrovieri“: Häuser mit L-förmigem Grundriss, flachem Walmdach und einem einzigen, über eine ungewöhnlich hohe Außentreppe und eine kleine Veranda erreichbaren Wohngeschoss. Das Dach war nicht ausgebaut; der Keller musste aufgrund des hoch gelegenen Eingangsniveaus nur hüfthoch ins Erdreich eingegraben werden, was Baukosten sparte und Feuchtigkeitsprobleme reduzierte.
Eines dieser Häuser hat das Turiner Büro Balance Architettura nun gründlich modernisiert, die denkmalgeschützte Außenhülle dabei jedoch weitgehend unverändert gelassen. Um drei Schlafzimmer, Wohnraum, Küche und zwei Bäder in dem Bauvolumen unterzubringen, wurde der Dachraum geöffnet, der zuvor nur per Leiter über eine Luke erreichbar war. Eine offene Treppe verbindet nun den Wohnraum mit einer kleinen Galerie und dem großen Elternschlafzimmer auf der oberen Ebene. Die Außenwände wurden von innen 10 cm dick gedämmt. Den Holzdachstuhl wollten die Architekten jedoch unbedingt sichtbar erhalten, sodass sie auf ihrer Oberseite einen neuen, gedämmten Dachaufbau ergänzten.
Das Materialkonzept für die Innenräume macht Raum- und Zeitschichten gleichermaßen ablesbar. Die alten Ziegelwände wurden an vielen Stellen nur gestrichen oder erhielten eine dünne Schlämme. Ihre neuen Pendants wurden verputzt, aber nicht gestrichen. Die Regale und Schränke bestehen größtenteils aus Birkensperrholz; ebenso das Podest der Treppe ins Obergeschoss. Darüber setzt sich der Treppenlauf als filigrane, weiß lackierte Lochblechstruktur fort und geht ganz oben schließlich in eine weiß gestrichene Holzkonstruktion über.
Grundsätzlich, so erläutert Alberto Lessan von Balance Architettura, müssten die Projekte des Büros auch ohne Farbanstrich „leben“. Ob Farbe als Differenzierungsmerkmal erforderlich ist, entscheiden die Architekten erst ganz zum Schluss der Entwurfsphase. So auch in diesem Fall: Um das traditionelle Aussehen der Innenräume weiter zurückzunehmen und ihnen einen zeitgenössischeren Charakter zu geben, beschlossen sie, Dachstuhl und Dachinnenfläche in einem dunklen Grau und die Trennwand im Obergeschoss, die das Haus längs durchläuft, samt Zimmertür in einem hellen Türkiston streichen zu lassen.
Mehr dazu in Detail 1/2.2022 und in unserer Datenbank Detail Inspiration.





























