Eins draufgesetzt: Bellevue di Monaco von Hirner & Riehl Architekten
Foto: Frank Schroth
Initiative und Kulturzentrum
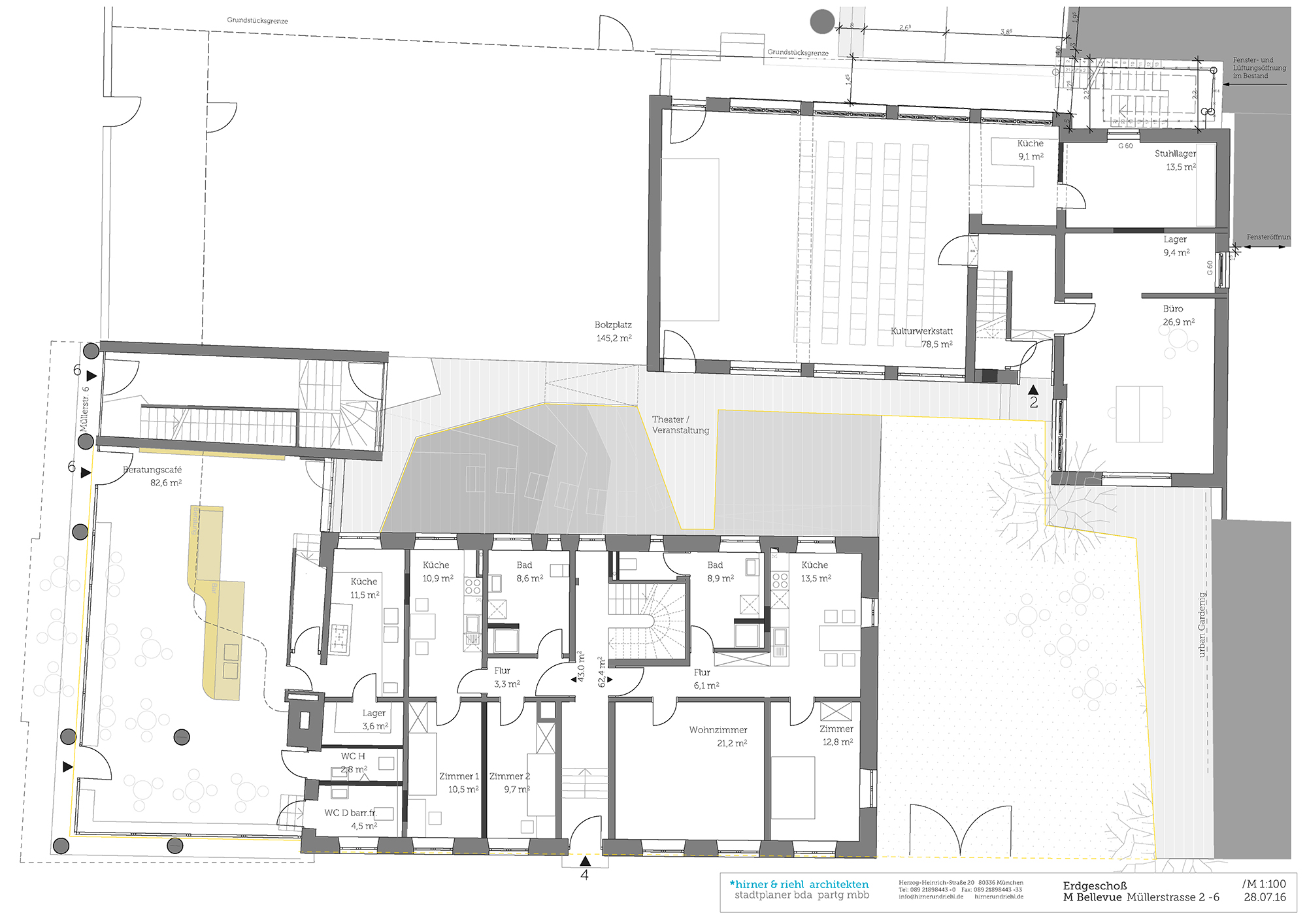
Das Bellevue di Monaco ist eine wunderbare Geschichte über die Macht guter Ideen. Heute gehört es einer Sozialgenossenschaft, die das Wohnhaus und zwei Nachbargebäude in Erbpacht von der Stadt München übernahm und eigenständig renovierte. Dahinter stehen viele Engagierte. Einer von ihnen: Matthias Marschner von Hirner & Riehl Architekten, der sich drei Jahre lang „zentimeterweise durch das Haus“ arbeitete, Fenster und Installationen erneuerte und ein Gegenmodell zum renditeoptimierten Wohnen der Nachbarschaft schuf. Das Bellevue wurde Kulturzentrum mit Café im Erdgeschoss sowie preiswerten Wohnungen. Über ein Dutzend Gruppen und Vereine bieten Hilfe: Asyl-, Arbeitsmarktberatung, Deutschkurse und Hausaufgabenhilfe. Ein Vorzeigeprojekt gelingender Integration, bekannt weit über die Grenzen von München hinaus.
Aktionismus und Gemeinschaftssinn
2012 hatte alles begonnen, und zwar mit einem drohenden Abriss. Um ihren Bolzplatz hinter der Glockenbachwerkstatt und die Häuser ringsherum zu retten, besetzten Münchner Künstler einfach eine leerstehende Wohnung und zeigten, wie einfach sie zu sanieren wäre. Die Guerilla-Aktion brachte viel Aufmerksamkeit. Ja Sympathie. Sie zeigt die absurde Seite deutscher Gründlichkeit. Warum stehen städtische Wohnungen erst lange leer und werden anschließend für viel Geld abgerissen und durch moderne Sozialbauten ersetzt?
Auch Architekt Marschner begehrte auf. „Wenn es 15 Jahre dauert, um ein Haus sanft zu entmieten und danach neuen sozialen Wohnungsbau zu schaffen, läuft etwas falsch.“ Zusammen mit vielen Helfer*innen und Matthias Weinzierl und Till Hoffmann vom Verein Bellevue di Monaco wurde deutlich, dass selbst im Zentrum von München mehr möglich ist: Wohnungen für Flüchtlinge, Begegnungs- und Kulturangebote. Renovierung statt Abbruch und Neubau. Gemeinschaft statt Segregation.
Mit Blick über die Innenstadt
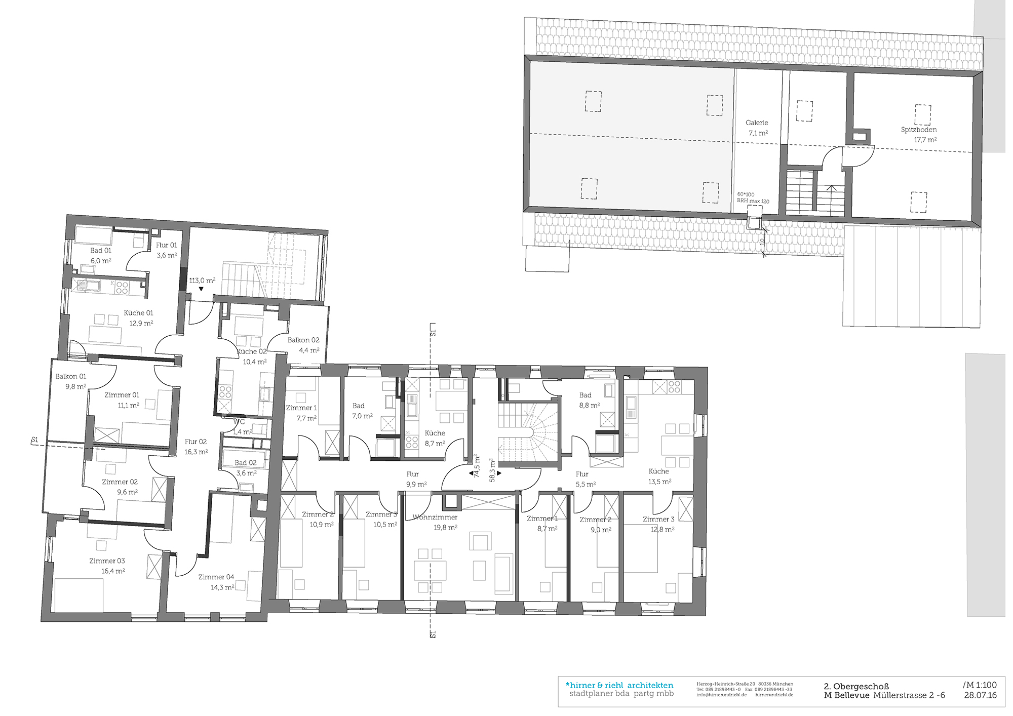
Nun haben die Macherinnen und Macher noch etwas draufgesetzt: Münchens wohl höchsten Bolzplatz mit Blick auf Alten Peter und die Dächer des Gärtnerplatzviertels. Nur eine Grenze gibt es: Höchstens 20 Spieler*innen dürfen– nach der Online-Reservierung – den Blick über München genießen. Schön, dass selbst in einer so saturierten Stadt noch etwas geht. Wenn frau/man sich eben etwas traut.
Über das Projekt berichten wir in Detail 6.2021.
Eine ausführliche Print-Dokumentation finden Sie in unserer Ausgabe DETAIL 6/2021 mit dem Themenschwerpunkt “xxxx“.

















