// Check if the article Layout ?>
Geschichtsträchtiger Kern: Haus Neiling II in Hoppenrade
Foto: Peter Grundmann
Einfamilienhäuser und weite landwirtschaftliche Flächen prägen das Bild der norddeutschen Gemeinde. Diese Faktoren bestimmen auch das Baugrundstück auf dem »Haus Neiling II« steht. Von westlicher Richtung her erschlossen, geht es im Norden in die Siedlungsstruktur über. Nach Ost und Süd findet man die unverbaute Landschaft vor. Ein alter Stall aus Backstein, Relikt aus vergangenen Tagen, ist zentral auf dem Grundstück positioniert.
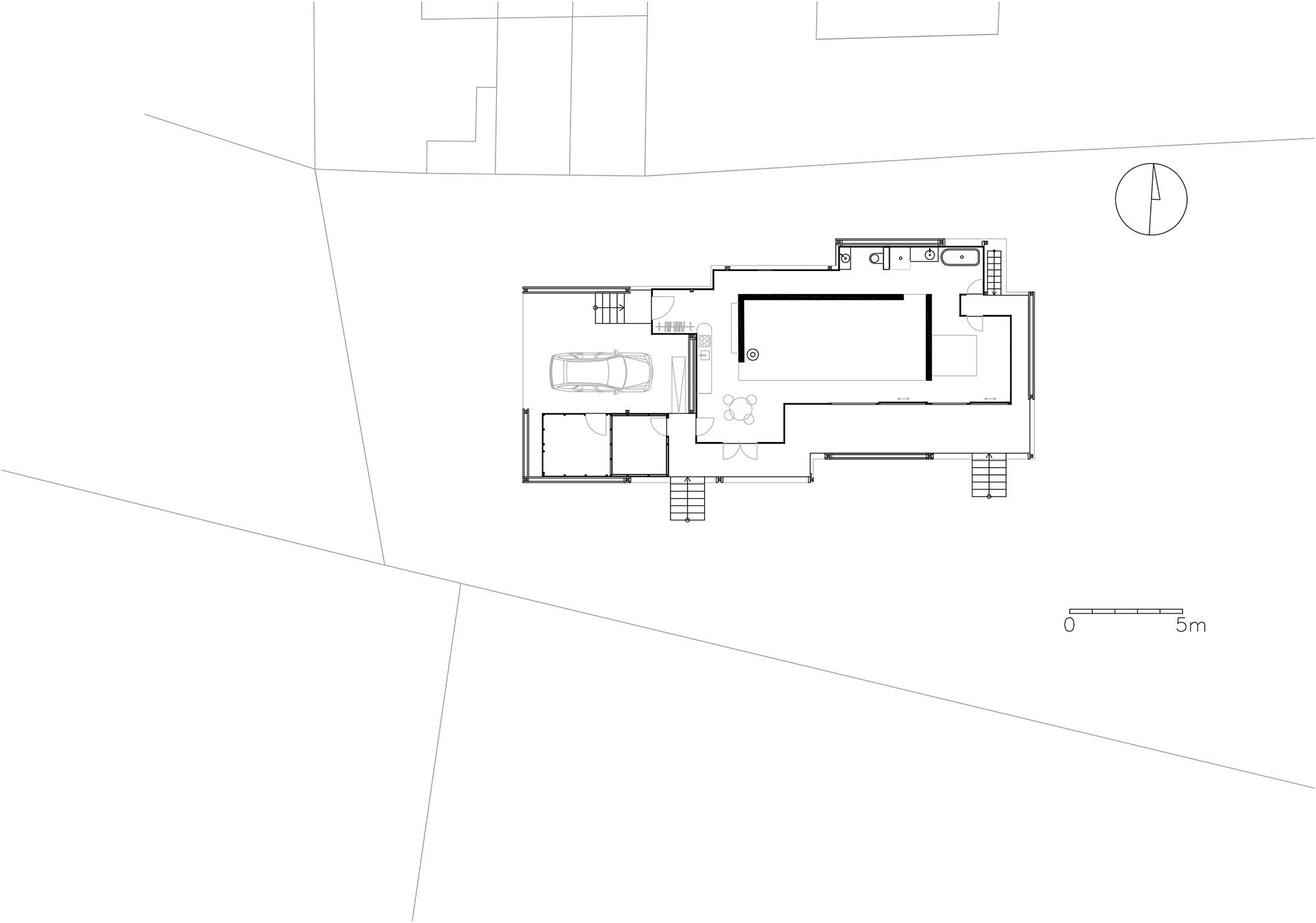
Dieser Stall bildet das Herzstück des Neubaus. Er spannt einen rechteckigen Grundriss auf. Inmitten dieser rauen Mauern findet der zentrale Wohnbereich seinen Platz. Rund um den Wohnkern organisieren sich sämtliche Funktionsbereiche: Nassräume nördlich, Schlafzimmer östlich, Kochen und Essen in Richtung Eingang, also im Westen. Nach Süden hin geht das Wohnzimmer direkt in eine großzügige Terrasse über, die massive Wand fehlt hier. Ein zweiter Kubus am südwestlichen Eck beinhaltet die Hauswirtschaftsräume.
Der Neubau erinnert auf den ersten Blick an einen Pfahlbau. Da die Bodenplatte um 1,3 Meter angehoben ist, scheint sich das Haus von der kargen Landschaft zu distanzieren. Die unverkleideten Backsteinwände im Zentrum werden durch eine leichte Holzkonstruktion und modulare Glasflächen als Fassade ergänzt. So entsteht ein leichter Gesamteindruck. Großzügige Terrassenflächen verleihen dem Bau zusätzliche Nutzflächen. Sie sind aufgrund der Kongruenz von Bodenplatte und Flachdach überdacht. Mehrere Treppen verbinden das Haus mit dem Grund. Je nach Betrachtungswinkel zeigt es ein anderes Gesicht – Fassade und Dachflächen überlagern sich und definieren die Außengrenzen immer wieder neu.
Den Innenraum prägen vor allem die roten Backsteine. Dazu fügen sich das Grau des Estrichbodens und eine Holzdecke. Alles ist sehr offen, fast loftähnlich gestaltet. Die umlaufenden raumhohen Fensterflächen sorgen für eine lichtdurchflutete Atmosphäre. Auf Einbauten verzichtet man komplett. Die spärlichen Einrichtungsgegenstände wirken, als könne man sie jederzeit neu arrangieren.
Durch die Kombination von Alt und Neu bietet sich ein Wechselspiel an Massivität und Transparenz. Die alten Mauern strahlen Wärme aus und harmonieren perfekt mit dem leichten, reduzierten Neubau.




















