Hölzerne Segmentbögen: Kita von se/arch in Lahr
Foto: Zooey Braun
In städtebaulicher Hinsicht war es den Architekten ein Anliegen, eine Geste des Miteinanders zu formulieren. Daher fügt sich der flache, aber großflächige Baukörper in seine Umgebung ein: Er konkurriert nicht mit benachbarten Typologien, sondern bildet eine Überleitung von der Natur zur Architektur.
Typologie und Charakter
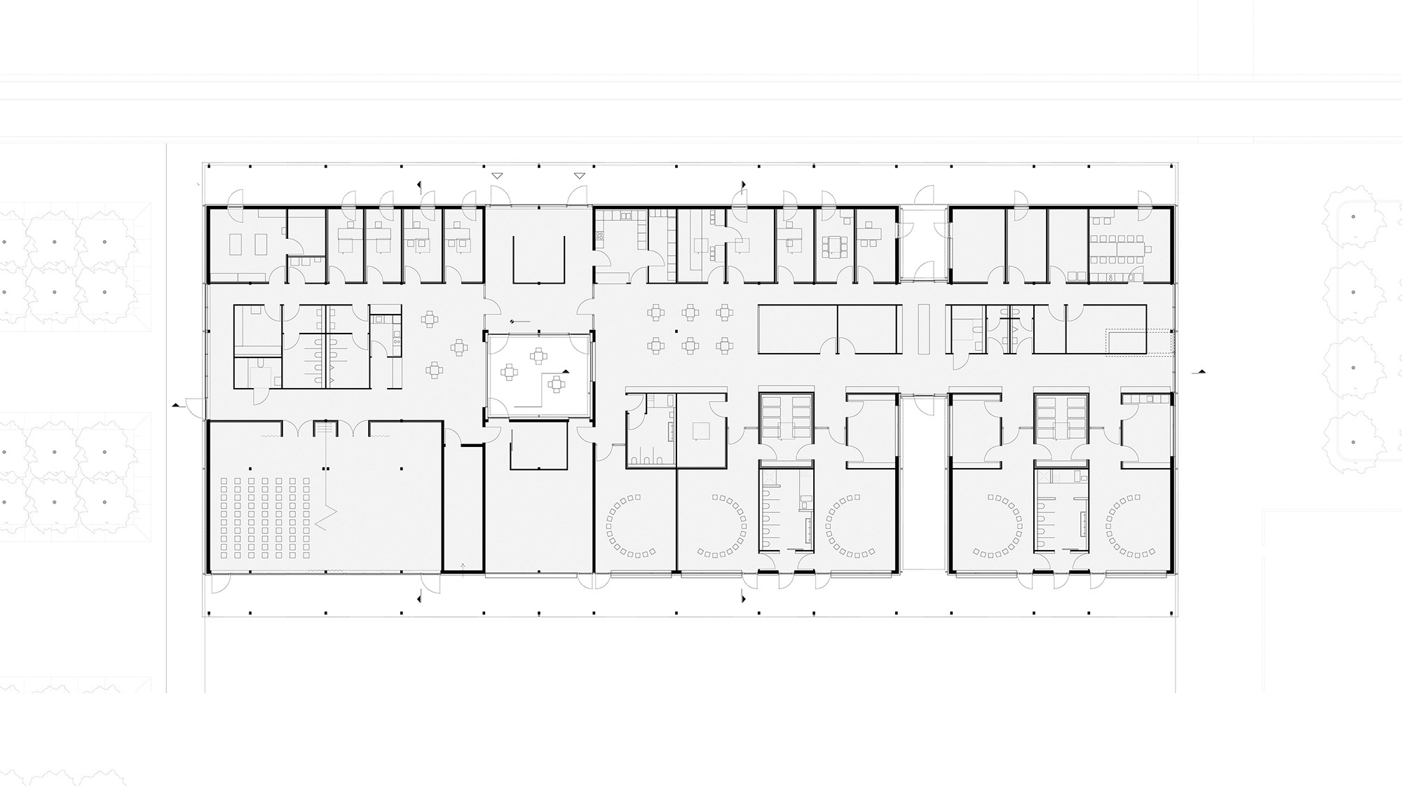
Durch die aneinandergereihten Segmentbogendächer ergibt sich eine Struktur mit hallenähnlichem Charakter. So entsteht ein geschützter Raum, der frei bespielbar ist.
An den Längsseiten flankieren lange Galerien das Gebäude. Hier informiert eine Ausstellungswand die Besucher über das nahgelegene Streifenhaus, einem originalgetreuen Nachbau eines römischen Reihenhauses. Gleichzeitig ist der Bereich eine Übergangszone zwischen Innen und Außen und leitet direkt über in den Eingangsbereich.
Atmosphäre im Innenraum
Innerhalb der großzügigen Halle sitzen die Räume wie eingestellte Boxen auf einem übergeordneten Raster. Offene Flächen ziehen sich durchs ganze Gebäude und ermöglichen so einen hohen Grad an Helligkeit. Zusätzlich durchbricht ein Atrium den Innenraum und sorgt so für noch mehr Tageslicht.
Die verwendeten Materialien bestimmen maßgeblich das Raumgefühl: Zwischen der Konstruktion aus Leimholzträgern verlaufen vorgefertigte Holzrippenelemente in Segmentbogenform und definieren so die Tonnengewölbe. Alle Innenwände sind mit Lehmbauplatten verkleidet, was sich positiv auf das Raumklima auswirkt.
Abgesehen von der Verwendung natürlicher und nachwachsender Baustoffe standen weitere ökologische und baubiologische Aspekte im Fokus: So sind außerdem die Dächer extensiv begrünt und alle Materialien bei späterer Entsorgung einfach voneinander trennbar.












