// Check if the article Layout ?>
Mikroarchitektur trifft Natur pur: Sauna in Norwegen
Foto: NTNU Norwegian University of Science and Technology
Eldmølla ist das Resultat eines Studentenprojekts unter dem Thema Typology/Topology/Tectonics, das gemeinsam mit den Professoren an der NTNU in Norwegen entstand. Die Umsetzung der Mikroarchitektur erstreckte sich von einer viermonatigen Design- und Entwurfsphase bis hin zur zweiwöchigen Ausführung vor Ort.
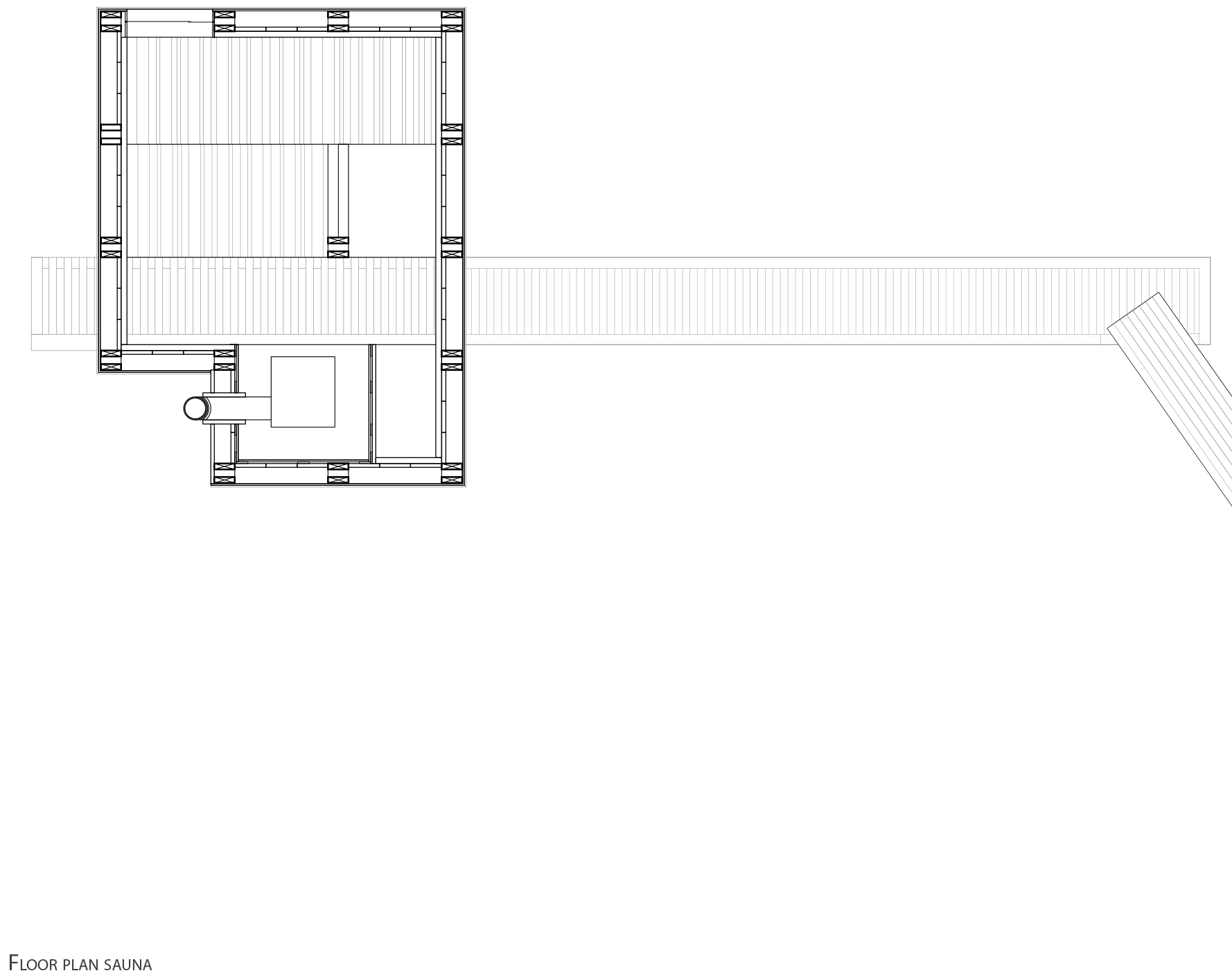
Der Holzkubus umfasst gerade einmal fünf m2 Grundfläche und 4,5 m Höhe. Inspiriert vom Typus eines Mühlhauses organisiert sich das Programm der Minimalsauna rund um einen Gebirgsbach. Dieser wird in die Architektur miteinbezogen und zum zentralen Entwurfselement.
Eldmølla ist komplett in Fichtenholz ausgeführt. Die Konstruktion wird gleichzeitig zum gestalterischen Element. Formal setzt sich die Sauna aus zwei Teilen zusammen: dem Zugang und dem Hauptvolumen. Zum Kubus gelangt man über eine kleine Brücke. Diese dient aber nicht nur der Überbrückung des Wasserfalls, sondern stellt mit einem zweischichtigen Aufbau gleichzeitig die Wasserzufuhr der Sauna dar. Während oben die Besucher gehen, fließt darunter der Bach. So entsteht eine subtile Verbindung von Natur und Architektur.
Die Sauna selbst gliedert sich in einen oberen und einen unteren Bereich. Beide sind, bedingt durch ihre Funktionen und die damit verbundenen Ansprüche, sehr unterschiedlich. Besonders deutlich wird diese Dualität in der Fassadengestaltung. Während die untere Ebene teilweise offen und in vertikaler Holzlattung umgesetzt ist, hebt sich der obere Teil ab. Er tritt wesentlich geschlossener und kompakter in Erscheinung und korrespondiert durch horizontale Latten mit der Brücke.
Im unteren Niveau befindet sich der Umkleidebereich der Sauna. Die Brücke setzt sich hier hangseitig als schmaler Gang, bis an die gegenüberliegende Außenwand fort, wo sie in einer Öffnung mit Ausblick in die Natur endet. Das über die Brücke ins Innere geleitete Wasser sammelt sich in einem Becken und kann zur Abkühlung und für Saunaaufgüsse verwendet werden. Der Wechsel zwischen Transparenz und Geschlossenheit in der Außenhülle ermöglicht immer wieder Blickbezüge nach draußen. Der gesamte Raum wirkt offen und betont die energetische Interaktion mit der Umgebung.
Eine Leiter führt weiter in die darüberliegende Ebene, wo sich die eigentliche Sauna befindet. Sie besteht nur aus dem Saunaofen und Sitzbänken. Der zweischichtige Fassadenaufbau garantiert die optimale Raumtemperierung in diesem Bereich. Um diesen Effekt möglichst wenig zu stören, gibt es hier nur wenige, gezielt gesetzte kleine Öffnungen in der Außenhülle.
Weitere Informationen:
Kursleiter: August Schmidt, Arnstein Gilberg, Ina Samdal
Studierende: Julie Allémann, Ana Baía, Quentin Desveaux, Roger Escorihuela, Rahel Haas, Anastasiia Ignatova, Feliks Ulvåen Isaksen, Agathe Ledoux, Louis Meny, Sebastià Mercadal, Adrienne Michels, Thuy Nguyen, Pierre-Louis Passard, Kristinn Pálsson, Benoît Perrier, Benedikt Profanter, Pedro Simões, Ninni Westerholm
Studierende: Julie Allémann, Ana Baía, Quentin Desveaux, Roger Escorihuela, Rahel Haas, Anastasiia Ignatova, Feliks Ulvåen Isaksen, Agathe Ledoux, Louis Meny, Sebastià Mercadal, Adrienne Michels, Thuy Nguyen, Pierre-Louis Passard, Kristinn Pálsson, Benoît Perrier, Benedikt Profanter, Pedro Simões, Ninni Westerholm

















