// Check if the article Layout ?>
Mobiliar bildet Raum: Bürogestaltung in Shanghai
Foto: Dirk Weiblen
Der Elektroautohersteller NextEv hat das Büro Linehouse beauftragt, einen neuen Büroraum für seine Tochterfirma NIO zu entwerfen. Wunsch des Kunden war es, vielfältige Formen der Zusammenarbeit möglich zu machen. Die verschiedenen am Design der Autos beteiligten Abteilungen sollten in Zukunft unkompliziert miteinander arbeiten können.
Der Entwurf von Linehouse besteht aus einer sich windenden Wand, die in den bestehenden Raum eingebaut wurde. Doch es handelt sich vielmehr um ein mäanderndes Möbelstück, das gleichzeitig Räume fasst und alle notwendigen Funktionen aufnimmt.
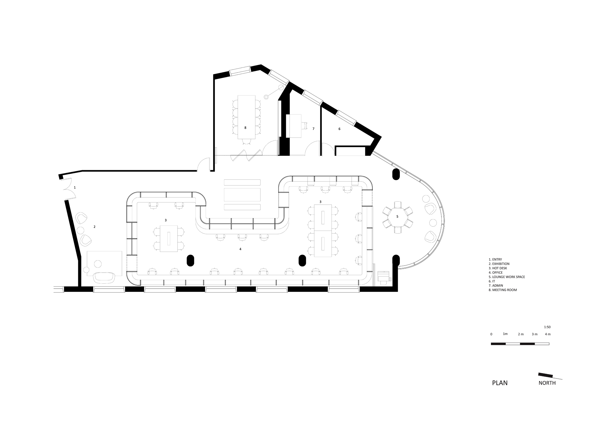
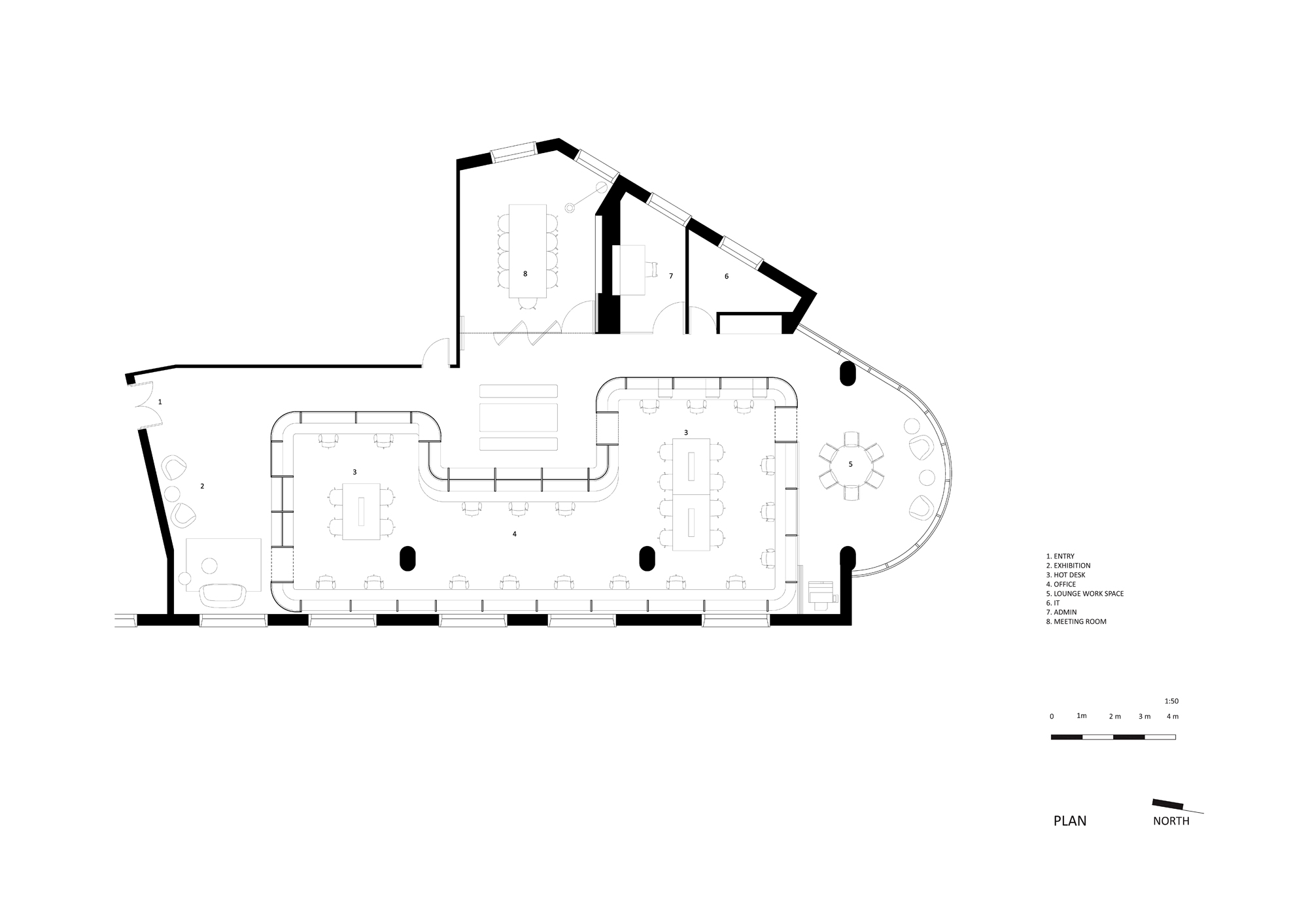
Gleich am Eingang der Büroräume, wird der Besucher von einer kleinen Ausstellung empfangen. Die Außenseite der Wand wird hier zur Ausstellungsfläche. Es bildet sich außerdem ein Raum, der komplett von der Struktur gefasst wird. In diesem umschlossenen Bereich können bis zu 20 Personen an Schreibtischen arbeiten, die in die Wand eingebaut sind. Für konzentrierte Einzelarbeit richtet sich der Blick so nach außen. An zwei Stellen weitet sich der umschlossene Raum jedoch. Dort sind Austausch und Meetings an großen, freistehenden Tischen möglich. Neben dem Ausstellungsraum am Eingang bilden sich außerhalb der Wand noch eine Lounge, ein abgeschlossener Meetingraum und ein zentraler Besprechungstisch, der das Herzstück des Bürolebens ist.
Die komplette Struktur ist aus Eichenholz gefertigt und mutet wie ein endloses Regal mit vier Ebenen an. Eine Glashaut überzieht es mal außen, mal innen, je nach Nutzung der Regalfläche. Im unteren Bereich ist das Glas opak, was für Privatsphäre an den Arbeitsplätzen sorgt. Nach oben hin verblasst die Ätzung, das Glas wird transparent und lässt Tageslicht in alle Bereiche fallen. Durch die Kombination der großzügigen Aufteilung in nur vier Regalebenen mit der zarten, gläsernen Haut und abgerundeten Ecken erhält das Wandmöbel eine klare Leichtigkeit. Dieser Eindruck wird zusätzlich unterstützt von eingebauten Lichtleisten mit Messingverkleidung.
Durch die Gestaltung jedes einzelnen Details, von den Deckenlampen bis zum Fußboden, von der Kabelführung bis zum ergänzenden Mobiliar, entstehen durch und durch stimmige Büroräume, die genau auf den Kunden zugeschnitten sind.









