// Check if the article Layout ?>
Modular und monochrom: Wohnheim in Heilbronn
Foto: Joos Keller
An einer vielbefahrenen Straße am Rande Heilbronns, zwischen Autohäusern, Tankstellen und sanierungsbedürftigen Einfamilienhäusern, befindet sich das Baugrundstück, welches für die Umsetzung dieses Wohnungsbauprojekts gewählt wurde. Über drei Geschosse stapeln sich 23 modulare Mikro-Wohneinheiten in dem L-förmigen Gebäude, dessen schwarze Fassade einen starken Kontrast zur bunten, überladenen Umgebung herstellt. Jede Wohneinheit wird von außen über einen Laubengang erschlossen. Dieser dient zum einen als Verschattung, zum anderen lädt er gerade im Sommer mit seiner Süd-West-Orientierung zur Nutzung als Gemeinschaftsfläche ein.
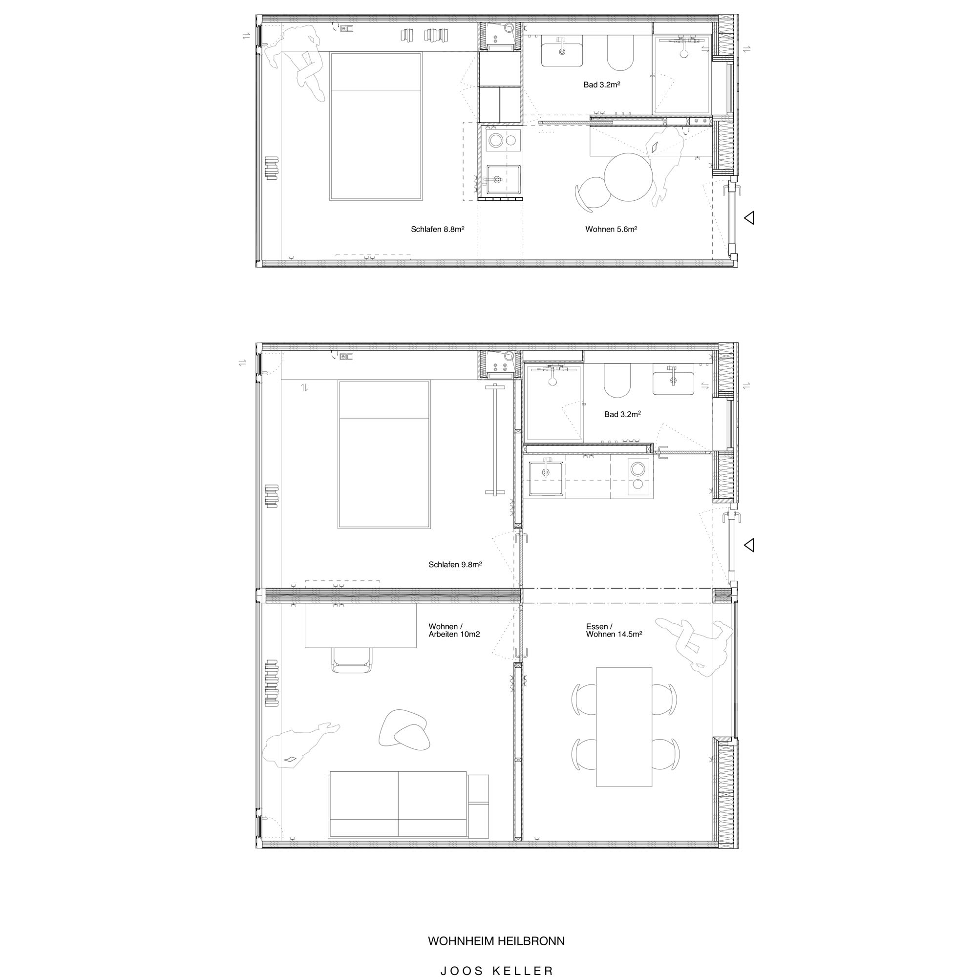
Eine Wohneinheit umfasst entweder ein Einzelmodul mit 17,5 m2 oder ein Doppelmodul mit 35 m2. Der Innenraum wird durch raumtrennende Einbauten gegliedert, welche Stauraum bieten und Sicherungskästen sowie Heizkreisverteiler unterbringen.
Energieeffizienz und Material
Die Module wurden in Holzbauweise vorgefertigt, was zu kürzeren Bauzeiten und höherer Kosteneffizienz führt. Die Fassade ist mit großformatigen, schwarz lasierten Dreischichtplatten verkleidet, welche unempfindlich gegenüber Umwelteinflüssen sind. Am Laubengang schaffen Stahl-Vollroste eine stabile Absturzsicherung und lassen dank ihrer Transparenz ausreichend Tageslicht über die großzügigen, fassadenbündig eingebauten Fenster in die Wohneinheiten.
Das Konstruktionsholz bleibt im Innenraum sichtbar und wird dort mit einem Linoleumboden sowie hochwertigen Edelstahl- und Schichtstoffoberflächen kombiniert. Die Materialwahl im Innenraum sorgt trotz der geringen Wohnfläche für eine angenehm wohnliche und großzügige Atmosphäre.
Das Haus ist auf eine weitgehende Selbstversorgung mit erneuerbaren Energien ausgerichtet.
Eine Photovoltaikanlage erzeugt Strom und speichert ihn in der Hausbatterie. Gleichzeitig wird der erzeugte Strom zur Wassererwärmung genutzt. Alle Wohneinheiten verfügen über eine Fußbodenheizung und dezentrale Wohnraumlüftungsanlagen mit Wärmerückgewinnung. Mit diesen Maßnahmen und dank der guten bauphysikalischen Werte der Holzkonstruktion konnte der KFW-55-Standard erreicht werden.
Eine Wohneinheit umfasst entweder ein Einzelmodul mit 17,5 m2 oder ein Doppelmodul mit 35 m2. Der Innenraum wird durch raumtrennende Einbauten gegliedert, welche Stauraum bieten und Sicherungskästen sowie Heizkreisverteiler unterbringen.
Energieeffizienz und Material
Die Module wurden in Holzbauweise vorgefertigt, was zu kürzeren Bauzeiten und höherer Kosteneffizienz führt. Die Fassade ist mit großformatigen, schwarz lasierten Dreischichtplatten verkleidet, welche unempfindlich gegenüber Umwelteinflüssen sind. Am Laubengang schaffen Stahl-Vollroste eine stabile Absturzsicherung und lassen dank ihrer Transparenz ausreichend Tageslicht über die großzügigen, fassadenbündig eingebauten Fenster in die Wohneinheiten.
Das Konstruktionsholz bleibt im Innenraum sichtbar und wird dort mit einem Linoleumboden sowie hochwertigen Edelstahl- und Schichtstoffoberflächen kombiniert. Die Materialwahl im Innenraum sorgt trotz der geringen Wohnfläche für eine angenehm wohnliche und großzügige Atmosphäre.
Das Haus ist auf eine weitgehende Selbstversorgung mit erneuerbaren Energien ausgerichtet.
Eine Photovoltaikanlage erzeugt Strom und speichert ihn in der Hausbatterie. Gleichzeitig wird der erzeugte Strom zur Wassererwärmung genutzt. Alle Wohneinheiten verfügen über eine Fußbodenheizung und dezentrale Wohnraumlüftungsanlagen mit Wärmerückgewinnung. Mit diesen Maßnahmen und dank der guten bauphysikalischen Werte der Holzkonstruktion konnte der KFW-55-Standard erreicht werden.























