Neuer Bildungscampus in München: Campusmitte von Auer Weber Architekten
Foto: Aldo Amoretti
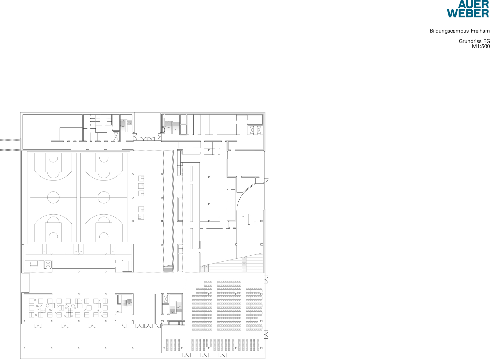
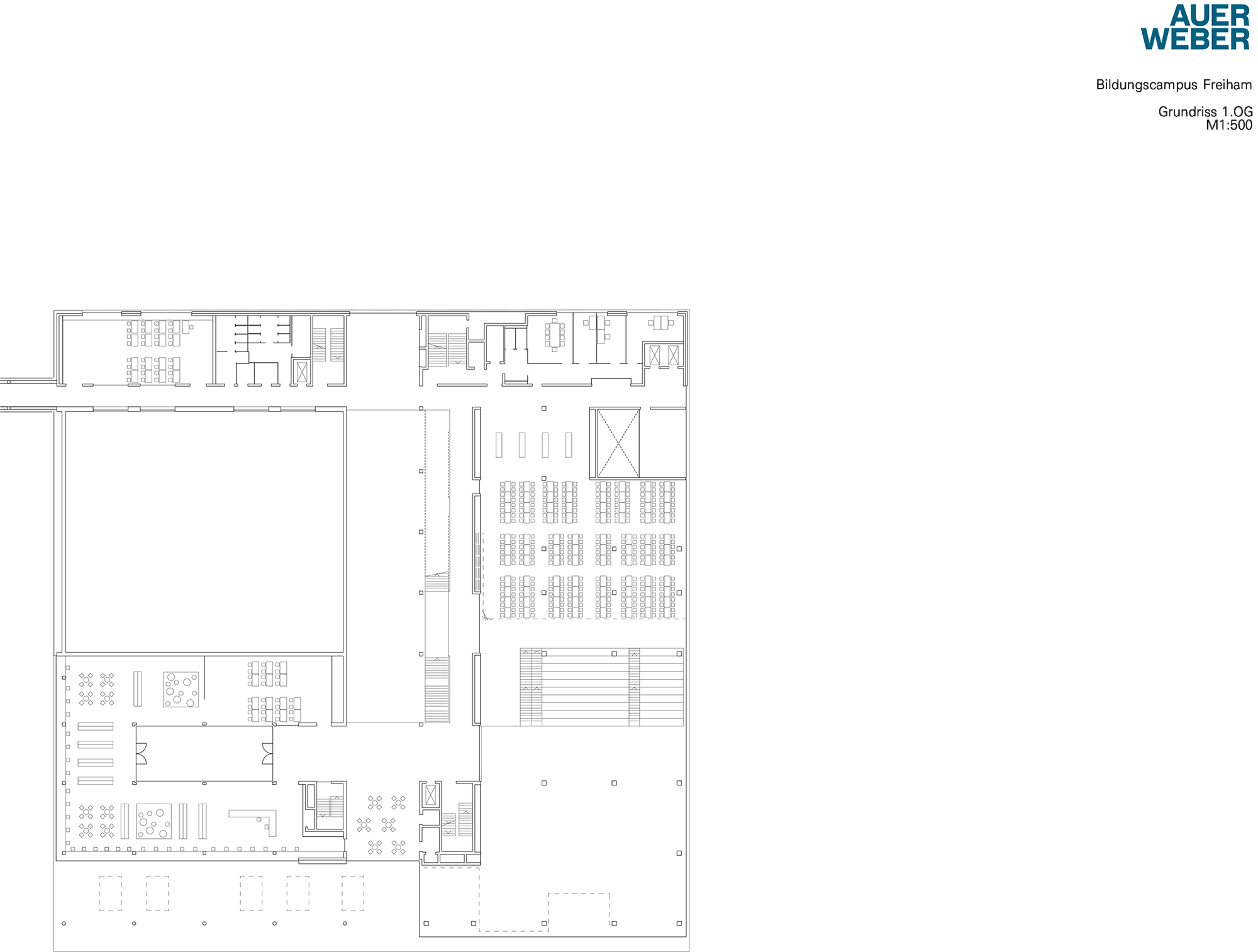
Die neue Campusmitte ist ein wichtiger Baustein des Bildungscampus Freiham.Durch ihre Lage im nordöstlichen Bereich bildet sie sowohl einen funktionalen Schwerpunkt als auch den städtebaulichen Eingang der Schulanlage. Zugleich übernimmt sie die Funktion eines Bindeglieds zwischen schulisch orientiertem und öffentlich genutztem Stadtraum, ähnlich den Innenräumen, die teils für das Schulleben und teils für die Öffentlichkeit bestimmt sind.
Die Campusmitte umfasst Klassenräume für Kreatives Arbeiten, eine Campusbibliothek, eine Zweifachsporthalle sowie eine Mensa- und Veranstaltungsfläche. Die unterschiedlichen Nutzungen sind so angeordnet, dass sie sich wechselseitig überlagern und dadurch den räumlichen Kontext bereichern. Über die „Himmelstreppe“ erreicht man die Eingangsflächen in den Geschossen. Diese Flächen dienen gleichzeitig als Begegnungs- und Aktionsräume.
Die zweigeschossige Mensa ist mit einer großen Sitzstufenanlage verbunden, die neben der schulischen Nutzung auch Veranstaltungen unterschiedlichster Art ermöglicht. Ein übergeordnetes Farbkonzept bestimmt die Materialität und Farbgebung der Campusmitte. Das Zusammenspiel aus ruhigen, hellen und warmtonigen Materialien mit hervorgehobenen Farbflächen, ist Teil dieses Programmes.
An die Bibliothek sowie die Räume für Kunst, Musik, Werken und Textiles Gestalten schließen offene Innenhöfe an, die als Rückzugs - und Werkhöfe genutzt werden können. Eine Verbindungsbrücke im ersten Obergeschoss dient als witterungsgeschützter, barrierefreier Übergang zur westlich gelegenen Grund- und Förderschule.Wie alle Gebäude des Bildungscampus zeigt sich auch die Campusmitte zu den angrenzenden Straßen relativ geschlossen, während sie sich zur ruhigeren, parkähnlichen Landschaft des Campusgeländes über verglaste Fassaden öffnet.





















