Runderneuert: Stadtbibliothek von JKMM in Kirkkonummi
Foto: Marc Goodwin
Der Wandel der Bibliotheken vom begehbaren Büchermagazin zum gesellschaftlichen Treffpunkt und Lernort ist nicht nur ein großstädtisches Phänomen. In der 40.000-Einwohner-Gemeinde Kirkkonummi westlich von Helsinki haben die Architekten JKMM gerade die bestehende Stadtbibliothek aus den 80er-Jahren auf die doppelte Fläche erweitert.4700 Quadratmeter stehen den Bürgern hier nun zum Lesen, Spielen und für Veranstaltungen zur Verfügung.
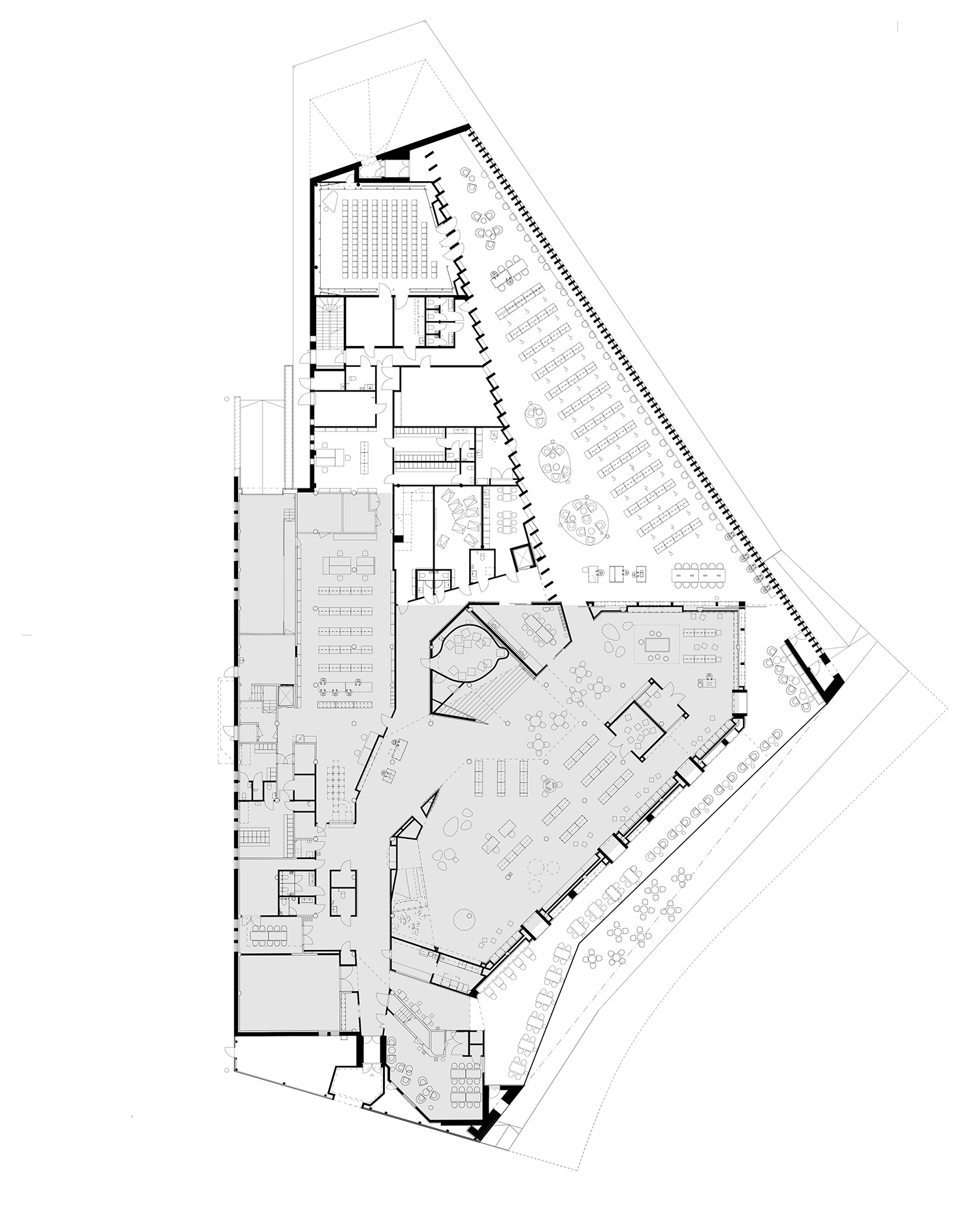
In der Dachaufsicht ist am besten zu sehen, was an dem entstandenen Gebäudekomplex alt ist und was neu: U-förmig umgibt die Erweiterung den Bestand und gibt der Bibliothek ein einheitliches Gesicht gegenüber der um 1500 erbauten mittelalterlichen Kirche des Orts. Schuppenartige Kupferschindeln umhüllen den größten Teil der neuen Süd- und Ostfassaden. Lediglich im Osten erlaubt eine breite, zurückgesetzte Glasfront im Erdgeschoss Einblicke in den Zeitschriftenlesebereich. Der portalartige Haupteingang führt in der fast komplett geschlossenen Südfront ins Haus. Ein anderes, aber artverwandtes Bild bietet der nördliche Anbau mit dem neuen, großen Lesesaal. Dicht an dicht stehen hier die Fassadenstützen. Außen sind sie ebenfalls mit Kupfer verkleidet; innen dagegen bilden sie mit den im gleichen, hellen Farbton gehaltenen Deckenträgern eine diaphan wirkende Raumhülle. Die ebenfalls von JKMM gestaltete Innenarchitektur schreibt die finnische Bibliothekstradition Alvar Aaltos fort. Neben viel weißem Gipskarton setzen hier helles Holz an Wänden und Mobiliar, Polstermöbel mit pastellfarbenen Bezügen und Messingleuchten Akzente.

























