// Check if the article Layout ?>
Rundherum einzigartig: Elizabethan Theatre bei Calais
Foto: Martin Argyroglo
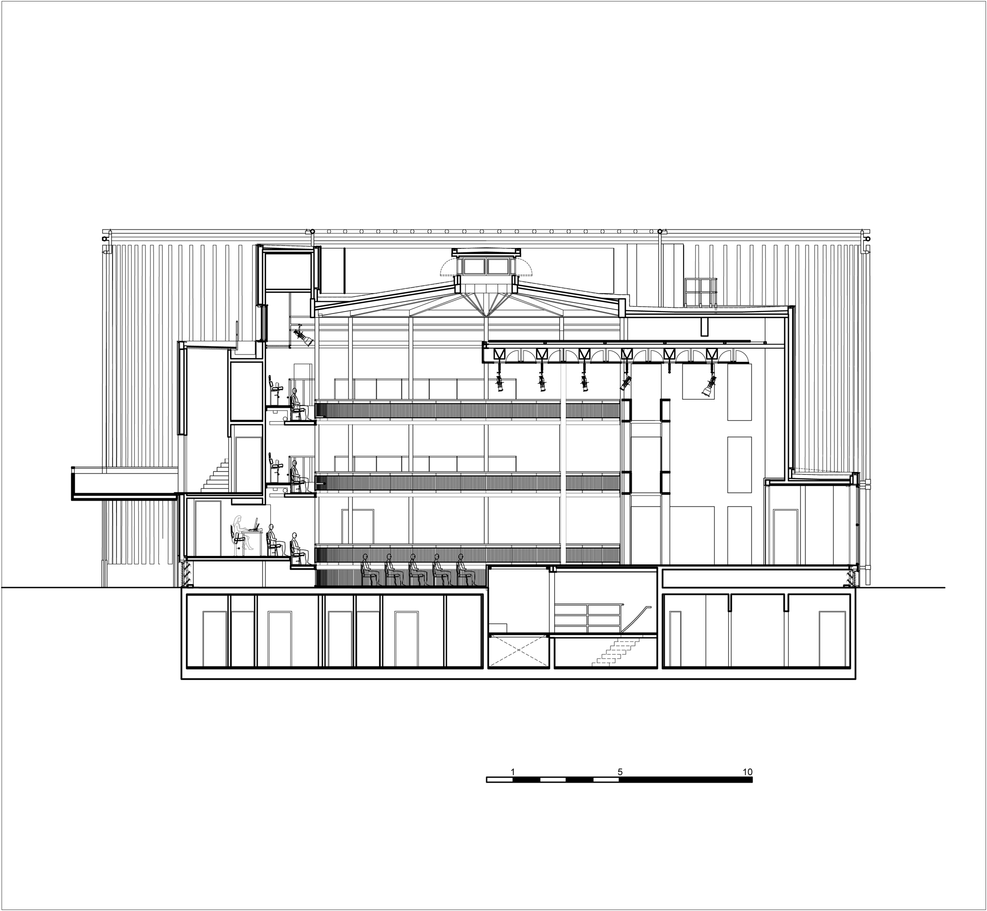
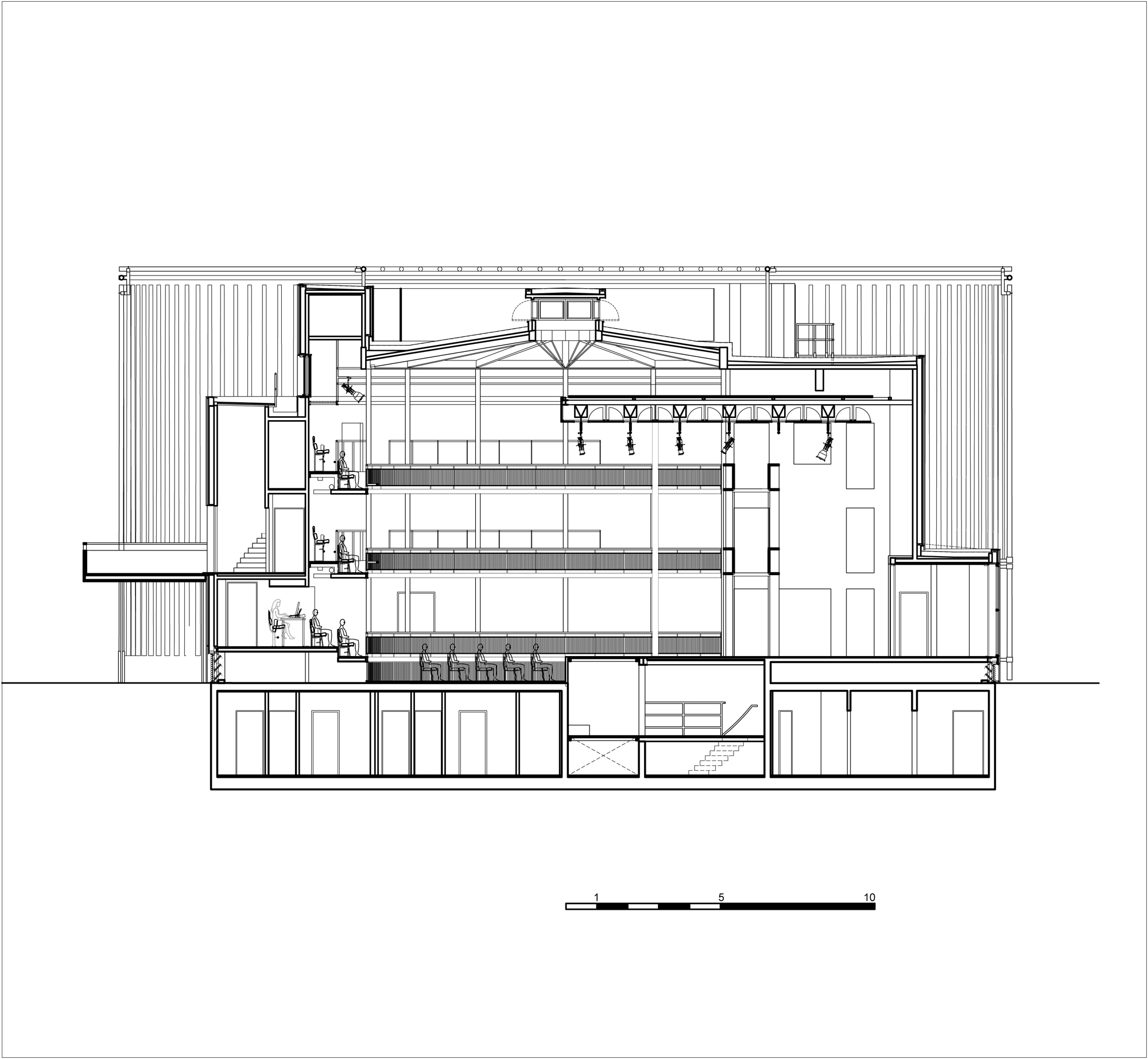
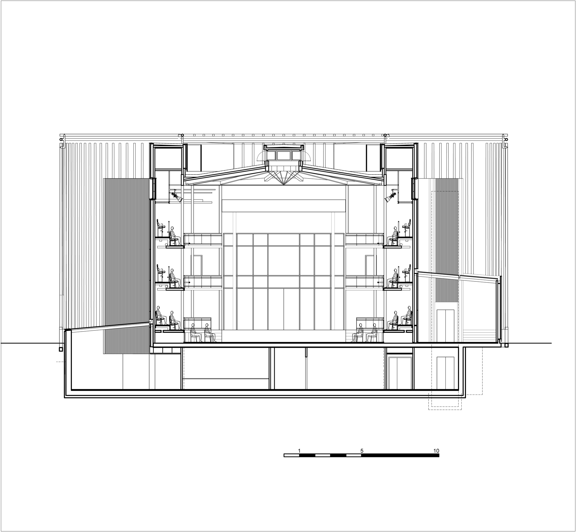
Im Kern befindet sich – mit rechteckig in den Raum ragender Bühne und 388 Sitzplätzen über drei Ebenen verteilt – das komplett überdachte Auditorium. Um das runde Herzstück des Theaters legen sich die Erschließung und weitere Nutzungen wie Blütenblätter um eine Rose: das von oben belichtete Foyer, die Haupttreppe mit Zugang zu den außenliegenden Balkonen und der Garderobenbereich mit Fluchttreppe. Alle Segmente wurden aus vorgebogenen Fichte-Massivholzplatten gefertigt, einer laut Andrew Todd bisher einzigartigen Methode. Über den gesamten Zylinder stülpt sich abschließend ein radial verlaufendes Gerippe aus 12 Meter hohen Bambusstäben, eigens aus Bali importiert. Die Krone des Dachs fungiert als riesiger Kamin, der mit seiner leichten Luftströmung für das gute Klima im Zuschauerraum sorgt. Zusammen mit dem außergewöhnlich niedrigen Energieverbrauch gilt das »Elizabethan Theatre« als Vorreiter für gänzlich natürlich belüftete, kulturelle Einrichtungen in Frankreich.
John Hare, ein inniger Freund des englischen Schriftstellers Charles Dickens, gestaltete im 19. Jahrhundert das Chateau d´Hardelot im Tudorstil um. Seit 2007 beherbergt das Schloss mit seiner 880 Hektar großen Parklandschaft das »Centre Culturel de l´Entente Cordiale«. Zur Stärkung der französischen und britischen Verbindung finden hier regelmäßig Ausstellungen, Konferenzen, Theater- und Musikveranstaltungen statt. Aufgrund des wachsenden Erfolgs des jährlichen Midsummer-Festivals im Garten des Chateau d´Hardelot beschloss das Départemental du Pas-de-Calais einen Architekurwettbewerb für ein ständiges Theater auszuschreiben, den das britische Studio Andrew Todd mit seinem ökologisch sowie historisch bedachten Entwurf für sich gewinnen konnte.
Abgesehen von dem geschlossenen Dach erinnern der runde Grundriss, die hölzerne Verkleidung und der einem Amphitheater-ähnliche Zuschauerraum bewusst an den Rundbau des Elisabethanischen Theaters der Renaissance. In London wurde das Globe Theatre vor allem durch die Wiedereröffnung des »Shakespeare´s Globe« berühmt, in Frankreich dagegen wurden die runden Formen aufgrund der bürgerlichen Hierarchien weitestgehend verbannt. Bereits 2014 wurde das somit einzigartige »Elizabethan Theatre« Queen Elizabeth II anlässlich ihres Staatsbesuches in Frankreich präsentiert und wohlwollend von der Königin abgesegnet.
Das durch die Dauerhaftigkeit, Materialität und Ökobilanz in Frankreich einmalige Elisabethanische Theater ist ein rundherum gelungenes Projekt für respektvolles Zusammenkommen und kulturellen Länderaustausch.
Weitere Informationen:
Fertiggestellt: Mai 2016
Mitarbeiter: Andrew Todd, Niclas Dünnebacke, Philip Mellor-Ribet, Solveig Rottier, Nadia Raïs
Ingenieurbüro: LM Ingénieur
Theaterdienstleister: Charcoalblue
Brandschutz: Cabinet Casso
Landschaftarchitektur: L + A
Kostenkalkulator: Bureau Michel Forgue
CGI: Morph Fotograf: Martin Argyroglo
Mitarbeiter: Andrew Todd, Niclas Dünnebacke, Philip Mellor-Ribet, Solveig Rottier, Nadia Raïs
Ingenieurbüro: LM Ingénieur
Theaterdienstleister: Charcoalblue
Brandschutz: Cabinet Casso
Landschaftarchitektur: L + A
Kostenkalkulator: Bureau Michel Forgue
CGI: Morph Fotograf: Martin Argyroglo






























