// Check if the article Layout ?>
Schatten am Ortseingang: Wohnhaus in Nöttingen
Foto: Stephan Baumann
Nöttingen ist ein 2500-Einwohner-Ort etwa in der Mitte zwischen Karlsruhe und Pforzheim. Ihre „90 minutes of fame“ erlebte die Gemeinde, als der ortsansässige Fußballklub im August 2015 im DFB-Pokal gegen Bayern München spielte – und 1:3 unterlag. Das Ortsbild gleicht dem vieler anderer badischer Straßendörfer aufs Haar: Giebelständige, zumeist ältere und vergleichsweise dicht stehende Einzelhäuser säumen die Hauptstraße. Entlang der restlichen Straßen im Ort erstreckt sich das Siedlungsallerlei jüngeren Datums.
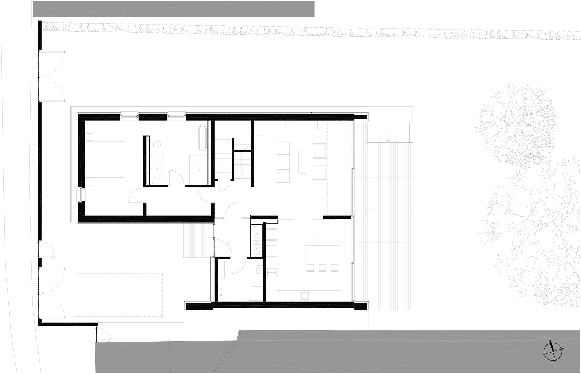
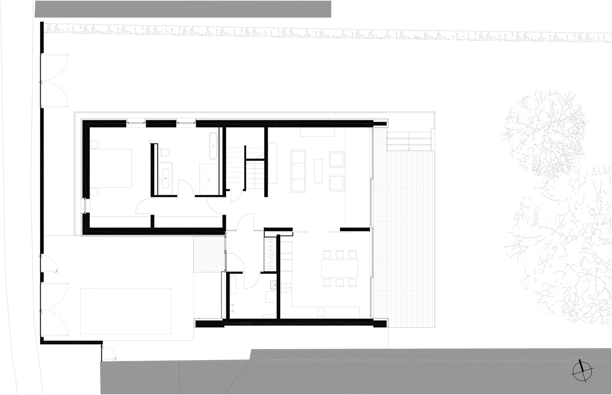
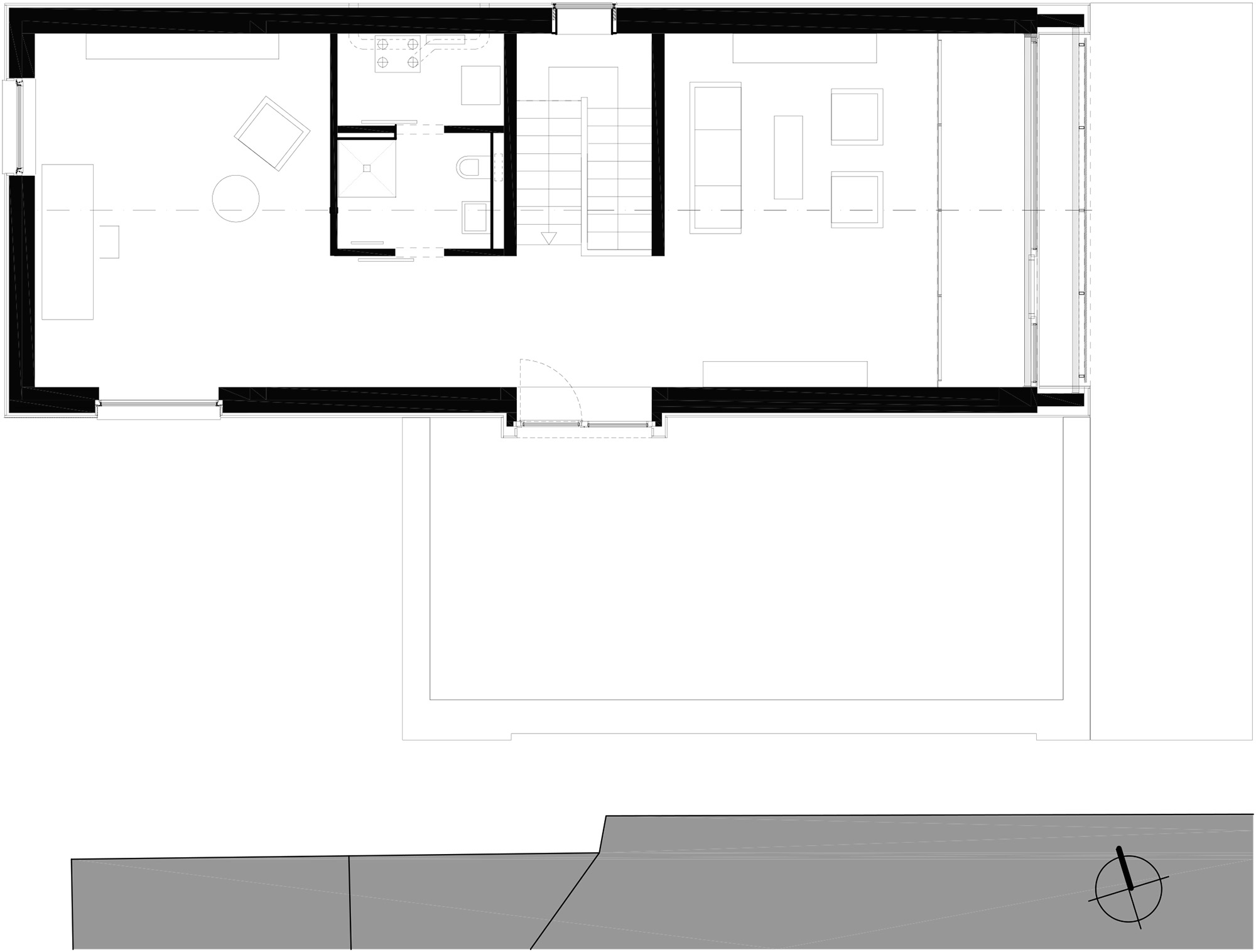
Gleich am südlichen Ortseingang hat der Karlsruher Architekt Thomas Fabrinsky einen Neubau errichtet, der subtil aus der Reihe tanzt. Das Haus S – Codename „schwarzes Schaf“ besetzt eine schon lange bestehende Baulücke neben einer stillgelegten Mühle. Auf den flüchtig Vorbeifahrenden wirkt der Neubau eher wie ein großer Schatten: Nur zwei Fenster öffnen sich in der straßenseitigen Giebelfront. Dafür öffnet er sich zum Garten nach Osten umso großzügiger mit einer Glasfassade. Lediglich im Obergeschoss schützen Holzlamellen vor Sonne und allzu neugierigen Einblicken. Der Garten blieb mehr oder weniger im Ursprungszustand erhalten – als Obstwiese, die bis an die kleine Holzterrasse vor dem Gebäude heranreicht.
Weiße Raumoberflächen sowie Böden, Fensterrahmen und Handläufe aus geölter Eiche prägen die Innenräume. Im Obergeschoss ist ein kleiner Aufenthaltsbereich leicht von der verglasten Ostfassade zurückgesetzt, sodass ein zweigeschossiger Luftraum entsteht. Auch an den Traufseiten bringen raumhohe Fenster Licht ins Haus und ermöglichen Blicke ins Freie – und in den Himmel; so zum Beispiel über der Treppe, wo Fassaden- und Dachverglasung rahmenlos ineinander übergehen.















