// Check if the article Layout ?>
Sichtbeton mit Aussicht: Haus Fabrizzi
Foto: Thomas Jantscher
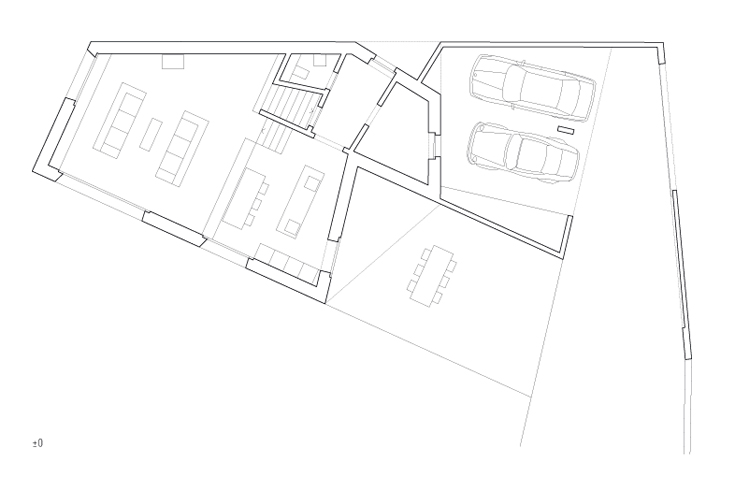
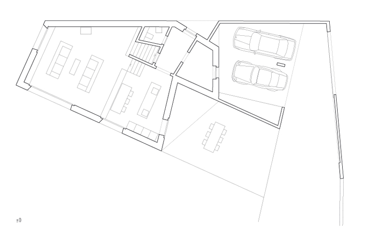
Um den Bauplatz maximal auszunutzen, fokussiert sich der Entwurf von Savioz Fabrizzi Architekten auf die exakte Definition der Leerräume. Dies geschieht mittels einer umlaufenden Grenzmauer, die in ihrer Höhe variiert. Sie schafft eine klare Trennlinie zur umliegenden Bebauung. Nordseitig, wo der Eingang des Wohnhauses liegt, scheinen Mauer und Baukörper regelrecht zu verschmelzen. Gen Osten öffnet sich die bauliche Grenze als Garagenzufahrt für die Bewohner.
Die Kubatur zeigt sich nach außen eher unaufgeregt und differenziert sich dennoch deutlich von den umliegenden Einfamilienhäusern. Eine zweischalige Fassade mit Kerndämmung ermöglicht die homogene Betonoptik an allen fünf Außenwänden. Sichtbare Traufausbildungen sucht man vergeblich, Fassade und Dach gehen nahtlos ineinander über. Auf dem Dach gibt es zudem Sonnenkollektoren, die Heizung und Warmwasserversorgung garantieren. Die Fenster sind innenliegend und wirken nahezu rahmenlos, verstärkt wird dieser Eindruck durch relativ große Laibungstiefen.
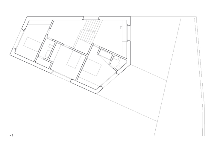
Erst im Inneren offenbart das Haus Fabrizzi seine ganze Raffinesse. Zwischengeschosse kontrastieren in ihrer Leichtigkeit mit dem monumentalen Charakter, den der Sichtbetonbau nach außen artikuliert. Das Eingangslevel beherbergt neben einer Garderobe die direkt anschließende Küche, von der aus man auf die Terrasse gelangt. Großzügige Fensterflächen sorgen in den Innenräumen für ein lichtdurchflutetes Ambiente, sie rahmen den Blick auf die Berge. Verstärkt wird dieses Bild durch die breiten Rahmenverkleidungen. Küche und Essbereich gehen, bis auf einen ersten Niveausprung, direkt in den großzügigen Wohnraum über. Die Halbgeschosse ermöglichen hier Sichtbezüge zwischen den verschiedenen Ebenen. Eine Treppe führt weiter zu einem offenen Arbeitsbereich und einem Schlafzimmer mit eigenem Bad. Abschließend gibt es noch eine Etage mit zwei Zimmern und einem zweiten Badezimmer.
Auch im Inneren liegt der Fokus klar auf den unverputzten Stahlbetonoberflächen: Böden, Wände, Decken und Treppen. Diese setzen sich konsequent sogar bis in die Badezimmer fort und räumen mit dem Vorurteil eines oftmals als kühl und unwohnlich konnotierten Baustoffs auf. Geschickt kombinieren die Architekten zu dem rohen Material Interieur aus Eichenholz. Angefangen mit der Bank im Eingangsbereich, über sämtliche Türen und Fensterrahmen, Küchenfronten, Einbauten in Wohnzimmer und Büro, bis hin zum Waschtisch. Zusammen runden sie das schlichte Design des Wohnhauses ideal ab und sorgen für eine gemütliche Atmosphäre.
Die Kubatur zeigt sich nach außen eher unaufgeregt und differenziert sich dennoch deutlich von den umliegenden Einfamilienhäusern. Eine zweischalige Fassade mit Kerndämmung ermöglicht die homogene Betonoptik an allen fünf Außenwänden. Sichtbare Traufausbildungen sucht man vergeblich, Fassade und Dach gehen nahtlos ineinander über. Auf dem Dach gibt es zudem Sonnenkollektoren, die Heizung und Warmwasserversorgung garantieren. Die Fenster sind innenliegend und wirken nahezu rahmenlos, verstärkt wird dieser Eindruck durch relativ große Laibungstiefen.
Erst im Inneren offenbart das Haus Fabrizzi seine ganze Raffinesse. Zwischengeschosse kontrastieren in ihrer Leichtigkeit mit dem monumentalen Charakter, den der Sichtbetonbau nach außen artikuliert. Das Eingangslevel beherbergt neben einer Garderobe die direkt anschließende Küche, von der aus man auf die Terrasse gelangt. Großzügige Fensterflächen sorgen in den Innenräumen für ein lichtdurchflutetes Ambiente, sie rahmen den Blick auf die Berge. Verstärkt wird dieses Bild durch die breiten Rahmenverkleidungen. Küche und Essbereich gehen, bis auf einen ersten Niveausprung, direkt in den großzügigen Wohnraum über. Die Halbgeschosse ermöglichen hier Sichtbezüge zwischen den verschiedenen Ebenen. Eine Treppe führt weiter zu einem offenen Arbeitsbereich und einem Schlafzimmer mit eigenem Bad. Abschließend gibt es noch eine Etage mit zwei Zimmern und einem zweiten Badezimmer.
Auch im Inneren liegt der Fokus klar auf den unverputzten Stahlbetonoberflächen: Böden, Wände, Decken und Treppen. Diese setzen sich konsequent sogar bis in die Badezimmer fort und räumen mit dem Vorurteil eines oftmals als kühl und unwohnlich konnotierten Baustoffs auf. Geschickt kombinieren die Architekten zu dem rohen Material Interieur aus Eichenholz. Angefangen mit der Bank im Eingangsbereich, über sämtliche Türen und Fensterrahmen, Küchenfronten, Einbauten in Wohnzimmer und Büro, bis hin zum Waschtisch. Zusammen runden sie das schlichte Design des Wohnhauses ideal ab und sorgen für eine gemütliche Atmosphäre.
weitere Informationen:
Bauingenieur: Apatec Sa, Martinach
Fertigstellung: 2014
Fotograf: Thomas Jantscher
Bauingenieur: Apatec Sa, Martinach
Fertigstellung: 2014
Fotograf: Thomas Jantscher





















