Strukturbeton im Spiegelbild: Schulsanierung in Neustadt an der Waldnaab von Brückner & Brückner Architekten
Foto: mju-fotografie/Marie Luisa Jünger
Gerade bei der Beurteilung der Nachkriegsmoderne liegen Architekten und der Rest der Bevölkerung oft himmelweit auseinander. Beispiel Neustadt an der Waldnaab: Das Gymnasium der Kleinstadt in der Oberpfalz entstand 1977 und ist Teil eines typischen Schulzentrums aus jener Zeit, innenstadtnah und doch von Wald umgeben. „Was für ein toller Ort – zurückgezogen und lebendig zugleich!“ schreiben die Architekten darüber, und weiter: „Die Ausführungsqualität der Bestandsgebäude war an vielen Stellen gut. Für die Lehrer und Schüler war das Schulgebäude ein ungeliebtes Kind mit undichten Dächern, vielen dunklen Räumen und einem zugewachsenen Innenhof, für uns Architekten ein echter Glücksfall mit großem Potential ein echter Ort für zeitgemäßes Lernen zu werden.“
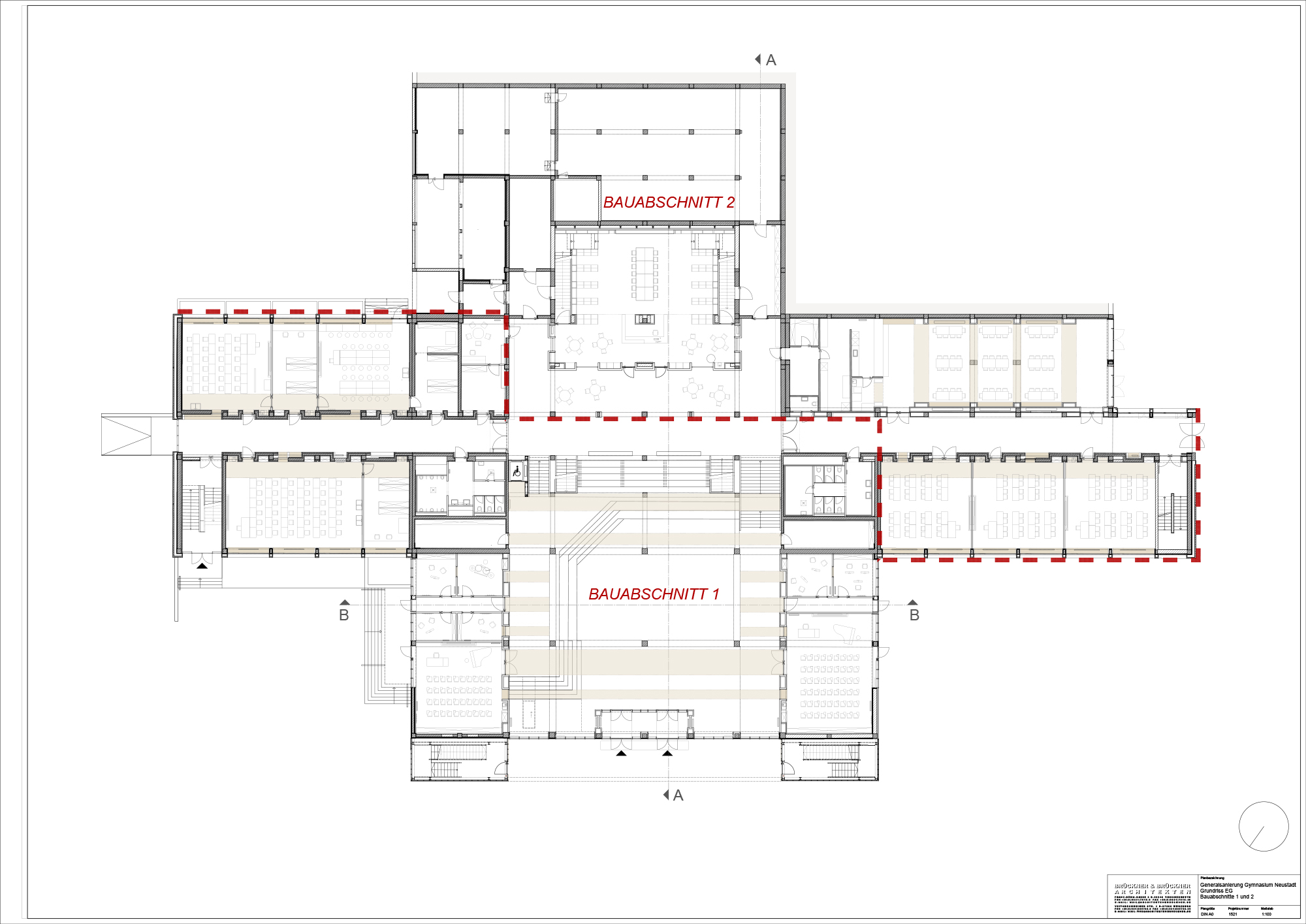
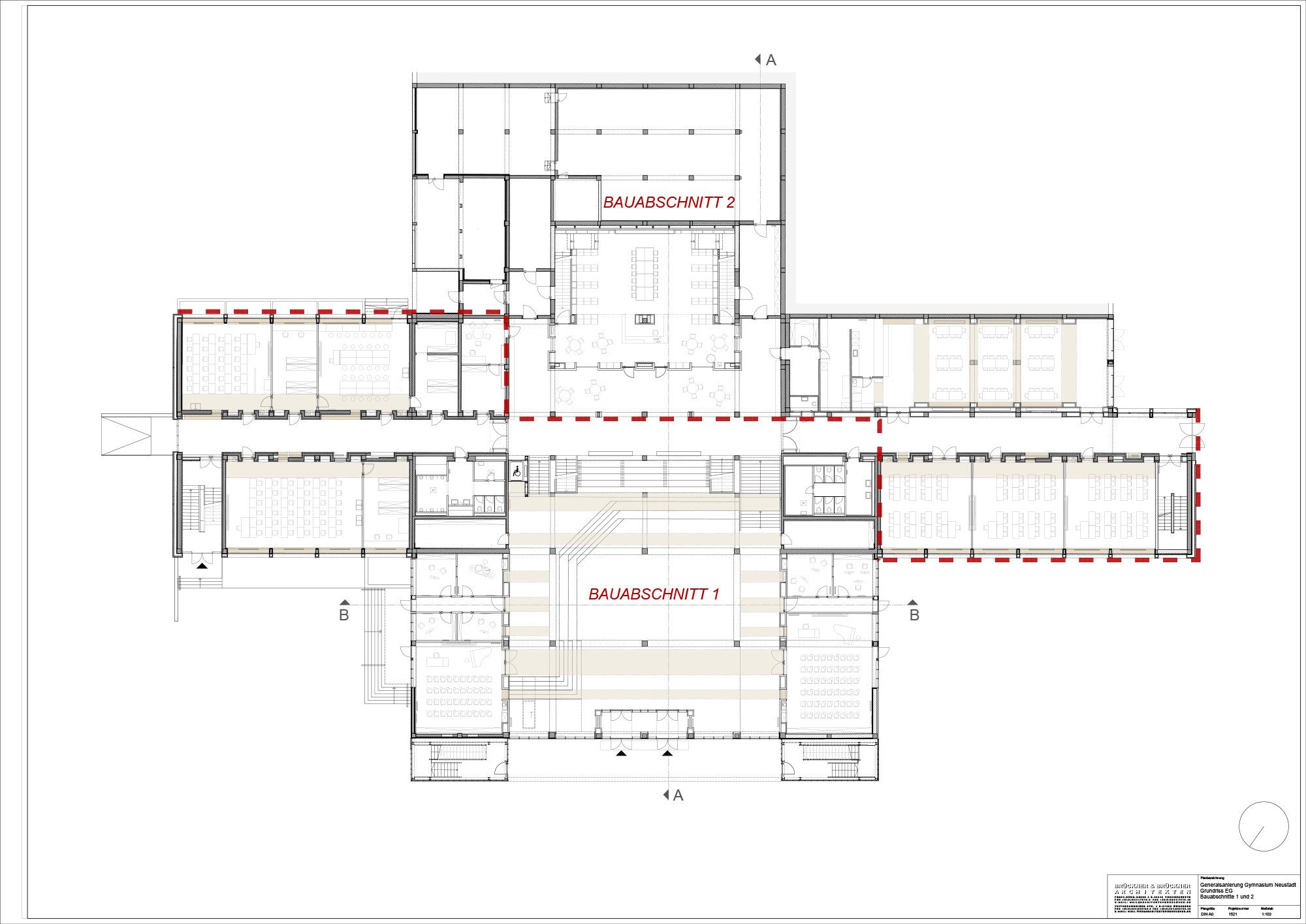
Daran arbeiten die Architekten bis heute, denn die Schulsanierung ist ein „work in progress“: Der erste Bauabschnitt wurde im Januar 2021 abgeschlossen, ein zweiter läuft und ein dritter, der die Sanierung der Sporthalle umfasst, soll noch folgen. Die etappenweise Vorgehensweise ist unvermeidlich, denn die Sanierung findet im laufenden Betrieb statt. Auf diese Weise ist eine kostspielige Ausquartierung der Schüler in einen temporären Containerbau verzichtbar.
Schon jetzt ist der grundlegende Wandel, den die Schule erfährt, auf den ersten Blick zu sehen: Eine neue, breite Freitreppe führt hinauf zum Haupteingang, der von einer Art Torsituation aus spiegelnden Aluminiumverbundplatten gerahmt wird. In die „Tortürme“ rechts und links des Eingangs sind neue Fluchttreppen integriert. Aber auch die vorgehängten, hinterlüfteten Strukturbetonfassaden aus den 70er-Jahren in den Klassenzimmern wirken nun optisch frischer als zuvor. Dafür sorgen feine Aluminiumstreifen, die die Architekten in jede zweite bis vierte Betonrille schrauben ließen. Zugunsten eines besseren Wärmeschutzes erhielten die Fassaden eine Innendämmung.
In der Aula hinter dem Haupteingang ließen die Architekten abgehängte Decken entfernen und fügten eine neue Tageslichtdecke ein. Der dahinter gelegene, zuvor nicht genutzte Innenhof wurde zur Schulbibliothek mit Vortragsraum und Galerie umfunktioniert. Die Korridore zu den Klassenzimmern sind noch so breit wie zuvor, erhielten jedoch Sitznischen und Sichtfenster, die Einblicke in die Klassenzimmer, das Lehrerzimmer und das Sekretariat erlauben.
Auch für die Energieeffizienz wurde einiges getan. Das Gymnasium erhielt neue Außentüren und Außenfenster mit Textilmarkisen, Sockelflächen wurden gedämmt, Brüstungen und Säulen mit einer Innendämmung versehen und das Dach komplett neu aufgebaut, sodass es den heutigen Energiestandard erhielt. Wärme bezieht das Gymnasium aus einer neuen Hackschnitzel-Energiezentrale, die den ganzen Schulcampus versorgt.
Weitere Informationen:
Elektroplanung: EAS Systems
Heizung/Lüftung/MSR: Gammel Engeneering
Brandschutz: DAI Dorn Architekten Ingenieure
Bauphysik: Wolfgang Sorge Ingenieurbüro für Bauphysik




























