Tarnung im Grünen: Das »Granholmen Summer Cottage« in Schweden
Foto: Carl Axel Bejre
Im nördlichen Teil der Insel haben die sonst typischen und signifikanten roten Schwedenhäuser keine Tradition. Bornstein Lyckefors und Josefine Wikholm hatten deshalb die Idee, das direkt am Wasser gelegene Cottage optisch an seine Umgebung anzugleichen und in einem hellen Grünton zu gestalten. Dabei fiel die Entscheidung bewusst auf einen Kalkanstrich, der Ausbesserungen an der Fassade ohne großen Aufwand ermöglicht. Besonders in diesem Teil des Landes ist dies von Vorteil, da das Klima hier die Fassaden oft stark angreift.
Auch das Dach aus oxidiertem Kupfer schimmert in einem angenehmen Grünton und verbindet sich, zusammen mit der Fassade und den unterschiedlichsten Grünabstufungen der Bäume, zu einem stimmigen Gesamtbild.
Das »Granholmen Summer Cottage« ist als Holzkonstruktion ausgebildet und auf kleinen Betonpfeilern aufgeständert, einerseits um das Gebäude vor Überschwemmungen zu schützen, die hier nicht selten auftreten, aber auch um möglichen Schäden durch Bodenfrost vorzubeugen.
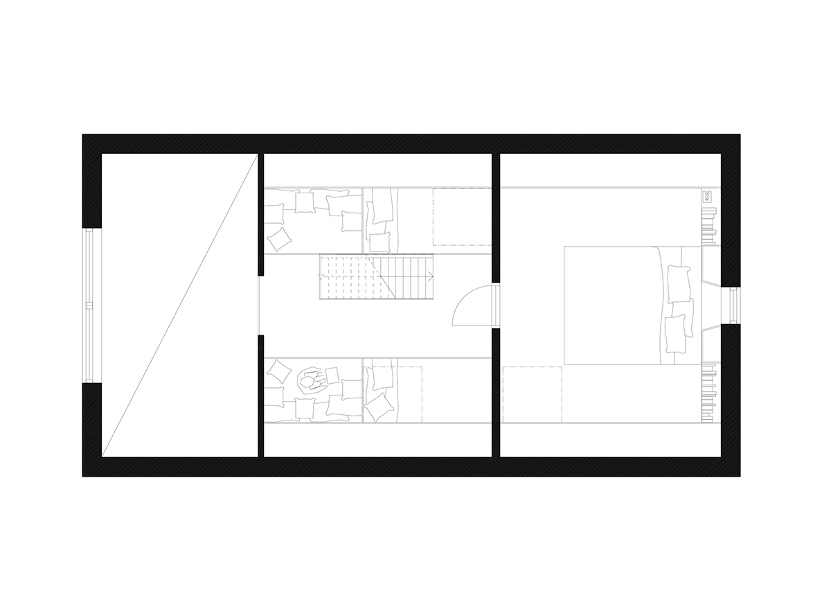
Der Innenraum ist vollständig mit unbehandeltem Kiefernholz verkleidet und wird von einem einfachen und offenen Grundriss bestimmt. Betrachtet man das Haus von außen, vermutet man nicht, dass sich die Räume im Inneren auf zwei Etagen aufteilen. Im Erdgeschoss liegt der Hauptraum des Cottage, der viel Platz für das Familienleben bietet und sich aus Küche, Wohnzimmer und Essbereich zusammensetzt. Von hier aus führt eine leiterähnliche Treppe hinauf in den ausgebauten Dachbereich, wo sich die Schlafräume und ein offener, flexibler Loftbereich befinden.
Da es sich um ein ausschließlich im Sommer genutztes Cottage handelt, sind Toilette und Dusche nur von außen zu begehen. Mehrere Glastüren entlang der Westseite sowie große raumhohe Fenster an der Nordseite in Richtung Festland schaffen großzügige Verbindungen in die Natur.















