30.03.2017 Milan Wagner

Zwischen hoch und tief: VIA 57 West von BIG

Foto: Nic Lehoux

VIA 57 West ist ein vierflächiges Wohngebäude in der West Side von Manhattan in New York City und liegt zum Hudson River hin an der 57. Straße. Das von BIG entworfene Gebäude beherbergt 709 Wohneinheiten bei einer maximalen Höhe von 142 m. Über seine pyramidale Form vereint es die typisch europäische Blockrandbebauung mit dem traditionellen Hochhausbau Manhattans auf einer Gesamtfläche von insgesamt 77202 m². Der ikonische Bau fügt sich als neue Landmarke in die Skyline von Lower Manhattan ein.

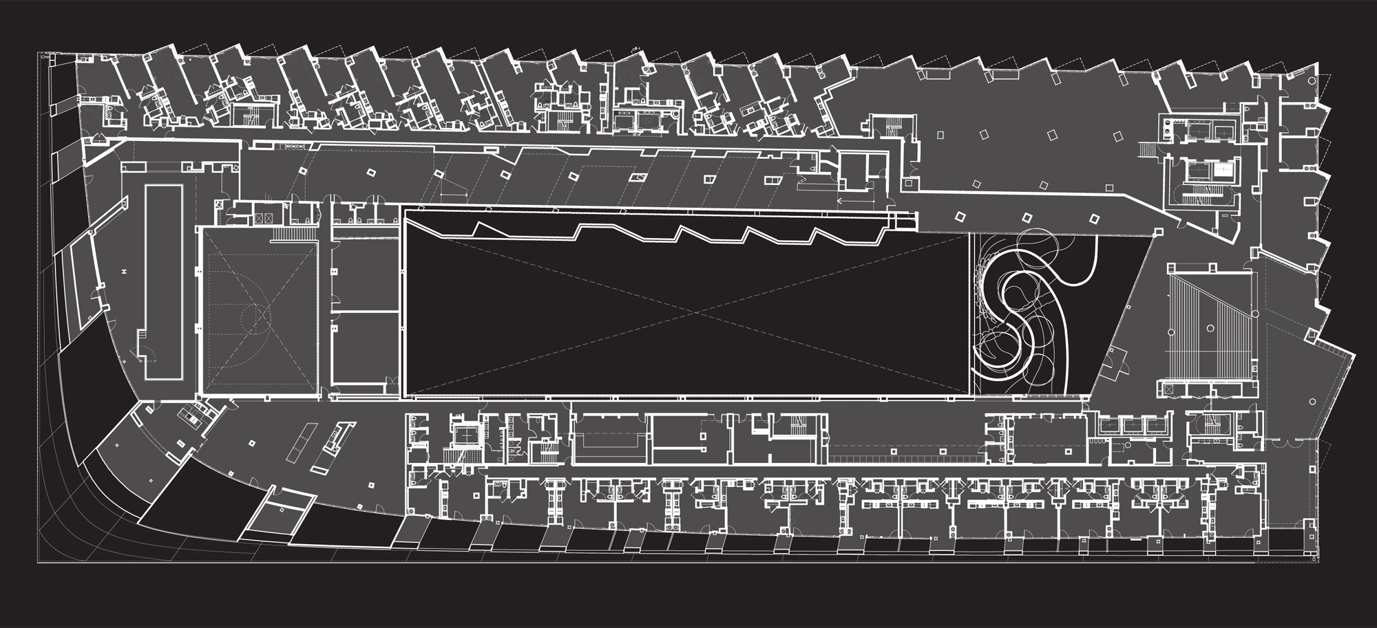
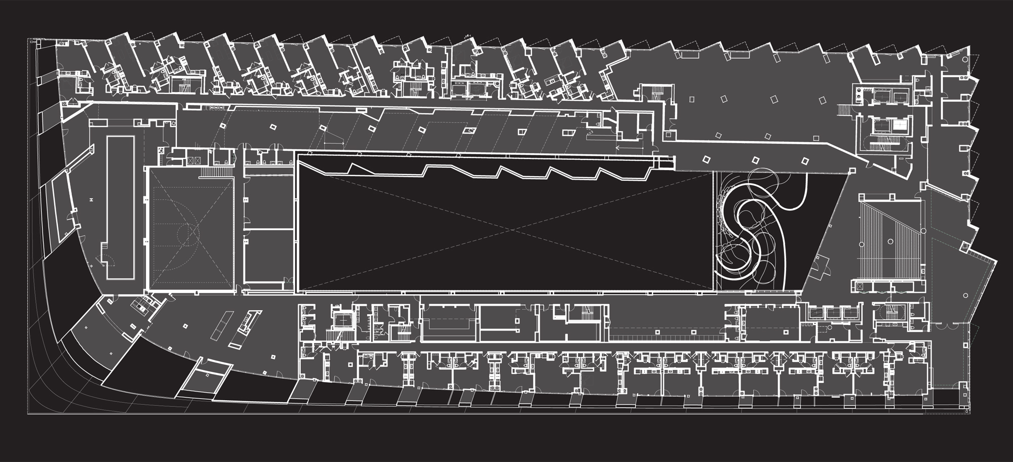
Der Grundriss des 32 Stockwerke hohen Wohnblocks erinnert an kompakte und historische Innenhofbauten Europas und ergänzt diese mit den hellen und weiten Ausblicken eines amerikanischen Wolkenkratzers. Die nordöstliche Ecke bildet mit einer Höhe von 142 Metern den höchsten Punkt. Von hier aus fällt das Gebäude zu den anderen drei Ecken kontinuierlich ab. Damit öffnet sich der Innenhof zum Hudson River hin und garantiert so viele Aussichten wie möglich. Diese Konstellation der verschiedenen Höhen lässt ausreichend westliches Sonnenlicht in den Block und in die dem Fluss zugewandten Wohnungen fallen. Außerdem verändert sich die äußere Erscheinung – von einer Pyramide zu einer riesigen Glasspitze – je nach Blickwinkel des Betrachters.

Im Innenhof befindet sich eine gemeinschaftliche Gartenfläche von 2044 m² mit neu gepflanztem Grün, Sitzmöglichkeiten und Freizeitflächen für die Bewohner, die auch von der Straße aus sichtbar ist. Die Wohneinheiten beinhalten Studio-Apartments mit ein, zwei, drei oder vier Schlafzimmern sowie Terrassen, Balkonen und Erkerfenstern mit Rundblick. Neben einem Fitnesscenter, Lounge und Schwimmbad bieten die Gemeinschaftsflächen auch Party-, Spiel- und Gesellschaftsräume.

Das steil abfallende Dach stellt eine maßstabsbildende Verbindung zwischen den tieferen Bauteilen im Süden und den höheren Etagen im Norden und Westen her. Dabei bilden die Balkonöffnungen auf der hellgrauen Metalloberfläche des Daches ein durchlöchertes Muster.

Für BIG stellt VIA 57 West das erste in den USA fertiggestellte Bauwerk dar und bringt ein wenig europäische Architekturtradition nach Manhattan. Basierend auf seinem pragmisch-utopischen Ansatz nennt Bjarke Ingels diese Kombination eines Innenhofgebäudes mit einem Wolkenkratzer einen »Courtscraper«.

Sehen Sie hier zwei Videos zu dem Bauwerk.

Foto: Iwan Baan

Foto: Iwan Baan

Foto: Iwan Baan

Foto: Iwan Baan

Foto: Iwan Baan

Foto: Iwan Baan

Grafik: BIG

Grafik: BIG

Grafik: BIG

Grafik: BIG

Foto: Nic Lehoux

Foto: BIG

Foto: BIG

Grundriss 2.OG, Grafik: BIG

Grundriss 4.OG, Grafik: BIG

Foto: Iwan Baan

Foto: Iwan Baan

Foto: Iwan Baan

Foto: Iwan Baan

Weitere Informationen:

Fotografen: Iwan Baan, Nic Lehoux, BIG - Bjarke Ingels Group
https://detail-cdn.s3.eu-central-1.amazonaws.com/media/catalog/product/B/I/BIG-Via57West-image-by-nic-lehoux-Teaserbox-735.jpg?width=437&height=582&store=de_de&image-type=image https://detail-cdn.s3.eu-central-1.amazonaws.com/media/catalog/product/B/I/BIG-Via57West-image-by-nic-lehoux-Teaserhome-1500.jpg?width=437&height=582&store=de_de&image-type=image https://detail-cdn.s3.eu-central-1.amazonaws.com/media/catalog/product/1/-/1-BIG-Via57West-by-Iwan-Baan.jpg?width=437&height=582&store=de_de&image-type=image https://detail-cdn.s3.eu-central-1.amazonaws.com/media/catalog/product/2/-/2-BIG-Via57West-by-Iwan-Baan.jpg?width=437&height=582&store=de_de&image-type=image https://detail-cdn.s3.eu-central-1.amazonaws.com/media/catalog/product/6/-/6-BIG-Via57West-by-Iwan-Baan.jpg?width=437&height=582&store=de_de&image-type=image https://detail-cdn.s3.eu-central-1.amazonaws.com/media/catalog/product/7/-/7-BIG-Via57West-by-Iwan-Baan.jpg?width=437&height=582&store=de_de&image-type=image https://detail-cdn.s3.eu-central-1.amazonaws.com/media/catalog/product/8/-/8-BIG-Via57West-big.jpg?width=437&height=582&store=de_de&image-type=image https://detail-cdn.s3.eu-central-1.amazonaws.com/media/catalog/product/9/-/9-BIG-Via57West-big.jpg?width=437&height=582&store=de_de&image-type=image https://detail-cdn.s3.eu-central-1.amazonaws.com/media/catalog/product/B/I/BIG-Via57West-Diagram1-Image-by-BIG.jpg?width=437&height=582&store=de_de&image-type=image https://detail-cdn.s3.eu-central-1.amazonaws.com/media/catalog/product/B/I/BIG-Via57West-Diagram2-Image-by-BIG.jpg?width=437&height=582&store=de_de&image-type=image https://detail-cdn.s3.eu-central-1.amazonaws.com/media/catalog/product/B/I/BIG-Via57West-Diagram3-Image-by-BIG.jpg?width=437&height=582&store=de_de&image-type=image https://detail-cdn.s3.eu-central-1.amazonaws.com/media/catalog/product/B/I/BIG-Via57West-Diagram4-Image-by-BIG.jpg?width=437&height=582&store=de_de&image-type=image https://detail-cdn.s3.eu-central-1.amazonaws.com/media/catalog/product/B/I/BIG-Via57West-Model-Image-by-BIG.jpg?width=437&height=582&store=de_de&image-type=image https://detail-cdn.s3.eu-central-1.amazonaws.com/media/catalog/product/B/I/BIG-Via57West-Model2-Image-by-BIG.jpg?width=437&height=582&store=de_de&image-type=image https://detail-cdn.s3.eu-central-1.amazonaws.com/media/catalog/product/B/I/BIG-Via57West-OG2-Image-by-BIG.jpg?width=437&height=582&store=de_de&image-type=image https://detail-cdn.s3.eu-central-1.amazonaws.com/media/catalog/product/B/I/BIG-Via57West-OG4-Image-by-BIG.jpg?width=437&height=582&store=de_de&image-type=image https://detail-cdn.s3.eu-central-1.amazonaws.com/media/catalog/product/3/-/3-BIG-Via57West-by-Iwan-Baan.jpg?width=437&height=582&store=de_de&image-type=image https://detail-cdn.s3.eu-central-1.amazonaws.com/media/catalog/product/4/-/4-BIG-Via57West-by-Iwan-Baan.jpg?width=437&height=582&store=de_de&image-type=image https://detail-cdn.s3.eu-central-1.amazonaws.com/media/catalog/product/5/-/5-BIG-Via57West-by-Iwan-Baan.jpg?width=437&height=582&store=de_de&image-type=image https://detail-cdn.s3.eu-central-1.amazonaws.com/media/catalog/product/1/0/10-BIG-Via57West-big.jpg?width=437&height=582&store=de_de&image-type=image
Copyright © 2024 DETAIL. Alle Rechte vorbehalten.