// Check if the article Layout ?>
Im Wald versteckt: House in the Woods von Arigho Larmour Wheeler
Foto: Ros Kavanagh
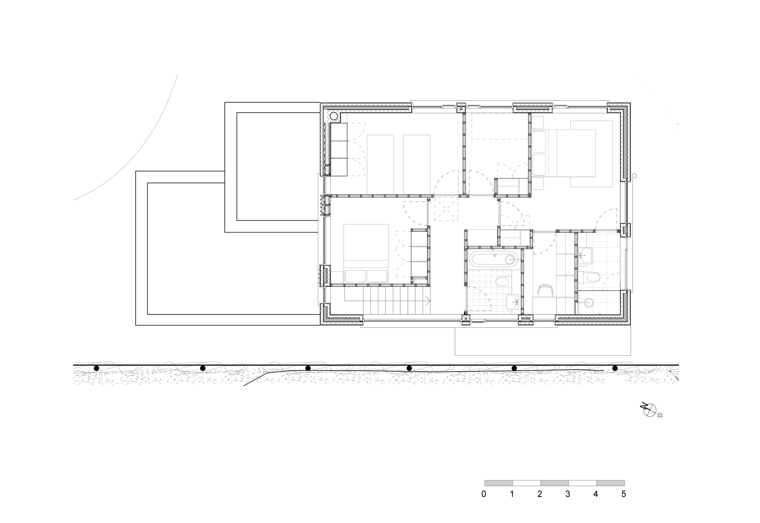
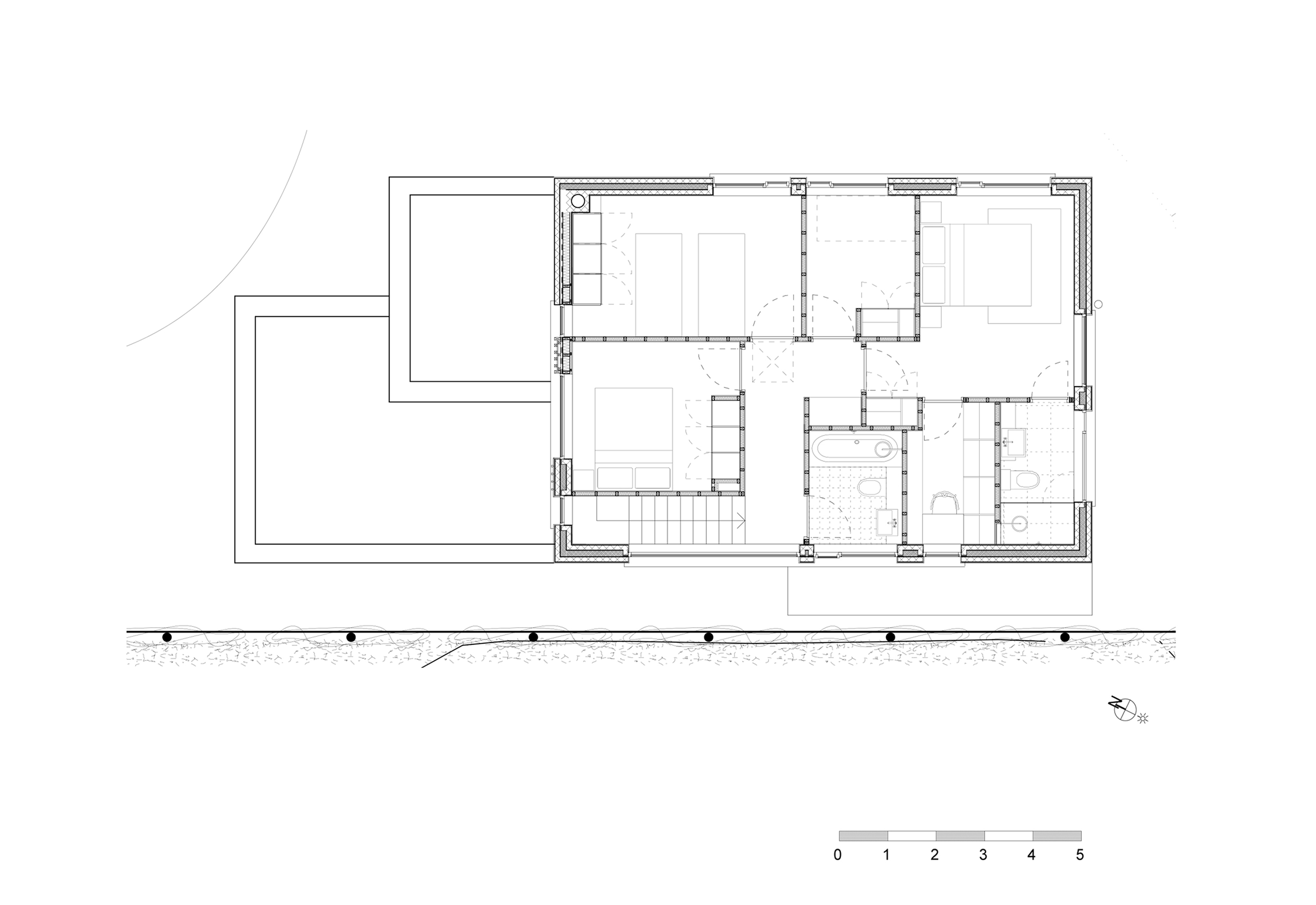
Das Haus auf einem keilförmigen Grundstück ist von alten Kiefern und Zypressenbäumen umgeben, die inzwischen unter Naturschutz stehen. Der Hausbesitzer spielte schon als Kind unter diesen Bäumen. Das Haus in der Waldlandschaft im südlichen Vorort von Dublin befindet sich in einer Umgebung, die durch eine lebendige Mischung aus unterschiedlichen architektonischen Stilen geprägt ist. Die bei dem Neubau verwendeten Materialien stehen deswegen in Bezug zu den benachbarten Bauten, allerdings ist seine architektonische Sprache eine eindeutig zeitgenössische.
Die weiß bemalten Außenwände sind mit Absicht leicht ungerade gestaltet, um die Hausmasse besser in die historische Landschaft zu integrieren. Demselben Zweck dient die ebenfalls weiße Holzverkleidung im oberen Teil des Hauses. Die Position der Fenster folgt den funktionalen Erfordernissen; alle Schlafzimmer sind nach Osten ausgerichtet, um die Morgensonne optimal zu nutzen. Wohnräume befinden sich im östlichen und südlichen Hausteil. Um die Wurzeln von den alten Bäumen unter dem Gebäude nicht zu verletzen, heben die Architekten das Haus leicht an. Die terrakottafarbenen Dachziegel des Pultdaches verbinden das Wohnhaus visuell mit dem benachbarten Gebäude.











