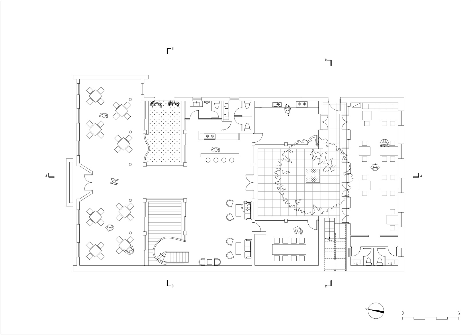
Mikroutopisches Ideal: Hutong Bubble 218 von MAD Architects
Foto: Tian Fangfang
Bereits 2006 schlugen MAD Architects auf der Architekturbiennale in Venedig Ideen für die Zukunft der historischen Viertel Pekings vor, die infolge wirtschaftlicher Entwicklungen vom Abriss bedroht sind. Mit der Idee, dass Fortschritt nicht immer große Veränderungen erfordert, wurde das Programm „Beijing 2050“ ins Leben gerufen – ein Netzwerk verspiegelter Skulpturen, die als „mikroutopisches Ideal“ neues Leben in den Hutong Innenhöfen entfalten sollen.
2009 entstand die erste Hutong Skulptur in Beibingmasi. Heute, zehn Jahre später, haben MAD Architects die „Hutong Bubble 218“ in einer Innenhofstruktur aus der Qing-Dynastie finalisiert. Die von der Tianjie Group, dem Beijing Center for the Arts und dem Beijing Architectural Design and Research Institute mitfinanzierte Rekonstruktion verwandelt aus dem ehemals ersten internationalen Krankenhaus in Peking einen künstlerisch intervenierten Neubau.
Graue Ziegelsteine bewahren das historische Antlitz, während Neuverglasungen an der Gebäudefront das Tageslicht maximiert. Anstatt das bestehende Stadtgefüge zu unterbrechen, erzeugen verspiegelte Oberflächen der blasenförmigen Skulpturen einen reflektierenden Dialog zwischen Alt und Neu.
Site Area: 469 sqm
Building Area: 305.1 sqm
Principals in Charge: Ma Yansong, Dang Qun, Yosuke Hayano
Design Team: He Wei, Li Yuanhao, Shang Li, Fu Changrui, Wang Tao, Dmitry Seregin, Cesar D. Rey
Owner: Tianjie Group
Design Institute: Beijing Architectural Design and Research Institute EA4
Tenant: Damochang Urban Revitalization Program






















