Mit Gottfried Böhm als Nachbar: Schulerweiterung und Wohnen von LRO
Foto: Roland Halbe
„Eine unvergleichlich schöne Bauskulptur, der wir mit Bewunderung und Staunen begegnen (…)“, schwärmen die Architekten Lederer, Ragnarsdóttir und Oei von der Kirche Christi Auferstehung, die 1968 von Gottfried Böhm entworfen und 1970 fertiggestellt wurde. Die Geschichte ihres neuen Schulgebäudes in Köln-Lindenthal, in das auch Wohnungen integriert sind, fängt notgedrungen mit dieser Kirche an. Der Eckbau mit Ziegelfassade schließt baulich an sie an – auf eine Art und Weise, die unter Architekten gewiss unterschiedliche Meinungen auslösen wird: LRO wählten bewusst keine Fuge – die „akademische Lösung“ – sondern führen die Fassade ein Stück fort. Die optische Fuge folgt dann erst zwischen diesem Anbau und der Mensa, was die Architekten als die „pragmatische Lösung“ beschreiben.
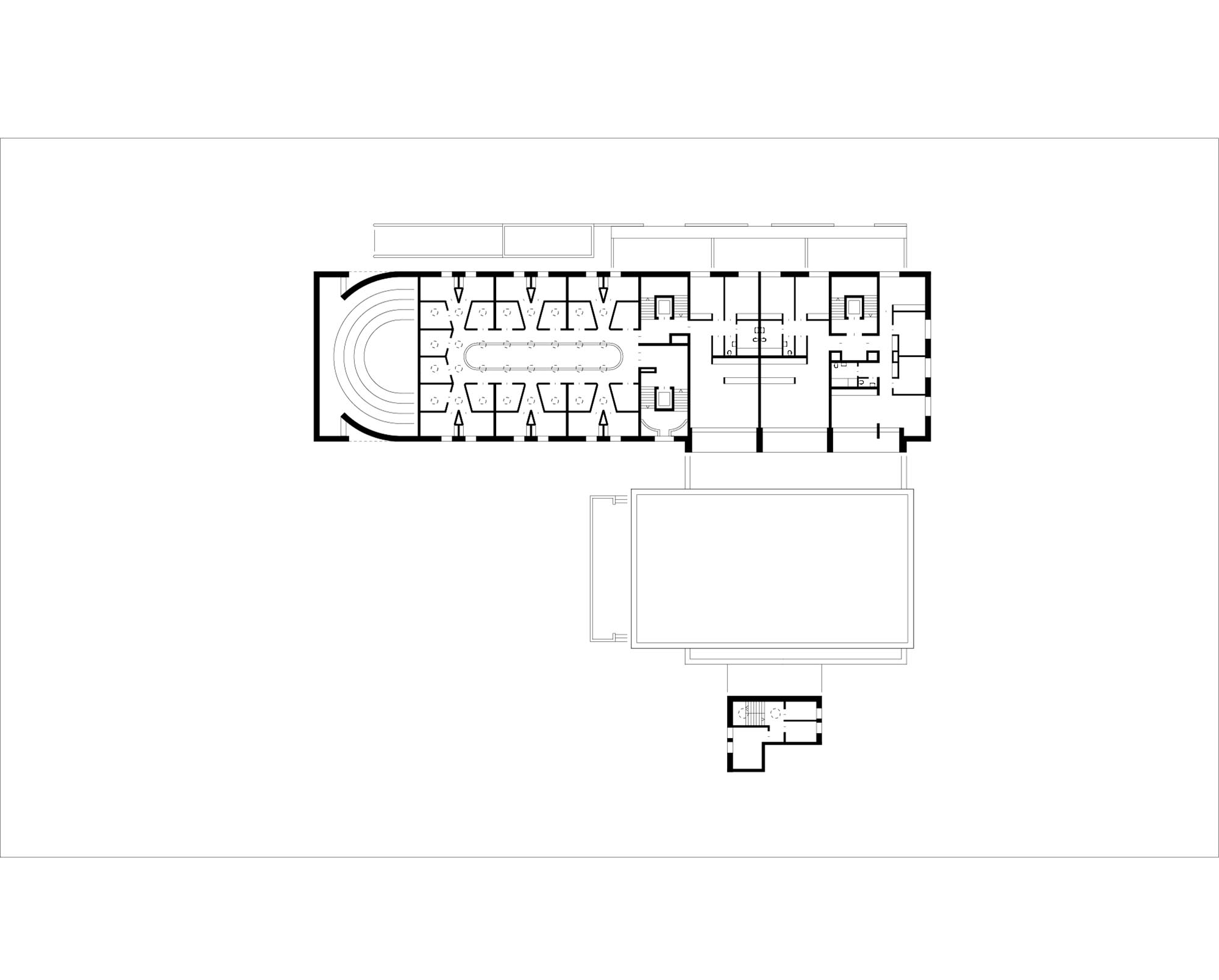
Der L-förmige Baukörper weist unterschiedliche Gebäudehöhen auf. Am höchsten ragt er an der Ecke in die Höhe. Dort befinden sich in den Obergeschossen zehn Wohnungen, die unabhängig von der Schule erschlossen werden. Im rechten Winkel schließen zwei weitere Volumen an, sodass das Gebäude einen Hof mit altem Baumbestand umschließt.
In Richtung Kirche liegt die Mensa, ein eingeschossiger Raum mit einem rundherum durchgehenden Oberlicht. Dessen Dachschale scheint über den Mauern zu schweben. Möglich macht das eine Konstruktion aus Fachwerkträgern, die im Innenraum sichtbar wird. Dort öffnen sich zwei große, entgegengesetzt liegende Rundbogenfenster sowohl zum Innenhof als auch zur Grünfläche vor der gegenüberliegenden Fassade.
Die Fuge zwischen Mensa und Anbau bildet ein niedrigerer Raum, der auch den Durchgang vom Park zum Hof ermöglicht. Hier befindet sich der Eingang für die Schüler der Liebfrauenschule, deren Gebäude auf der anderen Seite des kleinen Parks liegt. Im zweiten Gebäudeflügel befindet sich der Chorprobenraum – ein Halbrund, das sich auf der Fassade abzeichnet. Er wird durch seitliche Lichtschlitze und Oberlichter indirekt belichtet.
Dank der hohen Ansprüche der Bauherrschaft an die Architektur konnten Lederer Ragnarsdóttir Oei Architekten auch im Innenausbau Zeit in die Entwicklung von Details stecken, die dann mit hoher handwerklicher Qualität umgesetzt wurden.
Weitere Informationen:
Mehrfachbeauftragung: April 2014 (1. Rang)
Planungsbeginn: Oktober 2014
Baubeginn: April 2017
Fertigstellung und Inbetriebnahme: März 2020
NF: 3800 m2
BGF: 5300 m2
BRI: 21700 m3
Mitarbeiter: Frank Bohnet, Philipp Gantenbrink
Fotografien: Roland Halbe Projektsteuerung: Drees & Sommer Köln GmbH Tragwerksplanung: Leonhardt, Andrä und Partner Beratende Ingenieure VBI AG
Prüfstatik: Pirlet & Partner Baukonstruktionen Ingenieurgesellschaft mbH Bauphysik: ISRW Klapdor GmbH Brandschutz: Kempen Krause Ingenieure GmbH Bodengutachter: Kühn Geoconsulting GmbH Planung TGA: Ingenieurbüro Heiming
Sachverständiger RLT/Elektro: German Inspect GmbH Küchenplanung: Ing.-Büro Zellner
Vermessung: Vermessung MRD



















