07.09.2017 Elena Markus

Pavillon am Straßenrand: CLASS-Café von Sake Architects

Foto: Chalermwat Wongchompoo

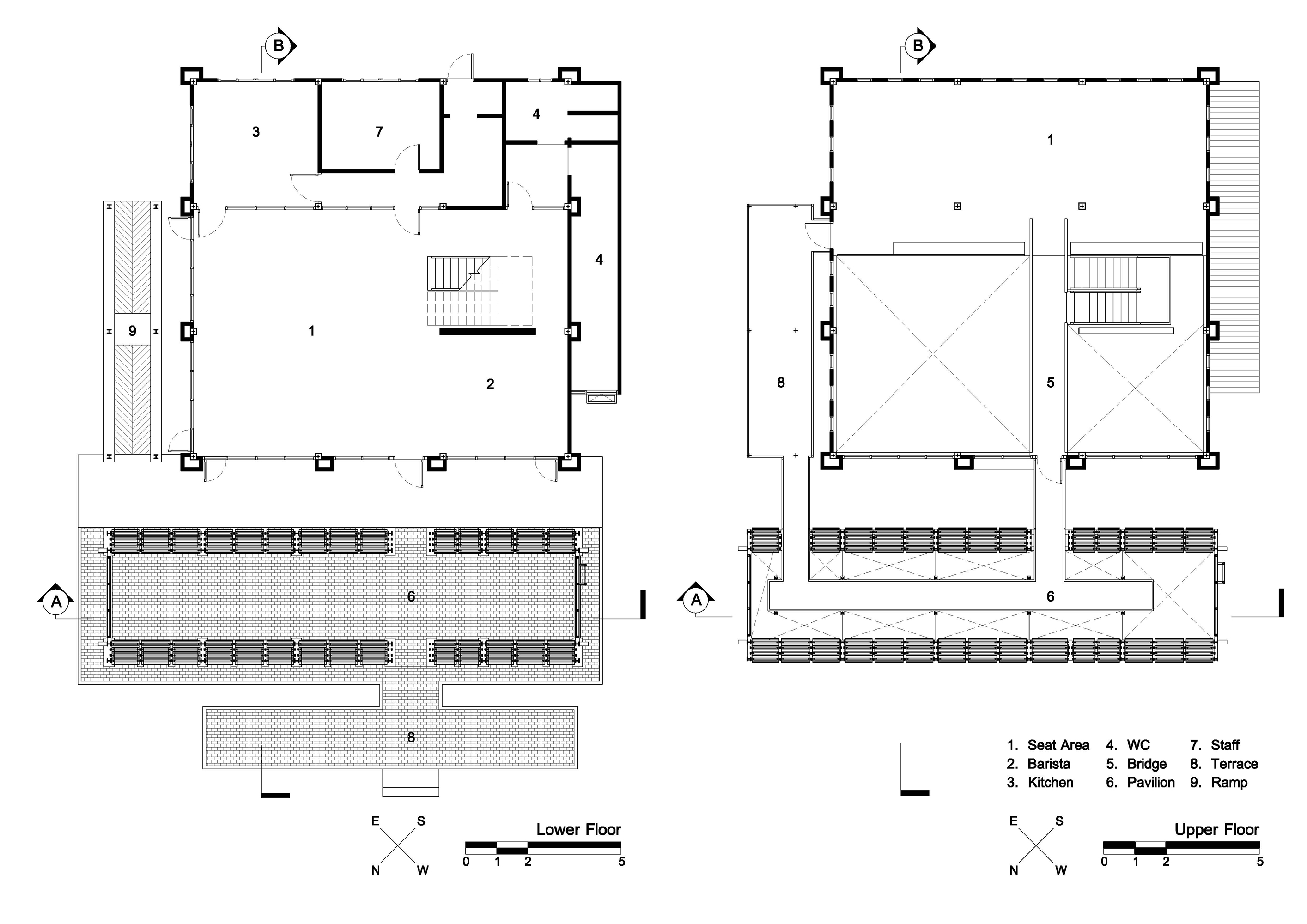
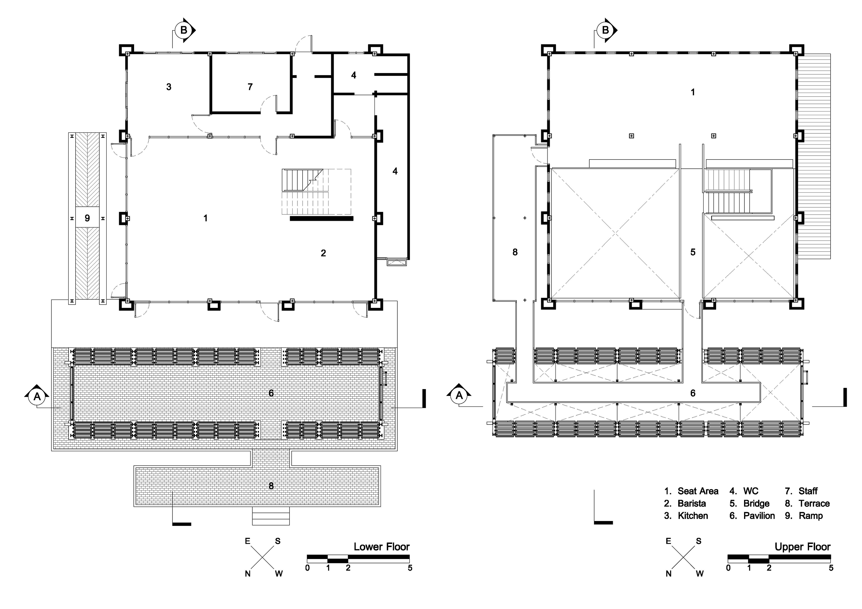
Das neue Class-Café in der thailändischen Stadt Buri Ram – die als »Stadt der Freude« ins Deutsche übersetzt wird – liegt an einer Schnellstraße, die zum Stadtzentrum führt. Das Café ist die erste Filiale einer Kaffeehauskette aus der Nachbarprovinz Nakhon Ratchasima. Bei dem Umbauprojekt eines momentan leer stehenden Gebäudes wünschten sich die Bauherren eine neue Fassadenhülle, die den aktuellen architektonischen »Trends« entspricht. Diesen Wunsch integrieren Sake Architects in ihr Gebäudekonzept: Sie setzen den Neubau, einen 4x15 Meter großen vertikalen Pavillon mit einer luftdurchlässigen Fassade an die Straße, wodurch der Bestandsbau im Hintergrund verschwindet. 
Die Inspiration für den innenliegenden Außenraum kommt von den sogenannten »Sala«, traditionellen offenen Pavillons, die in Thailand entlang der Straßen und Flüssen gebaut und zur Erholung oder als Treffpunkte genutzt werden. Diese Entwurfsentscheidung hat mehrere Vorteile: Zum einem werden dadurch weitere Kosten für eine neue Fassadenhülle bei dem Altbau gespart, zum anderen kann der dazu gewonnene Raum auch für Events genutzt werden. Und – last but not least ist der neue Pavillon zweifellos ein Zugewinn an vielfältigen räumlichen Erlebnissen. 

Foto: Chalermwat Wongchompoo

Foto: Chalermwat Wongchompoo

Foto: Chalermwat Wongchompoo

Foto: Chalermwat Wongchompoo

Foto: Chalermwat Wongchompoo

Foto: Chalermwat Wongchompoo

Foto: Chalermwat Wongchompoo

Foto: Chalermwat Wongchompoo

Foto: Chalermwat Wongchompoo

Foto: Chalermwat Wongchompoo

Foto: Chalermwat Wongchompoo

Grundriss, Grafik: Sake Architects

https://detail-cdn.s3.eu-central-1.amazonaws.com/media/catalog/product/3/1/318_240_240.jpg?width=437&height=582&store=de_de&image-type=image https://detail-cdn.s3.eu-central-1.amazonaws.com/media/catalog/product/S/A/SAKE-Class-Cafe-Buriram-Chalermwat-Wongchompoo-teaser-gross.jpg?width=437&height=582&store=de_de&image-type=image https://detail-cdn.s3.eu-central-1.amazonaws.com/media/catalog/product/S/A/SAKE-Class-Cafe-Buriram-Chalermwat-Wongchompoo-teaser-klein.jpg?width=437&height=582&store=de_de&image-type=image https://detail-cdn.s3.eu-central-1.amazonaws.com/media/catalog/product/S/A/SAKE-Class-Cafe-Buriram-Chalermwat-Wongchompoo-01.jpg?width=437&height=582&store=de_de&image-type=image https://detail-cdn.s3.eu-central-1.amazonaws.com/media/catalog/product/S/A/SAKE-Class-Cafe-Buriram-Chalermwat-Wongchompoo-02.jpg?width=437&height=582&store=de_de&image-type=image https://detail-cdn.s3.eu-central-1.amazonaws.com/media/catalog/product/S/A/SAKE-Class-Cafe-Buriram-Chalermwat-Wongchompoo-04.jpg?width=437&height=582&store=de_de&image-type=image https://detail-cdn.s3.eu-central-1.amazonaws.com/media/catalog/product/S/A/SAKE-Class-Cafe-Buriram-Chalermwat-Wongchompoo-05.jpg?width=437&height=582&store=de_de&image-type=image https://detail-cdn.s3.eu-central-1.amazonaws.com/media/catalog/product/S/A/SAKE-Class-Cafe-Buriram-Chalermwat-Wongchompoo-06.jpg?width=437&height=582&store=de_de&image-type=image https://detail-cdn.s3.eu-central-1.amazonaws.com/media/catalog/product/S/A/SAKE-Class-Cafe-Buriram-Chalermwat-Wongchompoo-07.jpg?width=437&height=582&store=de_de&image-type=image https://detail-cdn.s3.eu-central-1.amazonaws.com/media/catalog/product/S/A/SAKE-Class-Cafe-Buriram-Chalermwat-Wongchompoo-08.jpg?width=437&height=582&store=de_de&image-type=image https://detail-cdn.s3.eu-central-1.amazonaws.com/media/catalog/product/S/A/SAKE-Class-Cafe-Buriram-Chalermwat-Wongchompoo-09.jpg?width=437&height=582&store=de_de&image-type=image https://detail-cdn.s3.eu-central-1.amazonaws.com/media/catalog/product/S/A/SAKE-Class-Cafe-Buriram-Chalermwat-Wongchompoo-10.jpg?width=437&height=582&store=de_de&image-type=image https://detail-cdn.s3.eu-central-1.amazonaws.com/media/catalog/product/S/A/SAKE-Class-Cafe-Buriram-Chalermwat-Wongchompoo-11.jpg?width=437&height=582&store=de_de&image-type=image https://detail-cdn.s3.eu-central-1.amazonaws.com/media/catalog/product/S/A/SAKE-Class-Cafe-Buriram-Chalermwat-Wongchompoo-12.jpg?width=437&height=582&store=de_de&image-type=image https://detail-cdn.s3.eu-central-1.amazonaws.com/media/catalog/product/S/A/SAKE-Class-Cafe-Buriram-Chalermwat-Wongchompoo-13.jpg?width=437&height=582&store=de_de&image-type=image
Copyright © 2024 DETAIL. Alle Rechte vorbehalten.