Schwarze Dachlandschaft: De Beauvoir Block von Henley Halebrown
Foto: Nick Kane
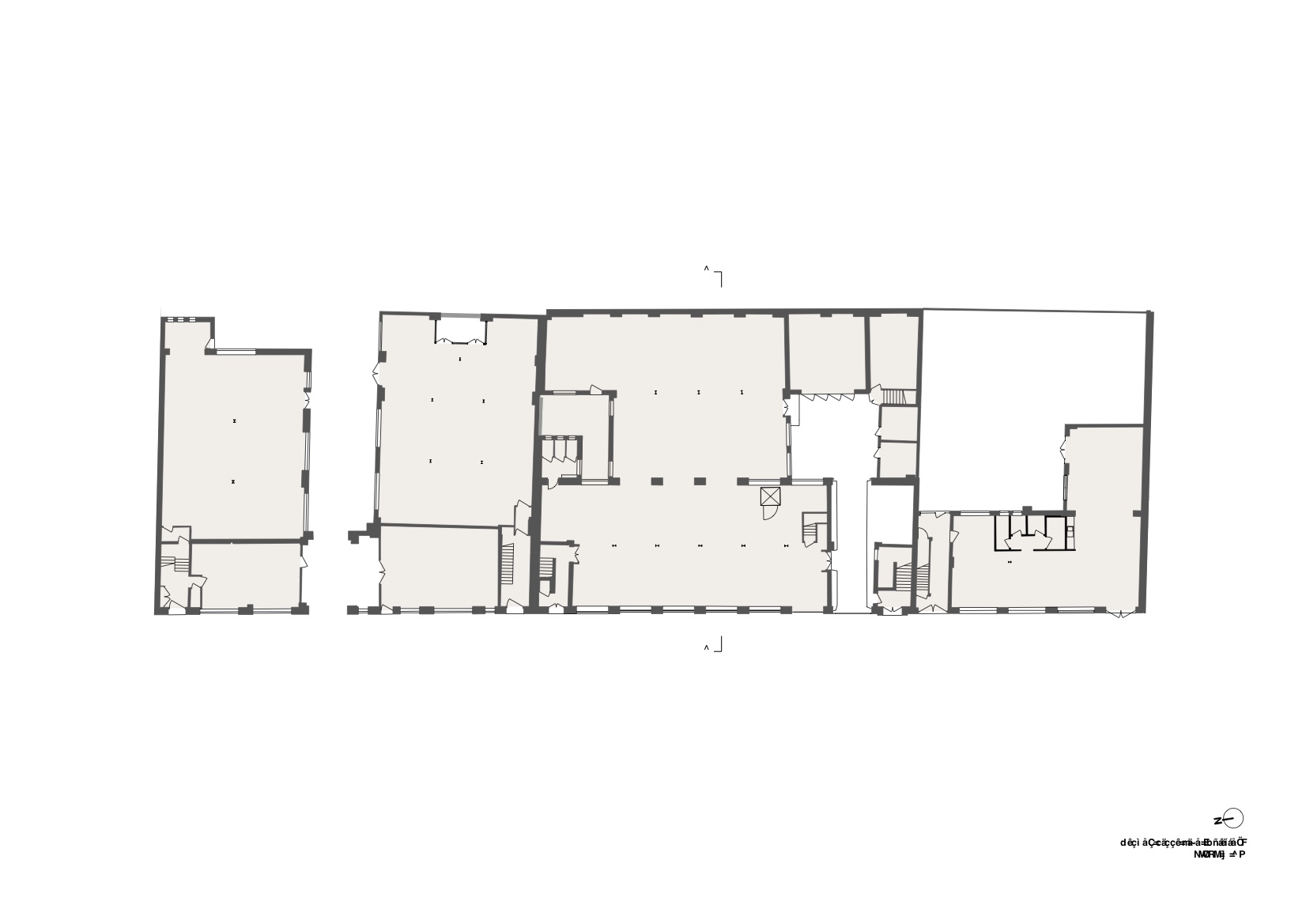
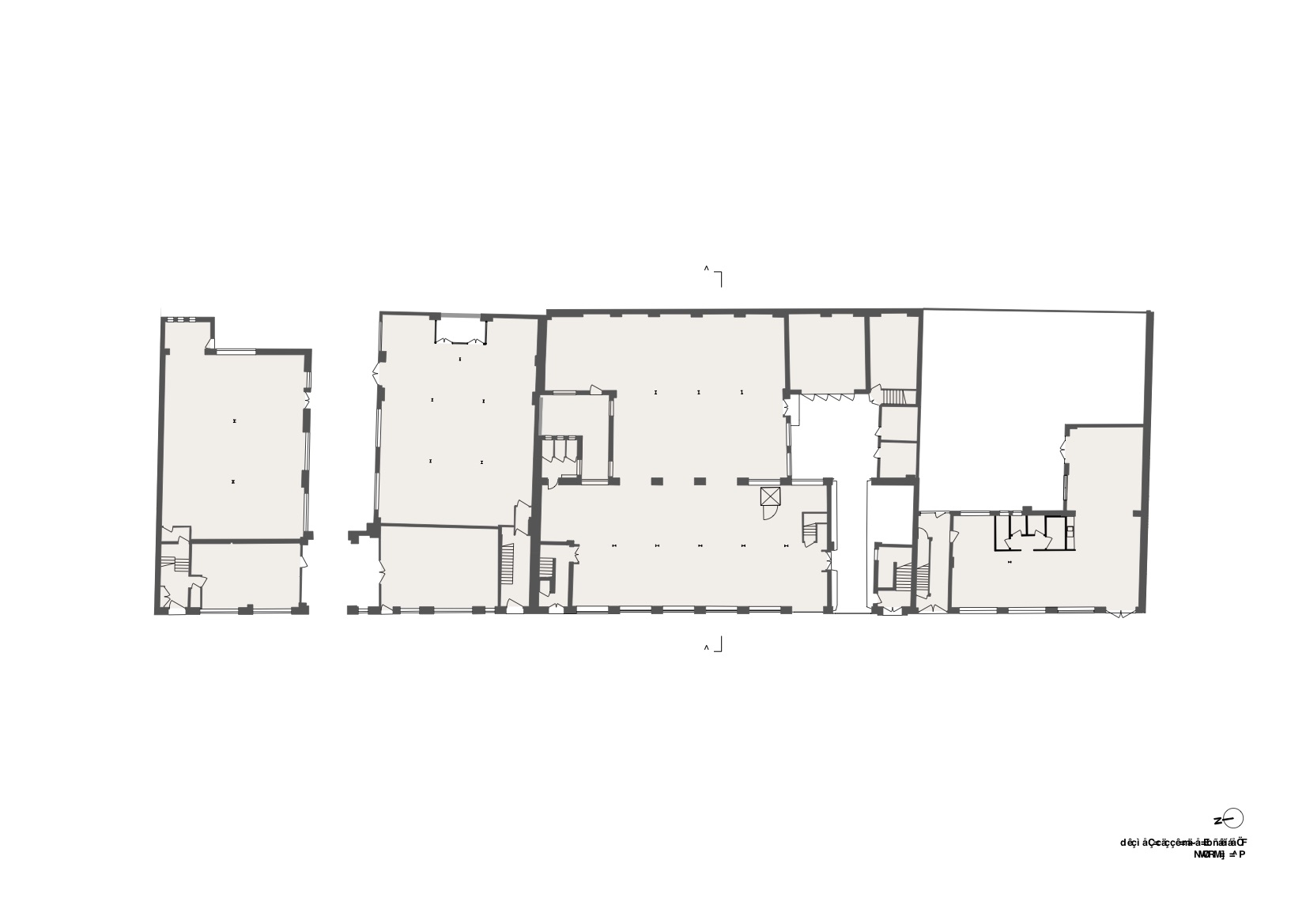
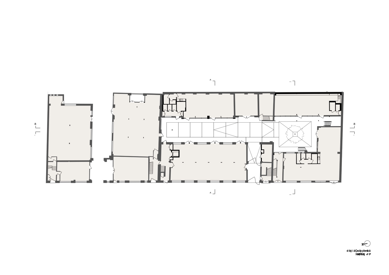
Das unter dem Namen bekannte Gebäudekomplex »The Block« befindet sich in der historischen Nachbarschaft um De Beauvoir Town im Londoner Ortsteil Hackney. Mit seiner jakobinischen Bildsprache setzt sich der Bau von der für die Gegend typische viktorianische Architektur im Italianate-Stil ab. Und nun noch einmal mehr: Henley Halebrown haben im Rahmen eines Restaurationsprojekts daraus »De Beauvoir Block« erschaffen.
Der gemeinschaftlich genutzte Hofraum mit Café fungiert als Eingangsbereich. Weiter oben erstreckt sich die pittoreske Dachlandschaft mit den Workspaces – mattschwarze Holzkonstruktionen, eingehüllt in EPMD, geben dem »De Beauvoir Block« eine neue Silhouette. Insgesamt 33 Workspaces verteilen sich auf drei Stockwerke und stehen vornehmlich der lokalen Kultur- und Kreativwirtschaft zur Verfügung. Freiliegende Dachsparren und Sperrholzverkleidungen prägen das Innere der Arbeitsstudios.
»De Beauvoir Block« soll durch das starke Gemeinwesen dazu beitragen, das traditionsreiche Unternehmertum in Hackney weiterzuführen und die kreative Zusammenarbeit in erschwinglichen Arbeitsräumen zu ermöglichen, so Edward Benyon, Estates Director der The Benyon Estate.
Weitere Informationen:
Project architect: John Marshall
Project team: Simon Henley, Gavin Hale-Brown, Ken Rorrison, Neil Rodgers
Main contractor: Sullivan Brothers Constructions
Quantity surveyor: Castle-Davis
Services engineer: AJ Energy
Structural engineer: MMP Design
Planning consultant: CMA Planning
Approved inspector: Salus AI
EDPM: AAC Waterproofing
CLT: Eurban
Precast Concrete: Amber Precast
Curtain Walling: Reynaers
Aluminium Windows: IdealCombi
Timber Doors: JCK Joinery
Rooflights: Roofglaze
Metalwork: Total Metalworks
Steelwork: Flemings Fabrication























