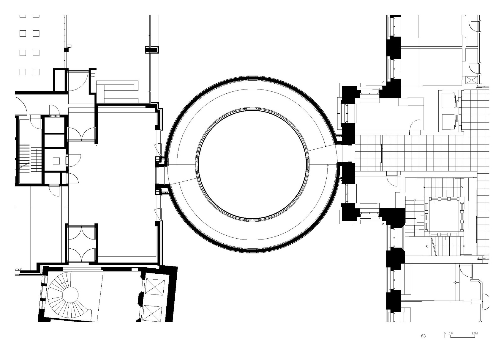
Ringförmige Passerelle
Fußgängerbrücke von Office Kersten Geers David Van Severen
© Bas Princen
Der ringförmige Fußgängerübergang Tondo überquert den Leuvensweg in der Innenstadt von Brüssel. Sie zieht einen Kreis zwischen dem ersten Stockwerk des Palais des Nations und der zweiten Etage des Forum-Gebäudes – eine Abkürzung für die Mitarbeiter in den Büros des belgischen Parlaments. Die verspiegelte Außenhülle der Passerelle reflektiert den umliegenden Stadtraum. Die bodentiefe Verglasung im Ringinneren lässt Blick auf das Gegenüber zu. Eine schwebende Skulptur, die den urbanen Raum bereichert.
Mehr dazu in Detail 3.2022 und in unserer Datenbank Detail Inspiration.


© Bas Princen


© Bas Princen


© Bas Princen
© Blind Blindersen
Architektur: OFFICE Kersten Geers David Van Severen
Bauherr: Chambre des Représentants Fédéraux Belges
Standort: Rue de Louvain 40/44, Brüssel (BE)
Tragwerksplanung: Bollinger+Grohmann









